Produktübersicht ausklappen

Produktübersicht

0

Anfrage

weitere Artikel anfragen

Ihre Anfrage

Gern erhalten Sie Informationen zu folgenden Produkten:

Artikel

Sie können vorher alle Produkte nochmal bearbeiten

Artikel

Sie können vorher alle Produkte nochmal bearbeiten

Produktbild

strawa Frischwasser-Wohnungsstation Friwara Hybrid WSHY1-4L63-Cu-UP-21 4H

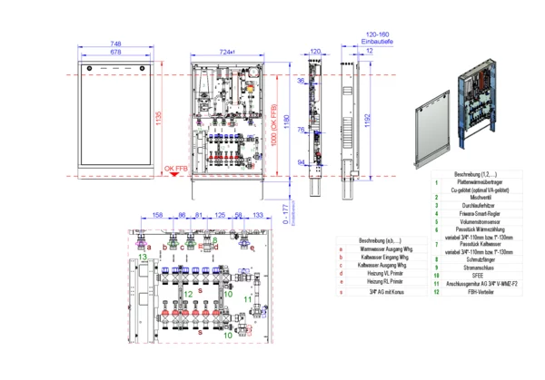
strawa Frischwasser-Wohnungsstation Friwara Hybrid WSHY1-4L63-Cu-UP-21 4H,BxHxT: 748x1192x132 mm, Hybrid-TW-Erwärmung mit zus. Durchlauferhitzer 18-21 kW, Verteiler DFA 0-3 l/min + THV 30x1,5, kupfergel. PWT, UP-Schrank mit Frontblende RAL 9016

Artikelnummer: 3801003304

Warengruppe: 380

Listenpreis: 2.738,50 €

Anfragen/Merken

Sie können sich im nächsten Schritt für die ausgewählten Produkte alle Downloaddokumente zusammenstellen die Sie benötigen oder direkt eine Bestellanfrage stellen.

Beschreibung
Artikeldaten
Downloads
Zubehör
Beschreibung
Ausschreibungstext
Langtext

strawa Frischwasser-Wohnungsstation Friwara Hybrid WSHY1-4L63-Cu-UP-21 4H

strawa Frischwasser-Wohnungsstation Friwara Hybrid WSHY1-4L63-Cu-UP-21 4H




      1. Beschreibung:
        Die Wohnungsstation Friwara Hybrid WSHY-4L dient der Warmwasserversorgung und zusätzlich der Versorgung und Regelung der Flächenheizung und -kühlung. Die Station wurde speziell für niedrige Vorlauftemperaturen entwickelt (35 - 45°C). Bei der Warmwasserbereitung wird über den Plattenwärmeübertrager der erste Temperaturhub vorgenommen und mit Hilfe des Durchlauferhitzers, je nach gewünschter Zapftemperatur (40 - 60 °C), der zweite Temperaturhub.

        Funktionsweise:



          1. Trinkwasserversorgung:
            Die Friwara Hybrid WSHY-4L Wohnungsstation funktioniert im Durchlaufprinzip und sorgt für eine stetige, komfortable und hygienisch einwandfreie Warmwasserversorgung. Die Erwärmung des Trinkwassers erfolgt ausschließlich bei Bedarf über einen verbauten Plattenwärmeübertrager aus Edelstahl sowie über den integrierten Durchlauferhitzer. Durch die thermische Länge des Übertragers wird eine rasche Auskühlung und eine niedrige Rücklauftemperatur garantiert. Die Regelung der am Durchlauferhitzer vorgegebenen Warmwassertemperatur, erfolgt durch ein Zusammenspiel aus Volumenstromsensor, Temperaturfühlern, Durchlauferhitzer, Plattenwärmeübertrager und Umschaltventil. Der Heizungsvolumenstrom wird durch die zentrale primärseitige Pumpe bereitgestellt. Der elektronische Durchlauferhitzer gewährleistet auch bei schwankenden Vorlauftemperaturen die exakte Einhaltung der Trinkwarmwassertemperatur. Der primärseitige Versorgerkreis wird über das Umschaltventil nur dann geöffnet, wenn die Station einen Warmwasserbedarf erkennt. Der Durchlauferhitzer kann über den Volumenstromsensor den Durchfluss erkennen und die Leistung bedarfsgerecht und mit hoher Präzision anpassen. Nach Beendigung des Zapfvorgangs wird das Umschaltventil sofort geschlossen und der Durchlauferhitzer beendet die Erwärmung. Für den Einbau von Wärme- und Wasserzählern sind Distanzstücke im Heizungsrücklauf und Kaltwasserzulauf der Station vorgesehen.
          2. Flächenheizungs- bzw. kühlwasserversorgung über Niedertemperatur-Strang:
            Über einen zusätzlichen Primär-Heizungs- bzw. Kühlkreisanschluss in der Friwara Hybrid WSHY-4L wird der Heiz- bzw. Kühlkreisverteiler mit Heiz- bzw. Kühlwasser versorgt. Der benötigte Volumenstrom der Flächenheizung bzw. -kühlung wird über die im primärseitigen Versorgerkreis verbaute Pumpe realisiert, in der Station ist keine Pumpe verbaut. Montierter Heizkreisverteiler mit manuellem hydraulischem Abgleich der Heizkreise am Durchflussanzeiger (e-class 63). Des Weiteren können die Klemmleiste und die Stell- bzw. Regelantriebe montiert und vorverdrahtet werden. Beim e-class 63 Verteiler sind elektrothermische Stellantriebe 230 V oder intelligente, autonome, elektrothermische EGO-M30 Regelantriebe 230 V (Aufnahmegewinde M30x1,5, stromlos geschlossen) montierbar.
          3. Durchlauferhitzer:
            Der Durchlauferhitzer, der bereits in der Friwara Hybrid WSHY-4L vormontiert ist, dient der elektronischen Nachheizung des Trinkwarmwassers. Der Durchlauferhitzer erhöht dabei die zuvor durch den PWÜ vorgeheizte Trinkwarmwassertemperatur auf die gewünschte Zapftemperatur. Die Elektronik des DLE regelt dabei die Wärmeleistung in Abhängigkeit der Durchlaufmenge in Verbindung mit der Temperaturdifferenz von Vorlauftemperatur zu Zapftemperatur. Die gewünschte Zapftemperatur kann im Menü auf 40 - 60 °C eingestellt werden und ist über die digitale LCD-Anzeige ablesbar.

      2. Vorteile:
        • Warmwassertemperatur von 40 bis 60 °C wählbar
        • einfache Montage und Wartung (Station fertig vorverdrahtet)
        • konstante Zapftemperatur durch den eingesetzten Durchlauferhitzer
        • alle Komponenten aus einer Hand bzw. in einer komplexen Station
        • komfortable Möglichkeit zur Kaltwasser- und Wärmezählung im Wohnbaubereich
        • druckgeprüft
        • alle trinkwasserführenden Bauteile entsprechen den Richtlinien des DVGW
        • durch die niedrige Vorlauftemperatur geeignet für Wärmepumpen (besonders energieeffizient)
        • Heizen / Kühlen
      3. Bestandteile:

        1. Schrank:
          • Unterputzausführung (UP)
          • aus feuerverzinktem Stahlblech und alle sichtbaren Teile in weiß RAL 9016
          • alle Halterungen mit Gummieinlage
          • Schrankmaße 2 bis 6 Hkr.:
          UP-Schrank: B x H x T: 724 x 1180 x 120-160 mm (Einbauzarge)
          • Schrankmaße 7 bis 11 Hkr.:
          UP-Schrank: B x H x T: 874 x 1180 x 120-160 mm (Einbauzarge)
        2. Frischwassermodul:
          Anschlüsse:
          • Kugelhähne DN20 (Sekundäranschluss 3/4“ IG)
          • Anschlussleiste 5-fach: TWW-ETWK-ATWK-PVL-PRL
          • der Vorlauf-Kugelhahn ist zusätzlich mit einem Schmutzfänger ausgerüstet
          Heizungsseite:
          • Plattenwärmeübertrager (PWÜ) kupfergelötet (Cu)
          • Umschaltventil ESBE SLD133 Superflow zur Umschaltung Trinkwasserbereitung oder Standby der Wohnungsstation
          • Wärmezählerpassstück 3/4“ AG flachdichtend (Länge 110 mm)
          • Fühlereinbaustück direktfühlend Ø 5-5,2mm M10x1 IG (für Fabrikate Ista Sensonic, Allmess V-Lite, Pollux Com E, Techem delta tech, Minol M, Rossweiner, ABB, Entex, Molliné)
          • Verrohrungsmaterial Edelstahl 1.4301 (DIN EN 10088)
          Trinkwasserseite:
          • Plattenwärmeübertrager
          • Volumenstromsensor
          • Wasserzählerpassstück 3/4“ AG flachdichtend (Länge 110 mm)
          • Verrohrungsmaterial Edelstahl 1.4401 (DIN EN 10088)
          • Durchlauferhitzer (Clage) – mit integriertem Filtersieb
          • Trinkwarmwassertemperatur einstellbar von 40 bis 60 °C
          Frischwasserregler:
          • Friwara smart Frischwasserregler
          • Komfortschaltung für Warmhaltung des Plattenwärmeübertragers
          • Vorwärmstufe 1 einstellbar von 30 bis 45 °C
          FB-Seite:
          • integriertes Regulierventil im FBH-Vorlauf für hydraulischen Abgleich
          Heizkreisverteiler:
          • manueller hydraulischer Abgleich über den Durchflussanzeiger
          • FBH-Anschlussverteiler e-class 63 (mit Regolux Durchflussanzeiger 0-3l/min und THV-Einsatz mit Anschlussgewinde M30x1,5)
          Optionales Zubehör:
          • edelstahlgelöteter Plattenwärmeübertrager (VA)
          • Dämmung von Plattenwärmeübertrager und Rohrleitung
        3. Lieferzustand:
          • Station komplett im Schutzkarton verpackt
          • Frontblende zusätzlich in einem weiterem Schutzkarton verpackt
      4. Technische Daten:

        1. Primärseite:
          • max. Temperatur 45 °C, Empfehlung liegt bei 38 °C
          • max. Prüfdruck 6 bar
          • max. Betriebsdruck 4 bar
          • weitere Angaben bei Temperaturen Heizung 45/25 °C und Trinkwasser 37/10 °C:
          - Druckverlust 550 mbar
          - Massenstrom 1300 l/h
          • Umschaltventil ESBE SLD133 Superflow DN20
        2. Trinkwassererwärmung:
          • max. Zapftemperatur 60 °C
          • max. Prüfdruck 8 bar
          • max. Betriebsdruck 10 bar
          • weitere Angaben bei Systemtemperatur Heizung 45/25 °C und Trinkwasser 50/10 °C:
          - Druckverlust 2750 mbar
          - Schüttleistung 13l/min
          - Gesamtleistung 36,2kW
        3. Durchlauferhitzer:
          Allgemeine Daten Durchlauferhitzer:
          • Anschluss G 1/2“
          • BxHxT: 177 x 294 x 108 mm
          • Gehäusefarbe weiß
          • ohne Durchflussmengenbegrenzer
          • Einstellbereich 20 - 60 °C
          • max. Betriebstemperatur 60 °C
          • max. Betriebsdruck: 10 bar
          • Druckverlust 2300 mbar bei 12 l/min
          • Einschaltwassermenge 2 l/min
          Elektrische Daten Durchlauferhitzer:
          • Nennleistung: 18 /21 kW
          • Nennstrom: 26 / 30 A
          • Erforderlicher Kabelquerschnitt: 4 / 6 mm²
          • Nennspannung: 3~ / PE 380...415 V AC
          • Frequenz: 50 / 60 Hz
          • Anschluss: Festanschluss
          • Energieeffizienzklasse nach EU-Verordnung Nr. 812/2013: A
          • Schutzklasse nach VDE I
          • Schutzart: IP 24
      5. Anschluesse:
        • Anschlüsse 3/4“ IG flachdichtend für Heizung und Trinkwasser



Artikelspezifikation:
4 Heizkreise
Artikelabmessung: B x H x T: 748 x 1192 x 132 mm
Artikelgewicht: 38,378 kg

Marke: strawa
Hersteller: strawa Wärmetechnik GmbH
Telefon: +49 (0) 36256 8661-0 
E-Mail: info@strawa.com
Technische Änderungen vorbehalten.
oder gleichwertig

strawa Frischwasser-Wohnungsstation Friwara Hybrid WSHY1-4L63-Cu-UP-21 4H




      1. Beschreibung:
        Die Wohnungsstation Friwara Hybrid WSHY-4L dient der Warmwasserversorgung und zusätzlich der Versorgung und Regelung der Flächenheizung und -kühlung. Die Station wurde speziell für niedrige Vorlauftemperaturen entwickelt (35 - 45°C). Bei der Warmwasserbereitung wird über den Plattenwärmeübertrager der erste Temperaturhub vorgenommen und mit Hilfe des Durchlauferhitzers, je nach gewünschter Zapftemperatur (40 - 60 °C), der zweite Temperaturhub.

        Funktionsweise:



          1. Trinkwasserversorgung:
            Die Friwara Hybrid WSHY-4L Wohnungsstation funktioniert im Durchlaufprinzip und sorgt für eine stetige, komfortable und hygienisch einwandfreie Warmwasserversorgung. Die Erwärmung des Trinkwassers erfolgt ausschließlich bei Bedarf über einen verbauten Plattenwärmeübertrager aus Edelstahl sowie über den integrierten Durchlauferhitzer. Durch die thermische Länge des Übertragers wird eine rasche Auskühlung und eine niedrige Rücklauftemperatur garantiert. Die Regelung der am Durchlauferhitzer vorgegebenen Warmwassertemperatur, erfolgt durch ein Zusammenspiel aus Volumenstromsensor, Temperaturfühlern, Durchlauferhitzer, Plattenwärmeübertrager und Umschaltventil. Der Heizungsvolumenstrom wird durch die zentrale primärseitige Pumpe bereitgestellt. Der elektronische Durchlauferhitzer gewährleistet auch bei schwankenden Vorlauftemperaturen die exakte Einhaltung der Trinkwarmwassertemperatur. Der primärseitige Versorgerkreis wird über das Umschaltventil nur dann geöffnet, wenn die Station einen Warmwasserbedarf erkennt. Der Durchlauferhitzer kann über den Volumenstromsensor den Durchfluss erkennen und die Leistung bedarfsgerecht und mit hoher Präzision anpassen. Nach Beendigung des Zapfvorgangs wird das Umschaltventil sofort geschlossen und der Durchlauferhitzer beendet die Erwärmung. Für den Einbau von Wärme- und Wasserzählern sind Distanzstücke im Heizungsrücklauf und Kaltwasserzulauf der Station vorgesehen.
          2. Flächenheizungs- bzw. kühlwasserversorgung über Niedertemperatur-Strang:
            Über einen zusätzlichen Primär-Heizungs- bzw. Kühlkreisanschluss in der Friwara Hybrid WSHY-4L wird der Heiz- bzw. Kühlkreisverteiler mit Heiz- bzw. Kühlwasser versorgt. Der benötigte Volumenstrom der Flächenheizung bzw. -kühlung wird über die im primärseitigen Versorgerkreis verbaute Pumpe realisiert, in der Station ist keine Pumpe verbaut. Montierter Heizkreisverteiler mit manuellem hydraulischem Abgleich der Heizkreise am Durchflussanzeiger (e-class 63). Des Weiteren können die Klemmleiste und die Stell- bzw. Regelantriebe montiert und vorverdrahtet werden. Beim e-class 63 Verteiler sind elektrothermische Stellantriebe 230 V oder intelligente, autonome, elektrothermische EGO-M30 Regelantriebe 230 V (Aufnahmegewinde M30x1,5, stromlos geschlossen) montierbar.
          3. Durchlauferhitzer:
            Der Durchlauferhitzer, der bereits in der Friwara Hybrid WSHY-4L vormontiert ist, dient der elektronischen Nachheizung des Trinkwarmwassers. Der Durchlauferhitzer erhöht dabei die zuvor durch den PWÜ vorgeheizte Trinkwarmwassertemperatur auf die gewünschte Zapftemperatur. Die Elektronik des DLE regelt dabei die Wärmeleistung in Abhängigkeit der Durchlaufmenge in Verbindung mit der Temperaturdifferenz von Vorlauftemperatur zu Zapftemperatur. Die gewünschte Zapftemperatur kann im Menü auf 40 - 60 °C eingestellt werden und ist über die digitale LCD-Anzeige ablesbar.

      2. Vorteile:
        • Warmwassertemperatur von 40 bis 60 °C wählbar
        • einfache Montage und Wartung (Station fertig vorverdrahtet)
        • konstante Zapftemperatur durch den eingesetzten Durchlauferhitzer
        • alle Komponenten aus einer Hand bzw. in einer komplexen Station
        • komfortable Möglichkeit zur Kaltwasser- und Wärmezählung im Wohnbaubereich
        • druckgeprüft
        • alle trinkwasserführenden Bauteile entsprechen den Richtlinien des DVGW
        • durch die niedrige Vorlauftemperatur geeignet für Wärmepumpen (besonders energieeffizient)
        • Heizen / Kühlen
      3. Bestandteile:

        1. Schrank:
          • Unterputzausführung (UP)
          • aus feuerverzinktem Stahlblech und alle sichtbaren Teile in weiß RAL 9016
          • alle Halterungen mit Gummieinlage
          • Schrankmaße 2 bis 6 Hkr.:
          UP-Schrank: B x H x T: 724 x 1180 x 120-160 mm (Einbauzarge)
          • Schrankmaße 7 bis 11 Hkr.:
          UP-Schrank: B x H x T: 874 x 1180 x 120-160 mm (Einbauzarge)
        2. Frischwassermodul:
          Anschlüsse:
          • Kugelhähne DN20 (Sekundäranschluss 3/4“ IG)
          • Anschlussleiste 5-fach: TWW-ETWK-ATWK-PVL-PRL
          • der Vorlauf-Kugelhahn ist zusätzlich mit einem Schmutzfänger ausgerüstet
          Heizungsseite:
          • Plattenwärmeübertrager (PWÜ) kupfergelötet (Cu)
          • Umschaltventil ESBE SLD133 Superflow zur Umschaltung Trinkwasserbereitung oder Standby der Wohnungsstation
          • Wärmezählerpassstück 3/4“ AG flachdichtend (Länge 110 mm)
          • Fühlereinbaustück direktfühlend Ø 5-5,2mm M10x1 IG (für Fabrikate Ista Sensonic, Allmess V-Lite, Pollux Com E, Techem delta tech, Minol M, Rossweiner, ABB, Entex, Molliné)
          • Verrohrungsmaterial Edelstahl 1.4301 (DIN EN 10088)
          Trinkwasserseite:
          • Plattenwärmeübertrager
          • Volumenstromsensor
          • Wasserzählerpassstück 3/4“ AG flachdichtend (Länge 110 mm)
          • Verrohrungsmaterial Edelstahl 1.4401 (DIN EN 10088)
          • Durchlauferhitzer (Clage) – mit integriertem Filtersieb
          • Trinkwarmwassertemperatur einstellbar von 40 bis 60 °C
          Frischwasserregler:
          • Friwara smart Frischwasserregler
          • Komfortschaltung für Warmhaltung des Plattenwärmeübertragers
          • Vorwärmstufe 1 einstellbar von 30 bis 45 °C
          FB-Seite:
          • integriertes Regulierventil im FBH-Vorlauf für hydraulischen Abgleich
          Heizkreisverteiler:
          • manueller hydraulischer Abgleich über den Durchflussanzeiger
          • FBH-Anschlussverteiler e-class 63 (mit Regolux Durchflussanzeiger 0-3l/min und THV-Einsatz mit Anschlussgewinde M30x1,5)
          Optionales Zubehör:
          • edelstahlgelöteter Plattenwärmeübertrager (VA)
          • Dämmung von Plattenwärmeübertrager und Rohrleitung
        3. Lieferzustand:
          • Station komplett im Schutzkarton verpackt
          • Frontblende zusätzlich in einem weiterem Schutzkarton verpackt
      4. Technische Daten:

        1. Primärseite:
          • max. Temperatur 45 °C, Empfehlung liegt bei 38 °C
          • max. Prüfdruck 6 bar
          • max. Betriebsdruck 4 bar
          • weitere Angaben bei Temperaturen Heizung 45/25 °C und Trinkwasser 37/10 °C:
          - Druckverlust 550 mbar
          - Massenstrom 1300 l/h
          • Umschaltventil ESBE SLD133 Superflow DN20
        2. Trinkwassererwärmung:
          • max. Zapftemperatur 60 °C
          • max. Prüfdruck 8 bar
          • max. Betriebsdruck 10 bar
          • weitere Angaben bei Systemtemperatur Heizung 45/25 °C und Trinkwasser 50/10 °C:
          - Druckverlust 2750 mbar
          - Schüttleistung 13l/min
          - Gesamtleistung 36,2kW
        3. Durchlauferhitzer:
          Allgemeine Daten Durchlauferhitzer:
          • Anschluss G 1/2“
          • BxHxT: 177 x 294 x 108 mm
          • Gehäusefarbe weiß
          • ohne Durchflussmengenbegrenzer
          • Einstellbereich 20 - 60 °C
          • max. Betriebstemperatur 60 °C
          • max. Betriebsdruck: 10 bar
          • Druckverlust 2300 mbar bei 12 l/min
          • Einschaltwassermenge 2 l/min
          Elektrische Daten Durchlauferhitzer:
          • Nennleistung: 18 /21 kW
          • Nennstrom: 26 / 30 A
          • Erforderlicher Kabelquerschnitt: 4 / 6 mm²
          • Nennspannung: 3~ / PE 380...415 V AC
          • Frequenz: 50 / 60 Hz
          • Anschluss: Festanschluss
          • Energieeffizienzklasse nach EU-Verordnung Nr. 812/2013: A
          • Schutzklasse nach VDE I
          • Schutzart: IP 24
      5. Anschluesse:
        • Anschlüsse 3/4“ IG flachdichtend für Heizung und Trinkwasser



Artikelspezifikation:
4 Heizkreise
Artikelabmessung: B x H x T: 748 x 1192 x 132 mm
Artikelgewicht: 38,378 kg

GTIN: 4061323164639
Warennummer: 84191900
Werksartikelnummer: 3801003304
Warengruppe: 380
URL: https://www.strawa.com/produkt/3801003304

Marke: strawa

Hersteller: strawa Wärmetechnik GmbH
Telefon: +49 (0) 36256 8661-0 
E-Mail: info@strawa.com
Technische Änderungen vorbehalten.
oder gleichwertig

Gewähltes Fabrikat und Typ: ...........................................
….....................................................................................
(vom Bieter auszufüllen)

zur Lieferung und betriebsfertigen Montage
________________________________________
Kostengruppe DIN 276 (2018-12):  422 Wärmeverteilnetze

Leistungsbereich STLB-Bau (2021-04): 041 Wärmeversorgungsanlagen - Leitungen, Armaturen, Heizflächen

Ausschreibungstexte

strawa Frischwasser-Wohnungsstation
Friwara Hybrid WSHY1-4L63-Cu-UP-21 4H


  1. eitersystem mit Trinkwassererwärmung mit zusätzlichem elektr. Durchlauferhitzer 21 kW, Anschlussgarnitur mit Wärmezählerverrohrung, Verteiler Durchflussanzeiger 0-3 l/min + Thermostatventileinsatz M30x1,5, kupfergelötet Plattenwärmetauscher, Unterputz-Schrank in RAL 9016


4 Heizkreise
Abmessung B x H x T:
748 x 1192 x 132 mm
Artikelgewicht: 38,378 kg
Werksartikelnummer: 3801003304
Warennummer: 84191900
Warengruppe: 380

Hersteller: strawa Wärmetechnik GmbH
Telefon: +49 (0) 36256 8661-0 
E-Mail: info@strawa.com
Technische Änderungen vorbehalten.
oder gleichwertig

Logistische Daten
ETIM / Technische Daten

Produkteigenschaften

Stammdaten

EinheitPCE

GTIN4061323164639

Listenpreis2.738,50 €

Mindesbestellmenge1

ArtikeltypStandard

HerkunftslandDeutschland

Zolltarifnummer84191900

Standardversand (Tage)15

Elektrische BestandteileJa

BatterieNein

Artikelabmessungen

Breite (mm)724

Höhe (mm)1180

Tiefe (mm)120

Gewicht (kg)38,378

Verpackungsabmessungen

Breite (mm)800

Höhe (mm)240

Tiefe (mm)1200

Gewicht (kg)42,023

Merkmale

Klassifizierung ETIM 9

Geeignet für Fernwärme nein

Geeignet für Blockheizung nein

Geeignet für Wärmepumpe ja

Geeignet für Solarheizung nein

Geeignet für Heizung ja

Geeignet für Kühlen ja

Geeignet für warmes Trinkwasser ja

Mit Umwälzpumpe nein

Hocheffizienzpumpe (entsprechend EC 547/2012 und EC 641/2009) nein

Mit Wärmeübertrager ja

Material Wärmetauscher rostfreier Stahl

Werkstoff Lotmaterial Wärmetauscher kupfergelötet

Wechselschalter mit doppelter Trennung nein

Wärmetauscher vollversiegelt nein

Mit Passstück für Wärmezähler ja

Mit Wärmezähler nein

Mit Passstück für Kaltwasserzähler ja

Max. Arbeitsdruck

Primäre Drückdifferenz 23 kPa

Einstellbereich Temperatur heißes Leitungswasser 20 - 60 °C

Anschluss Vorlauf Innengewinde zylindrisch BSPT-Rp (ISO 7-1 / EN 10226-1)

Nenndurchmesser Zufuhr 3/4 Zoll (20)

Anschluss Rücklauf Innengewinde zylindrisch BSPT-Rp (ISO 7-1 / EN 10226-1)

Nenndurchmesser Rücklauf 3/4 Zoll (20)

Anschluss Heizungs-Vor-/Rücklauf Innengewinde zylindrisch BSPT-Rp (ISO 7-1 / EN 10226-1)

Nenndurchmesser Heizung 3/4 Zoll (20)

Anschluss Warmwasser Innengewinde zylindrisch BSPT-Rp (ISO 7-1 / EN 10226-1)

Nenndurchmesser Warmwasseranschluss 3/4 Zoll (20)

Anschluss kaltes Trinkwasser Innengewinde zylindrisch BSPT-Rp (ISO 7-1 / EN 10226-1)

Nenndurchmesser Kaltwasseranschluss 3/4 Zoll (20)

Mit Zirkulationsanschluss nein

Mit Vorrang für Warmwasser nein

Mit elektrischer Nacherwärmung ja

Mit Differenzdruckregler nein

Warmhaltestufe ja

Regler elektronisch

Strömungsmengenregler ja

Mit Schmutzfänger ja

Mit Sicherheitsventil nein

Zonenventil nein

Mit Isolierung nein

Höhe 1180 mm

Breite 748 mm

Tiefe 120 mm

Typenzulassung nach BBR/EKS nein

Sie benötigen Informationen?

Unser Team berät Sie kompetent zu unseren Produkten oder hilft Ihnen bei Auslegungen und Bestellungen. Vereinbaren Sie hier einen Rückruf.

Kontakt