strawa Friwara WM-TWE-FB-DLE4-GB1,5
strawa Friwara WM-TWE-FB-DLE4-GB1,5
- Beschreibung:
Das Hydraulikmodul WM-TWE-FB-DLE für Trinkwassererwärmung mit Flächenheizung besitzt einen vollelektronisch geregelten Moduldurchlauferhitzer. Es gewährleistet eine bedarfsgerechte und energieeffiziente Trinkwassererwärmung für Anwendungen mit einer oder mehreren Entnahmestellen.
Das Modul ist werkseitig für den Einbau eines Wasserzählers vorbereitet; ein entsprechendes Einbaustück zur Aufnahme ist bereits vormontiert. Zusätzlich ist das Modul serienmäßig mit Anschlüssen für die Heizungsversorgung ausgestattet. Über den Primärheizanschluss in dem Hydraulikmodul wird der Flächenverteiler mit Heiz- oder Kühlwasser versorgt. Der benötigte Volumenstrom der Flächenheizung wird über die im primärseitigen Versorgerkreis verbaute Pumpe realisiert, im Modul ist keine Pumpe verbaut.
Ab Werk sind ein Einbaustück für den Wärmezähler sowie Fühleranschlüsse im Vor- und Rücklauf integriert, um den Einbau eines Wärmezählers zu ermöglichen. - Aufbau von Kompaktstationen:
Der Friwara WM Systembaukasten ist modular aufgebaut und ermöglicht die Konfiguration einer vollständigen Station. Für die Trinkwassererwärmung mit Flächenheizung sind folgende Module erforderlich:
- Schrankmodul, Artikel FS-xxxxxx
- Anschlussschienenmodul, Artikel FA-xxxxxx
- Hydraulikmodul, Artikel FH-xxxxxx
- Verteilermodul. Artikel FV-xxxxxx
- Vorverdrahtungsmodul (optional), Artikel FE-xxxxxx
- Montageartikel*, Artikel FM-xxxxxx
x Platzhalter für Artikelnummern
* Der Montageartikel definiert den Auslieferungszustand der einzelnen Module - ob diese werkseitig separat verpackt, teilmontiert oder vollständig montiert bereitgestellt werden. - Einsatzbereich:
Versorgung von Einzelentnahmearmaturen in:
- Bad (Dusche, Badewanne, Waschbecken)
- Duschbad
- Küchenspüle
- dezentrale Wohnungsversorgung
- Vorteile:
- modulare Zusammenstellung von Kompaktstationen
- Module können werk- oder baustellenseitig montiert werden
- vollelektronisch geregelter Moduldurchlauferhitzer
- bedarfsgerechte Trinkwassererwärmung
- hohe Energieeffizienz durch präzise Regelung
- geeignet für Einzel- und Gruppenversorgung: flexibel einsetzbar
- Wasser- und Wärmezählervorbereitung
- alle Komponenten aus einer Hand bzw. in einer komplexen Station
- komfortable Möglichkeit zur Kaltwasser- und Wärmezählung im Wohnbaubereich
- druckgeprüft
- Bestandteile:
- Moduldurchlauferhitzer:
- TYP ISX
- vollelektronisch geregelter Moduldurchlauferhitzer mit Sensortastenbedienfeld und LED-Anzeige
- Temperatureinstellung, Festlegung von individuellen Temperaturprofilen und Einsicht der Verbrauchswerte über die mitgelieferte E-Paper Fernbedienung FX Next oder optional über das Smartphone
- immer gradgenaue Temperatur zwischen 20 °C und 60 °C dank TWIN TEMPERATURE Control TTC® und dynamischer Durchflussmengenregelung SERVO TRONIC®
- Blankdraht-Heizsystem IES® sorgt für eine längere Lebensdauer, weniger Verkalkung und ist effizient und wartungsfreundlich
- Funktion zur thermischen Behandlung mit 70 °C möglich (bei Typ ISX 18-27)
- elektronisches Sicherheitssystem mit Luftblasenerkennung, Temperatur- und Druckabschaltung sowie Wasserstoppfunktion
- mit Multiple Power System MPS® wird die maximale Leistungsaufnahme bei der Installation festgelegt
- besonders niedrige Einschaltwassermenge ab 1,5 l/min dank innovativer Wasserflusstechnik
- integrierte WLAN und Bluetooth®-Funktion zur Verbindung mit Smartphone und Tablet (hierfür ist die kostenlose App »SmartControl« erforderlich)
- Modbus-Schnittstelle zur Einbindung in die Gebäudetechnik
- Montage und Elektroanschluss ohne Abnehmen der Haube möglich
- TYP ISX L
- siehe Typ ISX, jedoch ohne WLAN und Bluetooth®-Funktion
- Temperatureinstellung über zwei programmierbare Festwerttasten möglich
- Heizungsseite
- Wärmezählerpassstück 3/4“ AG flachdichtend, Länge 110 mm - empfohlen wird ein Ultraschall-Wärmemengenzähler (genauere Zählung / geringerer Druckverlust)
- Fühlereinbaustück direktfühlend Ø 5-5,2 mm M10x1 IG (für Fabrikate Ista Sensonic, Allmess V-Lite, Pollux Com E, Techem delta tech, Minol M, Rossweiner, ABB, Entex, Molliné)
- Verrohrungsmaterial Edelstahl 1.4301 (DIN EN 10088)
- Entlüftungsventil
- Trinkwasserseite:
- zusätzlicher Absperrkugelhahn am Eingang DLE
- Wasserzählereinbaustück 3/4“ AG flachdichtend, Länge 110 mm
- Verrohrungsmaterial Edelstahl 1.4401 (DIN EN 10088)
- Flachdichtungen EPDM
- Technische Daten:
- Heizungsseite:
gültig nur bei Einsatz der Friwara-Verteilermodule VT-63 und VT-18- max. Betriebstemperatur 45 °C
- max. Prüfdruck 6 bar
- max. Betriebsdruck 4 bar
- Trinkwasserseite:
- max. Entnahmetemperatur 60 °C
- max. Prüfdruck 15 bar
- max. Betriebsdruck 10 bar
- Moduldurchlauferhitzer:
Moduldurchlauferhitzer ISX 13 / 27 und ISX L 13 / 27- Energieeffizienzklasse A (Skala: A+ bis F)
- Bauart druckfest
- zulässiger Betriebsüberdruck 10 bar, auch für drucklosen Betrieb zugelassen
- Temperaturwahlbereich 20 bis 60 °C
- Einschaltwassermenge 1,5 l/min
- max. Durchflussmenge automatisch (abhängig vom Leitungsdruck, gewählter Temperatur und Zulauftemperatur)
- Nennspannung [3~ / PE 400 V AC] Festanschluss
- Blankdraht-Heizsystem IES® ja
- Steuerung
- Typ ISX Sensortasten, FX Next Funkfernbedienung, Smartphone
- Typ ISX L Sensortasten
- FX Next Funkfernbedienung
- Typ ISX ja, über Bluetooth (im Lieferumfang enthalten)
- Typ ISX L nein, keine Bluetooth Unterstützung
- Solartauglich, für Nacherwärmung geeignet (Zulauftemperatur ≤ 70 °C) ja
- Prüfzeichen VDE ja
- Schutzart IP 21
- spezifischer Wasserwiderstand bei 15 °C ≥ 1100 Ωcm
- Nenninhalt 0,4 l
- Anschlüsse:
- alle Primäranschlüsse sind in DN 20 mit 3/4"-Überwurfmuttern ausgeführt
Artikelspezifikation:
- elektrischer Durchlauferhitzer ISX 18-27 kW
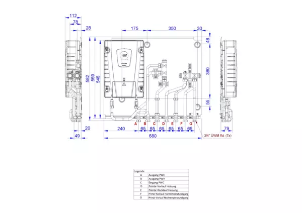
Artikelabmessung: B x H x T: 680 x 582 x 112 mm
Artikelgewicht: 11,1 kg
Marke: strawa
Hersteller: strawa Wärmetechnik GmbH
Telefon: +49 (0) 36256 8661-0
E-Mail: info@strawa.com
Technische Änderungen vorbehalten.
strawa Friwara WM-TWE-FB-DLE4-GB1,5
- Beschreibung:
Das Hydraulikmodul WM-TWE-FB-DLE für Trinkwassererwärmung mit Flächenheizung besitzt einen vollelektronisch geregelten Moduldurchlauferhitzer. Es gewährleistet eine bedarfsgerechte und energieeffiziente Trinkwassererwärmung für Anwendungen mit einer oder mehreren Entnahmestellen.
Das Modul ist werkseitig für den Einbau eines Wasserzählers vorbereitet; ein entsprechendes Einbaustück zur Aufnahme ist bereits vormontiert. Zusätzlich ist das Modul serienmäßig mit Anschlüssen für die Heizungsversorgung ausgestattet. Über den Primärheizanschluss in dem Hydraulikmodul wird der Flächenverteiler mit Heiz- oder Kühlwasser versorgt. Der benötigte Volumenstrom der Flächenheizung wird über die im primärseitigen Versorgerkreis verbaute Pumpe realisiert, im Modul ist keine Pumpe verbaut.
Ab Werk sind ein Einbaustück für den Wärmezähler sowie Fühleranschlüsse im Vor- und Rücklauf integriert, um den Einbau eines Wärmezählers zu ermöglichen. - Aufbau von Kompaktstationen:
Der Friwara WM Systembaukasten ist modular aufgebaut und ermöglicht die Konfiguration einer vollständigen Station. Für die Trinkwassererwärmung mit Flächenheizung sind folgende Module erforderlich:
- Schrankmodul, Artikel FS-xxxxxx
- Anschlussschienenmodul, Artikel FA-xxxxxx
- Hydraulikmodul, Artikel FH-xxxxxx
- Verteilermodul. Artikel FV-xxxxxx
- Vorverdrahtungsmodul (optional), Artikel FE-xxxxxx
- Montageartikel*, Artikel FM-xxxxxx
x Platzhalter für Artikelnummern
* Der Montageartikel definiert den Auslieferungszustand der einzelnen Module - ob diese werkseitig separat verpackt, teilmontiert oder vollständig montiert bereitgestellt werden. - Einsatzbereich:
Versorgung von Einzelentnahmearmaturen in:
- Bad (Dusche, Badewanne, Waschbecken)
- Duschbad
- Küchenspüle
- dezentrale Wohnungsversorgung
- Vorteile:
- modulare Zusammenstellung von Kompaktstationen
- Module können werk- oder baustellenseitig montiert werden
- vollelektronisch geregelter Moduldurchlauferhitzer
- bedarfsgerechte Trinkwassererwärmung
- hohe Energieeffizienz durch präzise Regelung
- geeignet für Einzel- und Gruppenversorgung: flexibel einsetzbar
- Wasser- und Wärmezählervorbereitung
- alle Komponenten aus einer Hand bzw. in einer komplexen Station
- komfortable Möglichkeit zur Kaltwasser- und Wärmezählung im Wohnbaubereich
- druckgeprüft
- Bestandteile:
- Moduldurchlauferhitzer:
- TYP ISX
- vollelektronisch geregelter Moduldurchlauferhitzer mit Sensortastenbedienfeld und LED-Anzeige
- Temperatureinstellung, Festlegung von individuellen Temperaturprofilen und Einsicht der Verbrauchswerte über die mitgelieferte E-Paper Fernbedienung FX Next oder optional über das Smartphone
- immer gradgenaue Temperatur zwischen 20 °C und 60 °C dank TWIN TEMPERATURE Control TTC® und dynamischer Durchflussmengenregelung SERVO TRONIC®
- Blankdraht-Heizsystem IES® sorgt für eine längere Lebensdauer, weniger Verkalkung und ist effizient und wartungsfreundlich
- Funktion zur thermischen Behandlung mit 70 °C möglich (bei Typ ISX 18-27)
- elektronisches Sicherheitssystem mit Luftblasenerkennung, Temperatur- und Druckabschaltung sowie Wasserstoppfunktion
- mit Multiple Power System MPS® wird die maximale Leistungsaufnahme bei der Installation festgelegt
- besonders niedrige Einschaltwassermenge ab 1,5 l/min dank innovativer Wasserflusstechnik
- integrierte WLAN und Bluetooth®-Funktion zur Verbindung mit Smartphone und Tablet (hierfür ist die kostenlose App »SmartControl« erforderlich)
- Modbus-Schnittstelle zur Einbindung in die Gebäudetechnik
- Montage und Elektroanschluss ohne Abnehmen der Haube möglich
- TYP ISX L
- siehe Typ ISX, jedoch ohne WLAN und Bluetooth®-Funktion
- Temperatureinstellung über zwei programmierbare Festwerttasten möglich
- Heizungsseite
- Wärmezählerpassstück 3/4“ AG flachdichtend, Länge 110 mm - empfohlen wird ein Ultraschall-Wärmemengenzähler (genauere Zählung / geringerer Druckverlust)
- Fühlereinbaustück direktfühlend Ø 5-5,2 mm M10x1 IG (für Fabrikate Ista Sensonic, Allmess V-Lite, Pollux Com E, Techem delta tech, Minol M, Rossweiner, ABB, Entex, Molliné)
- Verrohrungsmaterial Edelstahl 1.4301 (DIN EN 10088)
- Entlüftungsventil
- Trinkwasserseite:
- zusätzlicher Absperrkugelhahn am Eingang DLE
- Wasserzählereinbaustück 3/4“ AG flachdichtend, Länge 110 mm
- Verrohrungsmaterial Edelstahl 1.4401 (DIN EN 10088)
- Flachdichtungen EPDM
- Technische Daten:
- Heizungsseite:
gültig nur bei Einsatz der Friwara-Verteilermodule VT-63 und VT-18
- max. Betriebstemperatur 45 °C
- max. Prüfdruck 6 bar
- max. Betriebsdruck 4 bar
- Trinkwasserseite:
- max. Entnahmetemperatur 60 °C
- max. Prüfdruck 15 bar
- max. Betriebsdruck 10 bar
- Moduldurchlauferhitzer:
Moduldurchlauferhitzer ISX 13 / 27 und ISX L 13 / 27
- Energieeffizienzklasse A (Skala: A+ bis F)
- Bauart druckfest
- zulässiger Betriebsüberdruck 10 bar, auch für drucklosen Betrieb zugelassen
- Temperaturwahlbereich 20 bis 60 °C
- Einschaltwassermenge 1,5 l/min
- max. Durchflussmenge automatisch (abhängig vom Leitungsdruck, gewählter Temperatur und Zulauftemperatur)
- Nennspannung [3~ / PE 400 V AC] Festanschluss
- Blankdraht-Heizsystem IES® ja
- Steuerung
- Typ ISX Sensortasten, FX Next Funkfernbedienung, Smartphone
- Typ ISX L Sensortasten
- FX Next Funkfernbedienung
- Typ ISX ja, über Bluetooth (im Lieferumfang enthalten)
- Typ ISX L nein, keine Bluetooth Unterstützung
- Solartauglich, für Nacherwärmung geeignet (Zulauftemperatur ≤ 70 °C) ja
- Prüfzeichen VDE ja
- Schutzart IP 21
- spezifischer Wasserwiderstand bei 15 °C ≥ 1100 Ωcm
- Nenninhalt 0,4 l
- Anschlüsse:
- alle Primäranschlüsse sind in DN 20 mit 3/4"-Überwurfmuttern ausgeführt
Artikelspezifikation:
- elektrischer Durchlauferhitzer ISX 18-27 kW
Artikelabmessung: B x H x T: 680 x 582 x 112 mm
Artikelgewicht: 11,1 kg
GTIN: 4061323197217
Warennummer: 85161011
Werksartikelnummer: FH-140004
Warengruppe: WM
URL: https://www.strawa.com/produkt/FH-140004
Marke: strawa
Hersteller: strawa Wärmetechnik GmbH
Telefon: +49 (0) 36256 8661-0
E-Mail: info@strawa.com
Technische Änderungen vorbehalten.
oder gleichwertig
Gewähltes Fabrikat und Typ: ...........................................
….....................................................................................
(vom Bieter auszufüllen)
zur Lieferung und betriebsfertigen Montage
________________________________________
Kostengruppe DIN 276 (2018-12): 412 Wasseranlagen
Leistungsbereich STLB-Bau (2021-04): 041 Wärmeversorgungsanlagen - Leitungen, Armaturen, Heizflächen
strawa Friwara WM-TWE-FB-DLE4-GB1,5
- elektrischer Durchlauferhitzer ISX 18-27 kW
Abmessung B x H x T:
680 x 582 x 112 mm
Artikelgewicht: 11,1 kg
Werksartikelnummer: FH-140004
Warennummer: 85161011
Warengruppe: WM
Hersteller: strawa Wärmetechnik GmbH
Telefon: +49 (0) 36256 8661-0
E-Mail: info@strawa.com
Technische Änderungen vorbehalten.
oder gleichwertig