Produktübersicht ausklappen

Produktübersicht

0

Anfrage

weitere Artikel anfragen

Ihre Anfrage

Gern erhalten Sie Informationen zu folgenden Produkten:

Artikel

Sie können vorher alle Produkte nochmal bearbeiten

Artikel

Sie können vorher alle Produkte nochmal bearbeiten

Produktbild

strawa Friwara WM-TWE-4L-L1-CU-HY2-BY-D -GB2,0

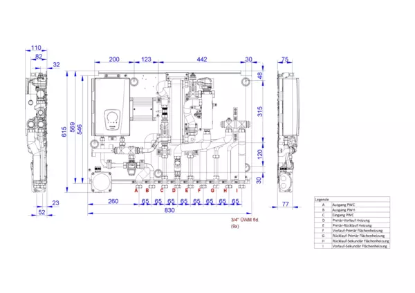
strawa Friwara WM-TWE-4L-L1-CU-HY2-BY-D -GB2,0,BxHxT: 830x615x111 mm, für Trinkwassererwärmung 4-Leiter mit Flächenheizung, kupfergelöteter PWÜ Leistungstufe 1, elektrischer Durchlauferhitzer bis 21 kW, mit Mischventil, Dämmung, Grundblech 2,0

Artikelnummer: FH-130021

Warengruppe: WM

Listenpreis: 2.851,70 €

Anfragen/Merken

Sie können sich im nächsten Schritt für die ausgewählten Produkte alle Downloaddokumente zusammenstellen die Sie benötigen oder direkt eine Bestellanfrage stellen.

Beschreibung
Artikeldaten
Downloads
Zubehör
Beschreibung
Ausschreibungstext
Langtext

strawa Friwara WM-TWE-4L-L1-CU-HY2-BY-D -GB2,0

strawa Friwara WM-TWE-4L-L1-CU-HY2-BY-D -GB2,0

      1. Beschreibung:
        Die Hydraulikmodule strawa Friwara WM-TWE-4L-HY-BY sind multifunktionale Einheiten zur zuverlässigen, hygienischen Trinkwassererwärmung in Wohngebäuden, die speziell für niedrigere Vorlauftemperaturen - im Bereich von 30-45 °C - entwickelt wurden. Das thermisch geregelte Bypassventil im PWH-System optimiert die Fördermengen und senkt den erforderlichen Versorgungsdruck am Hausanschluss. Dadurch kann in vielen Fällen auf eine Druckerhöhungsanlage verzichtet werden. Die strawa Wärmetechnik GmbH kann hierbei Unterstützung durch die Erstellung entsprechender hydraulischer Berechnungen bieten. Je nach Anforderungen können die Module nach unterschiedlichen Leistungsstufen und Lotmaterial des Plattenwärmeübertragers ausgewählt werden. Zusätzlich kann die Option mit Dämmung, je nach Kundenanforderungen, ausgewählt werden.
        Trinkwasserversorgung:
        Das Hydraulikmodul strawa Friwara WM-TWE-4L-HY-BY funktioniert im Durchflussprinzip und sorgt für eine stetige, energieeffiziente, komfortable und hygienische Trinkwassererwärmung. Die Erwärmung des Trinkwassers erfolgt ausschließlich bei Bedarf über den Plattenwärmeübertrager aus Edelstahl und dem nachgeschalteten Durchlauferhitzer. Durch die thermische Länge des Plattenwärmeübertragers wird eine rasche Auskühlung und eine niedrige Rücklauftemperatur garantiert. Die Einstellung der Vorerwärmung erfolgt am Frischwasserregler. Die Austrittstemperatur der gewünschten PWH-Temperatur wird am nachgeschalteten Durchlauferhitzer eingestellt.
        Die Regelung der vorgegebenen Warmwassertemperatur erfolgt durch das Zusammenspiel von Volumenstromsensor, Temperaturfühlern, Umschaltventil und Durchlauferhitzer. Der Heizungsvolumenstrom wird durch die zentrale primärseitige Pumpe bereitgestellt. Der elektrische Durchlauferhitzer kann den Durchfluss erkennen und die Leistung entsprechend anpassen, um die gewünschte Entnahmetemperatur sicherzustellen. Das thermisch geregelte Bypassventil reduziert den Druckverlust auf der Trinkwasserseite. Es mischt PWH mit geringerer Temperatur aus dem Plattenwärmeüberträger mit PWH höherer Temperatur aus dem Durchlauferhitzer, auf die am Ventil definierte PWH-Solltemperatur. Auch bei schwankenden Vorlauftemperaturen gewährleisten Frischwasserregler und Durchlauferhitzer die exakte Einhaltung der Trinkwarmwassertemperatur. Der primärseitige Versorgerkreis wird über das Umschaltventil nur dann geöffnet, wenn die Station einen Warmwasserbedarf erkennt. Das Umschaltventil kann mit hoher Präzision über den kompletten Ventilhub den Volumenstrom nach Bedarf anpassen. Nach Beendigung des Entnahmevorgangs wird das Umschaltventil sofort geschlossen. Die Möglichkeit zum Einbau von Wärme- und Wasserzählern ist durch Distanzstücke im Heizungsrücklauf und Zulauf PWC der Station gegeben.
        Flächenheizungs bzw. -kühlwasserversorgung über Niedertemperatur Strang:
        Über einen zusätzlichen Primärheiz- bzw. Kühlkreisanschluss in dem Hydraulikmodul WM-TWE-4L-HY-BY wird der Heiz/Kühlkreisverteiler mit Heiz-/Kühlwasser versorgt. Der benötigte Volumenstrom der Flächenheizung/kühlung wird über die im primärseitigen Versorgerkreis verbaute Pumpe realisiert, im Modul ist keine Pumpe verbaut. Die Möglichkeit zum Einbau von Wärme-/Kältezählern ist durch ein Distanzstück im Heizungsrücklauf gegeben.
        Durchlauferhitzer:
        Der Durchlauferhitzer dient der elektronischen Nachheizung des Trinkwassers PWH. Er erhöht dabei die zuvor durch den Plattenwärmeübertrager vorgeheizte PWH-Temperatur auf die gewünschte Entnahmetemperatur. Die Elektronik des Durchlauferhitzers regelt dabei die Wärmeleistung in Abhängigkeit der Durchlaufmenge in Verbindung mit der Temperaturdifferenz von Vorlauf- zu PWH-Entnahmetemperatur.
      2. Aufbau von Kompaktstationen:
        Der Friwara WM Systembaukasten ist modular aufgebaut und ermöglicht die Konfiguration einer vollständigen Station. Für die Trinkwassererwärmung in Kombination mit einer Flächenheizung sind folgende Module erforderlich:
        Bezeichnung WM-Modul - Artikel-Nr.
        • Schrankmodul FS-xxxxxx
        • Anschlussschienenmodul FA-xxxxxx
        • Hydraulikmodul FH-xxxxxx
        • Verteilermodul FV-xxxxxx
        • Vorverdrahtungsmodul (optional) FE-xxxxxx
        • Montageartikel* FM-xxxxxx
        Der Montageartikel definiert den Auslieferungszustand der einzelnen Module - ob diese werkseitig separat verpackt, teilmontiert oder vollständig montiert bereitgestellt werden.
      3. Vorteile:
        • modulare Zusammenstellung von Kompaktstationen
        • Module können werk- oder baustellenseitig montiert werden
        • ideal für energieeffiziente Wärmepumpen
        • hohe Entnahmemengen
        • niedrigerer Hauswasseranschlussdruck nötig
        • PWH individuell einstellbar
        • einfache Montage und Wartung
        • konstante Entnahmetemperatur
        • alle Komponenten aus einer Hand bzw. in einer komplexen Station
        • komfortable Möglichkeit zur Kaltwasser- und Wärmezählung im Wohnbaubereich
        • druckgeprüft
      4. Bestandteile:
        Heizungsseite:
        • Plattenwärmeübertrager kupfer- oder edelstahlgelötet
        • Umschaltventil für Trinkwasserbereitung und Flächenheizungsversorgung
        • Wärmezählerpassstück 3/4“ AG flachdichtend, Länge 110 mm - empfohlen wird ein Ultraschall-Wärmemengenzähler (genauere Zählung / geringerer Druckverlust)
        • Fühlereinbaustück direktfühlend Ø 5-5,2 mm M10x1 IG (für Fabrikate Ista Sensonic, Allmess V-Lite, Pollux Com E, Techem delta tech, Minol M, Rossweiner, ABB, Entex, Molliné)
        • Verrohrungsmaterial Edelstahl 1.4301 (DIN EN 10088)
        • Schmutzfänger im Primär-Vorlauf
        • eiterverrohrung:
          • Wärmezählerpassstück 3/4“ AG flachdichtend, Länge 110 mm - empfohlen wird ein Ultraschall-Wärmemengenzähler (genauere Zählung / geringerer Druckverlust)
          • Fühlereinbaustück direktfühlend Ø 5-5,2 mm M10x1 IG (für Fabrikate Ista Sensonic, Allmess V-Lite, Pollux Com E, Techem delta tech, Minol M, Rossweiner, ABB, Entex, Molliné)
          • Verrohrungsmaterial Edelstahl 1.4301 (DIN EN 10088)
          • Entlüftungsventil
          Trinkwasserseite:
          • Plattenwärmeübertrager kupfer- oder edelstahlgelötet
          • Volumenstromsensor
          • Wasserzählerpassstück 3/4“ AG flachdichtend, Länge 110 mm
          • Verrohrungsmaterial Edelstahl 1.4401 (DIN EN 10088)
          • Durchlauferhitzer
          • thermisch geregeltes Bypassventil
          Frischwasserregler:
          • Vorwärmstufe 1 einstellbar
          • Komfortschaltung für Warmspülen der Heizungsseite
          Optionale Einbauten:
          • Dämmung (D) der Rohrleitung Vorlauf und PWC aus hochflexiblem Schaumstoff auf Basis synthetischen Kautschuks, FEF
      5. Technische Daten:
        Heizungsseite:
        • max. Betriebstemperatur 35-45°C
        • max. Prüfdruck 6 bar
        • max. Betriebsdruck 4 bar (nur bei Einsatz von Friwara Verteilermodul VT-63 und VT-18)
        Trinkwassererwärmung:
        • max. Entnahmetemperatur 60 °C
        • max. Prüfdruck 15 bar
        • max. Betriebsdruck 10 bar
        Elektrischer Durchlauferhitzer:
        • max. Nennleistung (Nennstrom)
        • HY0 7 kW (10 A)
        • HY1 11 oder 13,5 kW (16 / 19,5 A)
        • HY2 18 oder 21 kW (26 / 30 A)
        • Elektroanschluss 3~ / PE 380…415 V AC
        • Leiterquerschnitt
        • 7 kW mind. 2,5 mm²
        • 11 oder 13,5 kW mind. 2,5 mm²
        • 18 oder 21 kW mind. 4 mm²
        • Bauart geschlossen, 10 bar Nennüberdruck
        • Zulauftemperatur / Temperatureinstellbereich ≤ 60 °C / 20 bis 60 °C
        • Smart Control fähig (optional)
        • Schutzklasse nach VDE I
        • Sicherheit IP 25
        Leistung allgemein:
        Typ HY0
        • 50 °C PWH
        • Leistungsstufe L1, thermische Leistung 13,4 kW (bei 40 °C Vorlauftemperatur und 1100 l/h Volumenstrom) + elektrische Leistung 6,2 kW = 19,5 kW (Entnahmemenge 7 l/min)
        -> Druckverlust = 313 mbar
        • Leistungsstufe L2, thermische Leistung 18,4 kW (bei 40 °C Vorlauftemperatur und 1100 l/h Volumenstrom) + elektrische Leistung 6,7 kW = 25,1 kW (Entnahmemenge 9 l/min)
        -> Druckverlust = 488 mbar
        Typ HY1
        • 50 °C PWH
        • Leistunsstufe L1, thermische Leistung 18,5 kW (bei 40 °C Vorlauftemperatur und 1100 l/h Volumenstrom) + elektrische Leistung 12,3 kW = 30,8 kW (Entnahmemenge 11 l/min)
        -> Druckverlust = 880 mbar
        • Leistungsstufe L2, thermische Leistung 26,1 kW (bei 40 °C Vorlauftemperatur und 1100 l/h Volumenstrom) + elektrische Leistung 13,0 kW = 39,1 kW (Entnahmemenge 14 l/min)
        -> Druckverlust = 1266 mbar
        Typ HY2
        • 50 °C PWH
        • Leistungsstufe L1, thermische Leistung 22,2 kW (bei 40 °C Vorlauftemperatur und 1100 l/h Volumenstrom) + elektrische Leistung 19,8 kW = 42,0 kW (Entnahmemenge 15 l/min)
        -> Druckverlust = 1759 mbar
        • Leistungsstufe L2, thermische Leistung 30,3 kW (bei 40 °C Vorlauftemperatur und 1100 l/h Volumenstrom) + elektrische Leistung 19,8 kW = 50,1 kW (Entnahmemenge 18 l/min)
        -> Druckverlust = 2274 mbar
      6. Anschluesse:
        • alle Primäranschlüsse sind in DN 20 mit 3/4"-Überwurfmuttern ausgeführt.

    Artikelspezifikation:
    - Leistungsstufe 1- kupfergelöteter Plattenwärmeübertrager- elektrischer Durchlauferhitzer bis 21 kW- Dämmung
    Artikelabmessung: B x H x T: 830 x 615 x 111 mm
    Artikelgewicht: 18,4 kg

    Marke: strawa
    Hersteller: strawa Wärmetechnik GmbH
    Telefon: +49 (0) 36256 8661-0 
    E-Mail: info@strawa.com
    Technische Änderungen vorbehalten.
    oder gleichwertig

    strawa Friwara WM-TWE-4L-L1-CU-HY2-BY-D -GB2,0




        1. Beschreibung:
          Die Hydraulikmodule strawa Friwara WM-TWE-4L-HY-BY sind multifunktionale Einheiten zur zuverlässigen, hygienischen Trinkwassererwärmung in Wohngebäuden, die speziell für niedrigere Vorlauftemperaturen - im Bereich von 30-45 °C - entwickelt wurden. Das thermisch geregelte Bypassventil im PWH-System optimiert die Fördermengen und senkt den erforderlichen Versorgungsdruck am Hausanschluss. Dadurch kann in vielen Fällen auf eine Druckerhöhungsanlage verzichtet werden. Die strawa Wärmetechnik GmbH kann hierbei Unterstützung durch die Erstellung entsprechender hydraulischer Berechnungen bieten. Je nach Anforderungen können die Module nach unterschiedlichen Leistungsstufen und Lotmaterial des Plattenwärmeübertragers ausgewählt werden. Zusätzlich kann die Option mit Dämmung, je nach Kundenanforderungen, ausgewählt werden.
          Trinkwasserversorgung:
          Das Hydraulikmodul strawa Friwara WM-TWE-4L-HY-BY funktioniert im Durchflussprinzip und sorgt für eine stetige, energieeffiziente, komfortable und hygienische Trinkwassererwärmung. Die Erwärmung des Trinkwassers erfolgt ausschließlich bei Bedarf über den Plattenwärmeübertrager aus Edelstahl und dem nachgeschalteten Durchlauferhitzer. Durch die thermische Länge des Plattenwärmeübertragers wird eine rasche Auskühlung und eine niedrige Rücklauftemperatur garantiert. Die Einstellung der Vorerwärmung erfolgt am Frischwasserregler. Die Austrittstemperatur der gewünschten PWH-Temperatur wird am nachgeschalteten Durchlauferhitzer eingestellt.
          Die Regelung der vorgegebenen Warmwassertemperatur erfolgt durch das Zusammenspiel von Volumenstromsensor, Temperaturfühlern, Umschaltventil und Durchlauferhitzer. Der Heizungsvolumenstrom wird durch die zentrale primärseitige Pumpe bereitgestellt. Der elektrische Durchlauferhitzer kann den Durchfluss erkennen und die Leistung entsprechend anpassen, um die gewünschte Entnahmetemperatur sicherzustellen. Das thermisch geregelte Bypassventil reduziert den Druckverlust auf der Trinkwasserseite. Es mischt PWH mit geringerer Temperatur aus dem Plattenwärmeüberträger mit PWH höherer Temperatur aus dem Durchlauferhitzer, auf die am Ventil definierte PWH-Solltemperatur. Auch bei schwankenden Vorlauftemperaturen gewährleisten Frischwasserregler und Durchlauferhitzer die exakte Einhaltung der Trinkwarmwassertemperatur. Der primärseitige Versorgerkreis wird über das Umschaltventil nur dann geöffnet, wenn die Station einen Warmwasserbedarf erkennt. Das Umschaltventil kann mit hoher Präzision über den kompletten Ventilhub den Volumenstrom nach Bedarf anpassen. Nach Beendigung des Entnahmevorgangs wird das Umschaltventil sofort geschlossen. Die Möglichkeit zum Einbau von Wärme- und Wasserzählern ist durch Distanzstücke im Heizungsrücklauf und Zulauf PWC der Station gegeben.
          Flächenheizungs bzw. -kühlwasserversorgung über Niedertemperatur Strang:
          Über einen zusätzlichen Primärheiz- bzw. Kühlkreisanschluss in dem Hydraulikmodul WM-TWE-4L-HY-BY wird der Heiz/Kühlkreisverteiler mit Heiz-/Kühlwasser versorgt. Der benötigte Volumenstrom der Flächenheizung/kühlung wird über die im primärseitigen Versorgerkreis verbaute Pumpe realisiert, im Modul ist keine Pumpe verbaut. Die Möglichkeit zum Einbau von Wärme-/Kältezählern ist durch ein Distanzstück im Heizungsrücklauf gegeben.
          Durchlauferhitzer:
          Der Durchlauferhitzer dient der elektronischen Nachheizung des Trinkwassers PWH. Er erhöht dabei die zuvor durch den Plattenwärmeübertrager vorgeheizte PWH-Temperatur auf die gewünschte Entnahmetemperatur. Die Elektronik des Durchlauferhitzers regelt dabei die Wärmeleistung in Abhängigkeit der Durchlaufmenge in Verbindung mit der Temperaturdifferenz von Vorlauf- zu PWH-Entnahmetemperatur.
        2. Aufbau von Kompaktstationen:
          Der Friwara WM Systembaukasten ist modular aufgebaut und ermöglicht die Konfiguration einer vollständigen Station. Für die Trinkwassererwärmung in Kombination mit einer Flächenheizung sind folgende Module erforderlich:
          Bezeichnung WM-Modul - Artikel-Nr.
          • Schrankmodul FS-xxxxxx
          • Anschlussschienenmodul FA-xxxxxx
          • Hydraulikmodul FH-xxxxxx
          • Verteilermodul FV-xxxxxx
          • Vorverdrahtungsmodul (optional) FE-xxxxxx
          • Montageartikel* FM-xxxxxx
          Der Montageartikel definiert den Auslieferungszustand der einzelnen Module - ob diese werkseitig separat verpackt, teilmontiert oder vollständig montiert bereitgestellt werden.
        3. Vorteile:
          • modulare Zusammenstellung von Kompaktstationen
          • Module können werk- oder baustellenseitig montiert werden
          • ideal für energieeffiziente Wärmepumpen
          • hohe Entnahmemengen
          • niedrigerer Hauswasseranschlussdruck nötig
          • PWH individuell einstellbar
          • einfache Montage und Wartung
          • konstante Entnahmetemperatur
          • alle Komponenten aus einer Hand bzw. in einer komplexen Station
          • komfortable Möglichkeit zur Kaltwasser- und Wärmezählung im Wohnbaubereich
          • druckgeprüft
        4. Bestandteile:
          Heizungsseite:
          • Plattenwärmeübertrager kupfer- oder edelstahlgelötet
          • Umschaltventil für Trinkwasserbereitung und Flächenheizungsversorgung
          • Wärmezählerpassstück 3/4“ AG flachdichtend, Länge 110 mm - empfohlen wird ein Ultraschall-Wärmemengenzähler (genauere Zählung / geringerer Druckverlust)
          • Fühlereinbaustück direktfühlend Ø 5-5,2 mm M10x1 IG (für Fabrikate Ista Sensonic, Allmess V-Lite, Pollux Com E, Techem delta tech, Minol M, Rossweiner, ABB, Entex, Molliné)
          • Verrohrungsmaterial Edelstahl 1.4301 (DIN EN 10088)
          • Schmutzfänger im Primär-Vorlauf

        5. eiterverrohrung:
          • Wärmezählerpassstück 3/4“ AG flachdichtend, Länge 110 mm - empfohlen wird ein Ultraschall-Wärmemengenzähler (genauere Zählung / geringerer Druckverlust)
          • Fühlereinbaustück direktfühlend Ø 5-5,2 mm M10x1 IG (für Fabrikate Ista Sensonic, Allmess V-Lite, Pollux Com E, Techem delta tech, Minol M, Rossweiner, ABB, Entex, Molliné)
          • Verrohrungsmaterial Edelstahl 1.4301 (DIN EN 10088)
          • Entlüftungsventil
          Trinkwasserseite:
          • Plattenwärmeübertrager kupfer- oder edelstahlgelötet
          • Volumenstromsensor
          • Wasserzählerpassstück 3/4“ AG flachdichtend, Länge 110 mm
          • Verrohrungsmaterial Edelstahl 1.4401 (DIN EN 10088)
          • Durchlauferhitzer
          • thermisch geregeltes Bypassventil
          Frischwasserregler:
          • Vorwärmstufe 1 einstellbar
          • Komfortschaltung für Warmspülen der Heizungsseite
          Optionale Einbauten:
          • Dämmung (D) der Rohrleitung Vorlauf und PWC aus hochflexiblem Schaumstoff auf Basis synthetischen Kautschuks, FEF
      1. Technische Daten:
        Heizungsseite:
        • max. Betriebstemperatur 35-45°C
        • max. Prüfdruck 6 bar
        • max. Betriebsdruck 4 bar (nur bei Einsatz von Friwara Verteilermodul VT-63 und VT-18)
        Trinkwassererwärmung:
        • max. Entnahmetemperatur 60 °C
        • max. Prüfdruck 15 bar
        • max. Betriebsdruck 10 bar
        Elektrischer Durchlauferhitzer:
        • max. Nennleistung (Nennstrom)
        • HY0 7 kW (10 A)
        • HY1 11 oder 13,5 kW (16 / 19,5 A)
        • HY2 18 oder 21 kW (26 / 30 A)
        • Elektroanschluss 3~ / PE 380…415 V AC
        • Leiterquerschnitt
        • 7 kW mind. 2,5 mm²
        • 11 oder 13,5 kW mind. 2,5 mm²
        • 18 oder 21 kW mind. 4 mm²
        • Bauart geschlossen, 10 bar Nennüberdruck
        • Zulauftemperatur / Temperatureinstellbereich ≤ 60 °C / 20 bis 60 °C
        • Smart Control fähig (optional)
        • Schutzklasse nach VDE I
        • Sicherheit IP 25
        Leistung allgemein:
        Typ HY0
        • 50 °C PWH
        • Leistungsstufe L1, thermische Leistung 13,4 kW (bei 40 °C Vorlauftemperatur und 1100 l/h Volumenstrom) + elektrische Leistung 6,2 kW = 19,5 kW (Entnahmemenge 7 l/min)
        -> Druckverlust = 313 mbar
        • Leistungsstufe L2, thermische Leistung 18,4 kW (bei 40 °C Vorlauftemperatur und 1100 l/h Volumenstrom) + elektrische Leistung 6,7 kW = 25,1 kW (Entnahmemenge 9 l/min)
        -> Druckverlust = 488 mbar
        Typ HY1
        • 50 °C PWH
        • Leistunsstufe L1, thermische Leistung 18,5 kW (bei 40 °C Vorlauftemperatur und 1100 l/h Volumenstrom) + elektrische Leistung 12,3 kW = 30,8 kW (Entnahmemenge 11 l/min)
        -> Druckverlust = 880 mbar
        • Leistungsstufe L2, thermische Leistung 26,1 kW (bei 40 °C Vorlauftemperatur und 1100 l/h Volumenstrom) + elektrische Leistung 13,0 kW = 39,1 kW (Entnahmemenge 14 l/min)
        -> Druckverlust = 1266 mbar
        Typ HY2
        • 50 °C PWH
        • Leistungsstufe L1, thermische Leistung 22,2 kW (bei 40 °C Vorlauftemperatur und 1100 l/h Volumenstrom) + elektrische Leistung 19,8 kW = 42,0 kW (Entnahmemenge 15 l/min)
        -> Druckverlust = 1759 mbar
        • Leistungsstufe L2, thermische Leistung 30,3 kW (bei 40 °C Vorlauftemperatur und 1100 l/h Volumenstrom) + elektrische Leistung 19,8 kW = 50,1 kW (Entnahmemenge 18 l/min)
        -> Druckverlust = 2274 mbar
      2. Anschluesse:
        • alle Primäranschlüsse sind in DN 20 mit 3/4"-Überwurfmuttern ausgeführt.



    Artikelspezifikation:
    - Leistungsstufe 1
    - kupfergelöteter Plattenwärmeübertrager
    - elektrischer Durchlauferhitzer bis 21 kW
    - Dämmung
    Artikelabmessung: B x H x T: 830 x 615 x 111 mm
    Artikelgewicht: 18,4 kg

    GTIN: 4061323182725
    Warennummer: 84195080
    Werksartikelnummer: FH-130021
    Warengruppe: WM
    URL: https://www.strawa.com/produkt/FH-130021

    Marke: strawa

    Hersteller: strawa Wärmetechnik GmbH
    Telefon: +49 (0) 36256 8661-0
    E-Mail: info@strawa.com
    Technische Änderungen vorbehalten.
    oder gleichwertig

    Gewähltes Fabrikat und Typ: ...........................................
    ….....................................................................................
    (vom Bieter auszufüllen)

    zur Lieferung und betriebsfertigen Montage
    ________________________________________
    Kostengruppe DIN 276 (2018-12): 422 Wärmeverteilnetze

    Leistungsbereich STLB-Bau (2021-04): 041 Wärmeversorgungsanlagen - Leitungen, Armaturen, Heizflächen

    Ausschreibungstexte

    strawa Friwara WM-TWE-4L-L1-CU-HY2-BY-D
    -GB2,0
    - Leistungsstufe 1
    - kupfergelöteter Plattenwärmeübertrager
    - elektrischer Durchlauferhitzer bis 21 kW
    - Dämmung
    Abmessung B x H x T:
    830 x 615 x 111 mm
    Artikelgewicht: 18,4 kg
    Werksartikelnummer: FH-130021
    Warennummer: 84195080
    Warengruppe: WM

    Hersteller: strawa Wärmetechnik GmbH
    Telefon: +49 (0) 36256 8661-0
    E-Mail: info@strawa.com
    Technische Änderungen vorbehalten.
    oder gleichwertig

    Produkteigenschaften

    Stammdaten

    EinheitPCE

    GTIN4061323182725

    Listenpreis2.851,70 €

    Mindesbestellmenge1

    ArtikeltypStandard

    HerkunftslandDeutschland

    Zolltarifnummer84195080

    Standardversand (Tage)6

    Elektrische BestandteileJa

    BatterieNein

    Artikelabmessungen

    Breite (mm)830

    Höhe (mm)615

    Tiefe (mm)111

    Gewicht (kg)18,4

    Verpackungsabmessungen

    Breite (mm)678

    Höhe (mm)212

    Tiefe (mm)860

    Gewicht (kg)20,9

    Passendes Zubehör

    Sie benötigen Informationen?

    Unser Team berät Sie kompetent zu unseren Produkten oder hilft Ihnen bei Auslegungen und Bestellungen. Vereinbaren Sie hier einen Rückruf.

    Kontakt