strawa Friwara WM-TWE-4L-L2-CU-HY1-D -GB2,0
strawa Friwara WM-TWE-4L-L2-CU-HY1-D -GB2,0
- Beschreibung:
Die Hydraulikmodule strawa Friwara WM-TWE-4L-HY sind multifunktionale Einheiten zur zuverlässigen, hygienischen Trinkwassererwärmung in Wohngebäuden, die speziell für niedrigere Vorlauftemperaturen - im Bereich von 30-45 °C - entwickelt wurden. Je nach Anforderungen können die Module nach unterschiedlichen Leistungsstufen und Lotmaterial des Plattenwärmeübertragers ausgewählt werden. Zusätzlich kann die Option mit Dämmung, je nach Kundenanforderungen, ausgewählt werden.
Trinkwasserversorgung
Das Hydraulikmodul strawa Friwara WM-TWE-4L-HY funktioniert im Durchflussprinzip und sorgt für eine stetige, energieeffiziente, komfortable und hygienische Trinkwassererwärmung. Die Erwärmung des Trinkwassers erfolgt ausschließlich bei Bedarf über den Plattenwärmeübertrager aus Edelstahl und dem nachgeschalteten Durchlauferhitzer. Durch die thermische Länge des Plattenwärmeübertragers wird eine rasche Auskühlung und eine niedrige Rücklauftemperatur garantiert. Die Einstellung der Vorerwärmung erfolgt am Frischwasserregler. Die Austrittstemperatur der gewünschten PWH-Temperatur wird am nachgeschalteten Durchlauferhitzer eingestellt. Die Regelung der vorgegebenen Warmwassertemperatur erfolgt durch das Zusammenspiel von Volumenstromsensor, Temperaturfühlern, Umschaltventil und Durchlauferhitzer. Der Heizungsvolumenstrom wird durch die zentrale primärseitige Pumpe bereitgestellt. Der elektrische Durchlauferhitzer kann den Durchfluss erkennen und die Leistung entsprechend anpassen, um die gewünschte Entnahmetemperatur sicherzustellen. Auch bei schwankenden Vorlauftemperaturen gewährleisten Frischwasserregler und Durchlauferhitzer die exakte Einhaltung der Trinkwarmwassertemperatur. Der primärseitige Versorgerkreis wird über das Umschaltventil nur dann geöffnet, wenn die Station einen Warmwasserbedarf erkennt. Das Umschaltventil kann mit hoher Präzision über den kompletten Ventilhub den Volumenstrom nach Bedarf anpassen. Nach Beendigung des Entnahmevorgangs wird das Umschaltventil sofort geschlossen. Die Möglichkeit zum Einbau von Wärme- und Wasserzählern ist durch Distanzstücke im Heizungsrücklauf und Zulauf PWC der Station gegeben.
Flächenheizungs bzw. -kühlwasserversorgung über Niedertemperatur Strang
Über einen zusätzlichen Primärheiz- bzw. Kühlkreisanschluss in dem Hydraulikmodul WM-TWE-4L-HY wird der Heiz/Kühlkreisverteiler mit Heiz-/Kühlwasser versorgt. Der benötigte Volumenstrom der Flächenheizung/kühlung wird über die im primärseitigen Versorgerkreis verbaute Pumpe realisiert, im Modul ist keine Pumpe verbaut. Die Möglichkeit zum Einbau von Wärme-/Kältezählern ist durch ein Distanzstück im Heizungsrücklauf gegeben.
Durchlauferhitzer
Der Durchlauferhitzer dient der elektronischen Nachheizung des Trinkwassers PWH. Er erhöht dabei die zuvor durch den Plattenwärmeübertrager vorgeheizte PWH-Temperatur auf die gewünschte Entnahmetemperatur. Die Elektronik des Durchlauferhitzers regelt dabei die Wärmeleistung in Abhängigkeit der Durchlaufmenge in Verbindung mit der Temperaturdifferenz von Vorlauf- zu PWH-Entnahmetemperatur.
- Aufbau von Kompaktstationen:
Der Friwara WM Systembaukasten ist modular aufgebaut und ermöglicht die Konfiguration einer vollständigen Station. Für die Trinkwassererwärmung in Kombination mit einer Flächenheizung sind folgende Module erforderlich:
Bezeichnung WM-Modul - Artikel-Nr.
- Schrankmodul FS-xxxxxx
- Anschlussschienenmodul FA-xxxxxx
- Hydraulikmodul FH-xxxxxx
- Verteilermodul FV-xxxxxx
- Vorverdrahtungsmodul (optional) FE-xxxxxx
- Montageartikel* FM-xxxxxx
Der Montageartikel definiert den Auslieferungszustand der einzelnen Module - ob diese werkseitig separat verpackt, teilmontiert oder vollständig montiert bereitgestellt werden.
- Vorteile:
- modulare Zusammenstellung von Kompaktstationen
- Module können werk- oder baustellenseitig montiert werden
- ideal für energieeffiziente Wärmepumpen
- PWH individuell einstellbar
- einfache Montage und Wartung
- konstante Entnahmetemperatur
- alle Komponenten aus einer Hand bzw. in einer komplexen Station
- komfortable Möglichkeit zur Kaltwasser- und Wärmezählung im Wohnbaubereich
- druckgeprüft
- Bestandteile:
Heizungsseite:
- Plattenwärmeübertrager kupfer- oder edelstahlgelötet
- Umschaltventil für Trinkwasserbereitung und Flächenheizungsversorgung
- Wärmezählerpassstück 3/4“ AG flachdichtend, Länge 110 mm - empfohlen wird ein Ultraschall-Wärmemengenzähler (genauere Zählung / geringerer Druckverlust)
- Fühlereinbaustück direktfühlend Ø 5-5,2 mm M10x1 IG (für Fabrikate Ista Sensonic, Allmess V-Lite, Pollux Com E, Techem delta tech, Minol M, Rossweiner, ABB, Entex, Molliné)
- Verrohrungsmaterial Edelstahl 1.4301 (DIN EN 10088)
- Schmutzfänger im Primär-Vorlauf
$-Leiterverrohrung:
- Wärmezählerpassstück 3/4“ AG flachdichtend, Länge 110 mm - empfohlen wird ein Ultraschall-Wärmemengenzähler (genauere Zählung / geringerer Druckverlust)
- Fühlereinbaustück direktfühlend Ø 5-5,2 mm M10x1 IG (für Fabrikate Ista Sensonic, Allmess V-Lite, Pollux Com E, Techem delta tech, Minol M, Rossweiner, ABB, Entex, Molliné)
- Verrohrungsmaterial Edelstahl 1.4301 (DIN EN 10088)
- Entlüftungsventil
Trinkwasserseite:
Plattenwärmeübertrager kupfer- oder edelstahlgelötet
- Volumenstromsensor
- Wasserzählerpassstück 3/4“ AG flachdichtend, Länge 110 mm
- Verrohrungsmaterial Edelstahl 1.4401 (DIN EN 10088)
- Durchlauferhitzer
Frischwasserregler:
- Vorwärmstufe 1 einstellbar
- Komfortschaltung für Warmspülen der Heizungsseite
Optionale Einbauten:
- Dämmung (D) der Rohrleitung Vorlauf und PWC aus hochflexiblem Schaumstoff auf Basis synthetischen Kautschuks, FEF
- Technische Daten:
Heizungsseite:
- max. Betriebstemperatur 35-45°C
- max. Prüfdruck 6 bar
- max. Betriebsdruck 4 bar (nur bei Einsatz von Friwara Verteilermodul VT-63 und VT-18)
Trinkwassererwärmung:
- max. Entnahmetemperatur 60 °C
- max. Prüfdruck 15 bar
- max. Betriebsdruck 10 bar
Elektrischer Durchlauferhitzer:
- max. Nennleistung (Nennstrom)
- HY0 7 kW (10 A)
- HY1 11 oder 13,5 kW (16 / 19,5 A)
- HY2 18 oder 21 kW (26 / 30 A)
- Elektroanschluss 3~ / PE 380…415 V AC
- Leiterquerschnitt
- 7 kW mind. 2,5 mm²
- 11 oder 13,5 kW mind. 2,5 mm²
- 18 oder 21 kW mind. 4 mm²
- Bauart geschlossen, 10 bar Nennüberdruck
- Zulauftemperatur / Temperatureinstellbereich ≤ 60 °C / 20 bis 60 °C
- Smart Control fähig (optional)
- Schutzklasse nach VDE I
- Sicherheit IP 25
Leistung allgemein:
Typ HY0
- 50 °C PWH
- Leistungsstufe L1, thermische Leistung 13,4 kW (bei 40 °C Vorlauftemperatur und 1100 l/h Volumenstrom) + elektrische Leistung 6,2 kW = 19,6 kW (Entnahmemenge 7 l/min)
-> Druckverlust = 798 mbar
- Leistungsstufe L2, thermische Leistung 18,4 kW (bei 40 °C Vorlauftemperatur und 1100 l/h Volumenstrom) + elektrische Leistung 6,7 kW = 25,1 kW (Entnahmemenge 9 l/min)
-> Druckverlust = 1318 mbar
Typ HY1
- 50 °C PWH
- Leistungstufe L1, thermische Leistung 18,5 kW (bei 40 °C Vorlauftemperatur und 1100 l/h Volumenstrom) + elektrische Leistung 12,3 kW = 30,8 kW (Entnahmemenge 11 l/min)
-> Druckverlust = 1969 mbar
- Leistungsstufe L2, thermische Leistung 26,1 kW (bei 40 °C Vorlauftemperatur und 1100 l/h Volumenstrom) + elektrische Leistung 13,0 kW = 39,1 kW (Entnahmemenge 14 l/min)
-> Druckverlust = 3190 mbar
Typ HY2
- 50 °C PWH
- Leistungsstufe L1, thermische Leistung 22,2 kW (bei 40 °C Vorlauftemperatur und 1100 l/h Volumenstrom) + elektrische Leistung 19,8 kW = 42 kW (Entnahmemenge 15 l/min)
-> Druckverlust = 3662 mbar
- Leistungstufe L2, thermische Leistung 27,3 kW (bei 40 °C Vorlauftemperatur und 1100 l/h Volumenstrom) + elektrische Leistung 14,6 kW = 42 kW (Entnahmemenge 15 l/min*)
-> Druckverlust = 3362 mbar
* maximale Entnahmemenge Durchlauferhitzer
- Anschlüsse:
- alle Primäranschlüsse sind in DN 20 mit 3/4"-Überwurfmuttern ausgeführt.
Artikelspezifikation:
- Leistungsstufe 2- kupfergelöteter Plattenwärmeübertrager- elektrischer Durchlauferhitzer bis 13,5 kW- Dämmung
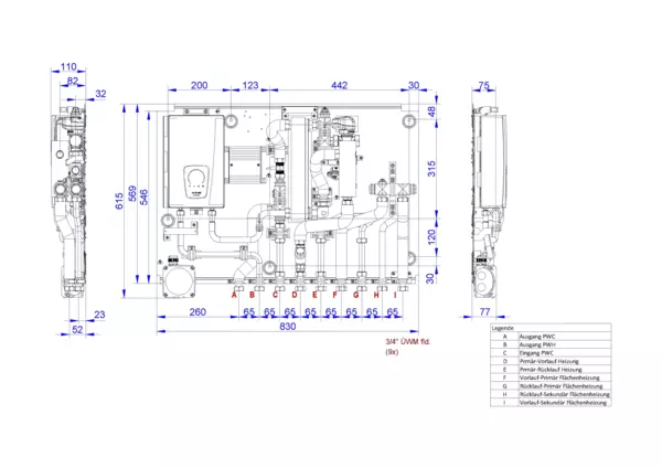
Artikelabmessung: B x H x T: 830 x 615 x 111 mm
Artikelgewicht: 18,5 kg
Marke: strawa
Hersteller: strawa Wärmetechnik GmbH
Telefon: +49 (0) 36256 8661-0
E-Mail: info@strawa.com
Technische Änderungen vorbehalten.
strawa Friwara WM-TWE-4L-L2-CU-HY1-D -GB2,0
- Beschreibung:
Die Hydraulikmodule strawa Friwara WM-TWE-4L-HY sind multifunktionale Einheiten zur zuverlässigen, hygienischen Trinkwassererwärmung in Wohngebäuden, die speziell für niedrigere Vorlauftemperaturen - im Bereich von 30-45 °C - entwickelt wurden. Je nach Anforderungen können die Module nach unterschiedlichen Leistungsstufen und Lotmaterial des Plattenwärmeübertragers ausgewählt werden. Zusätzlich kann die Option mit Dämmung, je nach Kundenanforderungen, ausgewählt werden.
Trinkwasserversorgung
Das Hydraulikmodul strawa Friwara WM-TWE-4L-HY funktioniert im Durchflussprinzip und sorgt für eine stetige, energieeffiziente, komfortable und hygienische Trinkwassererwärmung. Die Erwärmung des Trinkwassers erfolgt ausschließlich bei Bedarf über den Plattenwärmeübertrager aus Edelstahl und dem nachgeschalteten Durchlauferhitzer. Durch die thermische Länge des Plattenwärmeübertragers wird eine rasche Auskühlung und eine niedrige Rücklauftemperatur garantiert. Die Einstellung der Vorerwärmung erfolgt am Frischwasserregler. Die Austrittstemperatur der gewünschten PWH-Temperatur wird am nachgeschalteten Durchlauferhitzer eingestellt. Die Regelung der vorgegebenen Warmwassertemperatur erfolgt durch das Zusammenspiel von Volumenstromsensor, Temperaturfühlern, Umschaltventil und Durchlauferhitzer. Der Heizungsvolumenstrom wird durch die zentrale primärseitige Pumpe bereitgestellt. Der elektrische Durchlauferhitzer kann den Durchfluss erkennen und die Leistung entsprechend anpassen, um die gewünschte Entnahmetemperatur sicherzustellen. Auch bei schwankenden Vorlauftemperaturen gewährleisten Frischwasserregler und Durchlauferhitzer die exakte Einhaltung der Trinkwarmwassertemperatur. Der primärseitige Versorgerkreis wird über das Umschaltventil nur dann geöffnet, wenn die Station einen Warmwasserbedarf erkennt. Das Umschaltventil kann mit hoher Präzision über den kompletten Ventilhub den Volumenstrom nach Bedarf anpassen. Nach Beendigung des Entnahmevorgangs wird das Umschaltventil sofort geschlossen. Die Möglichkeit zum Einbau von Wärme- und Wasserzählern ist durch Distanzstücke im Heizungsrücklauf und Zulauf PWC der Station gegeben.
Flächenheizungs bzw. -kühlwasserversorgung über Niedertemperatur Strang
Über einen zusätzlichen Primärheiz- bzw. Kühlkreisanschluss in dem Hydraulikmodul WM-TWE-4L-HY wird der Heiz/Kühlkreisverteiler mit Heiz-/Kühlwasser versorgt. Der benötigte Volumenstrom der Flächenheizung/kühlung wird über die im primärseitigen Versorgerkreis verbaute Pumpe realisiert, im Modul ist keine Pumpe verbaut. Die Möglichkeit zum Einbau von Wärme-/Kältezählern ist durch ein Distanzstück im Heizungsrücklauf gegeben.
Durchlauferhitzer
Der Durchlauferhitzer dient der elektronischen Nachheizung des Trinkwassers PWH. Er erhöht dabei die zuvor durch den Plattenwärmeübertrager vorgeheizte PWH-Temperatur auf die gewünschte Entnahmetemperatur. Die Elektronik des Durchlauferhitzers regelt dabei die Wärmeleistung in Abhängigkeit der Durchlaufmenge in Verbindung mit der Temperaturdifferenz von Vorlauf- zu PWH-Entnahmetemperatur.
- Aufbau von Kompaktstationen:
Der Friwara WM Systembaukasten ist modular aufgebaut und ermöglicht die Konfiguration einer vollständigen Station. Für die Trinkwassererwärmung in Kombination mit einer Flächenheizung sind folgende Module erforderlich:
Bezeichnung WM-Modul - Artikel-Nr.
- Schrankmodul FS-xxxxxx
- Anschlussschienenmodul FA-xxxxxx
- Hydraulikmodul FH-xxxxxx
- Verteilermodul FV-xxxxxx
- Vorverdrahtungsmodul (optional) FE-xxxxxx
- Montageartikel* FM-xxxxxx
Der Montageartikel definiert den Auslieferungszustand der einzelnen Module - ob diese werkseitig separat verpackt, teilmontiert oder vollständig montiert bereitgestellt werden.
- Vorteile:
- modulare Zusammenstellung von Kompaktstationen
- Module können werk- oder baustellenseitig montiert werden
- ideal für energieeffiziente Wärmepumpen
- PWH individuell einstellbar
- einfache Montage und Wartung
- konstante Entnahmetemperatur
- alle Komponenten aus einer Hand bzw. in einer komplexen Station
- komfortable Möglichkeit zur Kaltwasser- und Wärmezählung im Wohnbaubereich
- druckgeprüft
- Bestandteile:
Heizungsseite:
- Plattenwärmeübertrager kupfer- oder edelstahlgelötet
- Umschaltventil für Trinkwasserbereitung und Flächenheizungsversorgung
- Wärmezählerpassstück 3/4“ AG flachdichtend, Länge 110 mm - empfohlen wird ein Ultraschall-Wärmemengenzähler (genauere Zählung / geringerer Druckverlust)
- Fühlereinbaustück direktfühlend Ø 5-5,2 mm M10x1 IG (für Fabrikate Ista Sensonic, Allmess V-Lite, Pollux Com E, Techem delta tech, Minol M, Rossweiner, ABB, Entex, Molliné)
- Verrohrungsmaterial Edelstahl 1.4301 (DIN EN 10088)
- Schmutzfänger im Primär-Vorlauf
$-Leiterverrohrung:
- Wärmezählerpassstück 3/4“ AG flachdichtend, Länge 110 mm - empfohlen wird ein Ultraschall-Wärmemengenzähler (genauere Zählung / geringerer Druckverlust)
- Fühlereinbaustück direktfühlend Ø 5-5,2 mm M10x1 IG (für Fabrikate Ista Sensonic, Allmess V-Lite, Pollux Com E, Techem delta tech, Minol M, Rossweiner, ABB, Entex, Molliné)
- Verrohrungsmaterial Edelstahl 1.4301 (DIN EN 10088)
- Entlüftungsventil
Trinkwasserseite:
Plattenwärmeübertrager kupfer- oder edelstahlgelötet
- Volumenstromsensor
- Wasserzählerpassstück 3/4“ AG flachdichtend, Länge 110 mm
- Verrohrungsmaterial Edelstahl 1.4401 (DIN EN 10088)
- Durchlauferhitzer
Frischwasserregler:
- Vorwärmstufe 1 einstellbar
- Komfortschaltung für Warmspülen der Heizungsseite
Optionale Einbauten:
- Dämmung (D) der Rohrleitung Vorlauf und PWC aus hochflexiblem Schaumstoff auf Basis synthetischen Kautschuks, FEF
- Technische Daten:
Heizungsseite:
- max. Betriebstemperatur 35-45°C
- max. Prüfdruck 6 bar
- max. Betriebsdruck 4 bar (nur bei Einsatz von Friwara Verteilermodul VT-63 und VT-18)
Trinkwassererwärmung:
- max. Entnahmetemperatur 60 °C
- max. Prüfdruck 15 bar
- max. Betriebsdruck 10 bar
Elektrischer Durchlauferhitzer:
- max. Nennleistung (Nennstrom)
- HY0 7 kW (10 A)
- HY1 11 oder 13,5 kW (16 / 19,5 A)
- HY2 18 oder 21 kW (26 / 30 A)
- Elektroanschluss 3~ / PE 380…415 V AC
- Leiterquerschnitt
- 7 kW mind. 2,5 mm²
- 11 oder 13,5 kW mind. 2,5 mm²
- 18 oder 21 kW mind. 4 mm²
- Bauart geschlossen, 10 bar Nennüberdruck
- Zulauftemperatur / Temperatureinstellbereich ≤ 60 °C / 20 bis 60 °C
- Smart Control fähig (optional)
- Schutzklasse nach VDE I
- Sicherheit IP 25
Leistung allgemein:
Typ HY0
- 50 °C PWH
- Leistungsstufe L1, thermische Leistung 13,4 kW (bei 40 °C Vorlauftemperatur und 1100 l/h Volumenstrom) + elektrische Leistung 6,2 kW = 19,6 kW (Entnahmemenge 7 l/min)
-> Druckverlust = 798 mbar
- Leistungsstufe L2, thermische Leistung 18,4 kW (bei 40 °C Vorlauftemperatur und 1100 l/h Volumenstrom) + elektrische Leistung 6,7 kW = 25,1 kW (Entnahmemenge 9 l/min)
-> Druckverlust = 1318 mbar
Typ HY1
- 50 °C PWH
- Leistungstufe L1, thermische Leistung 18,5 kW (bei 40 °C Vorlauftemperatur und 1100 l/h Volumenstrom) + elektrische Leistung 12,3 kW = 30,8 kW (Entnahmemenge 11 l/min)
-> Druckverlust = 1969 mbar
- Leistungsstufe L2, thermische Leistung 26,1 kW (bei 40 °C Vorlauftemperatur und 1100 l/h Volumenstrom) + elektrische Leistung 13,0 kW = 39,1 kW (Entnahmemenge 14 l/min)
-> Druckverlust = 3190 mbar
Typ HY2
- 50 °C PWH
- Leistungsstufe L1, thermische Leistung 22,2 kW (bei 40 °C Vorlauftemperatur und 1100 l/h Volumenstrom) + elektrische Leistung 19,8 kW = 42 kW (Entnahmemenge 15 l/min)
-> Druckverlust = 3662 mbar
- Leistungstufe L2, thermische Leistung 27,3 kW (bei 40 °C Vorlauftemperatur und 1100 l/h Volumenstrom) + elektrische Leistung 14,6 kW = 42 kW (Entnahmemenge 15 l/min*)
-> Druckverlust = 3362 mbar
* maximale Entnahmemenge Durchlauferhitzer
- Anschlüsse:
- alle Primäranschlüsse sind in DN 20 mit 3/4"-Überwurfmuttern ausgeführt.
Artikelspezifikation:
- Leistungsstufe 2
- kupfergelöteter Plattenwärmeübertrager
- elektrischer Durchlauferhitzer bis 13,5 kW
- Dämmung
Artikelabmessung: B x H x T: 830 x 615 x 111 mm
Artikelgewicht: 18,5 kg
GTIN: 4061323182237
Warennummer: 84195080
Werksartikelnummer: FH-090019
Warengruppe: WM
URL: https://www.strawa.com/produkt/FH-090019
Marke: strawa
Hersteller: strawa Wärmetechnik GmbH
Telefon: +49 (0) 36256 8661-0
E-Mail: info@strawa.com
Technische Änderungen vorbehalten.
oder gleichwertig
Gewähltes Fabrikat und Typ: ...........................................
….....................................................................................
(vom Bieter auszufüllen)
zur Lieferung und betriebsfertigen Montage
________________________________________
Kostengruppe DIN 276 (2018-12): 422 Wärmeverteilnetze
Leistungsbereich STLB-Bau (2021-04): 041 Wärmeversorgungsanlagen - Leitungen, Armaturen, Heizflächen
strawa Friwara WM-TWE-4L-L2-CU-HY1-D
-GB2,0
- Leistungsstufe 2
- kupfergelöteter Plattenwärmeübertrager
- elektrischer Durchlauferhitzer bis 13,5 kW
- Dämmung
Abmessung B x H x T:
830 x 615 x 111 mm
Artikelgewicht: 18,5 kg
Werksartikelnummer: FH-090019
Warennummer: 84195080
Warengruppe: WM
Hersteller: strawa Wärmetechnik GmbH
Telefon: +49 (0) 36256 8661-0
E-Mail: info@strawa.com
Technische Änderungen vorbehalten.
oder gleichwertig