strawa Friwara WM-TWE-4L-L1-VA-WH -GB1,5
strawa Friwara WM-TWE-4L-L1-VA-WH -GB1,5
- Beschreibung:
Die Hydraulikmodule strawa Friwara WM-TWE-4L sind multifunktionale Einheiten zur zuverlässigen, hygienischen Warmwasserversorgung in Wohngebäuden. Je nach Anforderungen können die Module nach unterschiedlichen Leistungsstufen und Lotmaterial des Plattenwärmeübertragers ausgewählt werden. Zusätzlich können Optionen mit Zirkulation, Warmhaltung oder Dämmung, je nach Kundenanforderungen, ausgewählt werden.
Trinkwasserversorgung:
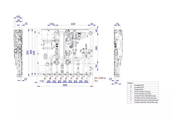
Das Hydraulikmodul strawa Friwara WM-TWE-4L arbeitet im Durchflussprinzip und sorgt für eine stetige, energieeffiziente, komfortable und hygienische Trinkwassererwärmung. Die Erwärmung des Trinkwassers erfolgt ausschließlich bei Bedarf über den Plattenwärmeübertrager aus Edelstahl. Durch die thermische Länge des Plattenwärmeübertragers wird eine rasche Auskühlung und eine niedrige Rücklauftemperatur garantiert. Die Einstellung der gewünschten Warmwassertemperatur erfolgt am Frischwasserregler. Die Regelung der vorgegebenen Warmwassertemperatur erfolgt durch das Zusammenspiel von Volumenstromsensor, Temperaturfühlern und Umschaltventil. Der Heizungsvolumenstrom wird durch die zentrale primärseitige Pumpe bereitgestellt. Der Frischwasserregler gewährleistet auch bei schwankenden Vorlauftemperaturen die exakte Einhaltung der Trinkwarmwassertemperatur. Der primärseitige Versorgerkreis wird über das Umschaltventil nur dann geöffnet, wenn die Station einen Warmwasserbedarf erkennt. Das Umschaltventil kann mit hoher Präzision über den kompletten Ventilhub den Volumenstrom nach Bedarf anpassen. Nach Beendigung des Entnahmevorgangs wird das Umschaltventil sofort geschlossen. Die Möglichkeit zum Einbau von Wärme- und Wasserzählern ist durch Distanzstücke im Heizungsrücklauf und Zulauf PWC der Station gegeben.
Flächenheizungs bzw. -kühlwasserversorgung über Niedertemperatur Strang:
Über einen zusätzlichen Primärheiz- bzw. Kühlkreisanschluss in dem Hydraulikmodul WM-TWE-4L wird der Heiz/Kühlkreisverteiler mit Heiz-/Kühlwasser versorgt. Der benötigte Volumenstrom der Flächenheizung/kühlung wird über die im primärseitigen Versorgerkreis verbaute Pumpe realisiert, im Modul ist keine Pumpe verbaut. Die Möglichkeit zum Einbau von Wärme-/Kältezählern ist durch ein Distanzstück im Heizungsrücklauf gegeben.
- Aufbau von Kompaktstationen:
Der Friwara WM Systembaukasten ist modular aufgebaut und ermöglicht die Konfiguration einer vollständigen Station. Für die Trinkwassererwärmung in Kombination mit einer Flächenheizung sind folgende Module erforderlich:
Bezeichnung WM-Modul - Artikel-Nr.
- Schrankmodul FS-xxxxxx
- Anschlussschienenmodul FA-xxxxxx
- Hydraulikmodul FH-xxxxxx
- Verteilermodul FV-xxxxxx
- Vorverdrahtungsmodul (optional) FE-xxxxxx
- Montageartikel* FM-xxxxxx
Der Montageartikel definiert den Auslieferungszustand der einzelnen Module - ob diese werkseitig separat verpackt, teilmontiert oder vollständig montiert bereitgestellt werden.
- Vorteile:
- modulare Zusammenstellung von Kompaktstationen
- Module können werk- oder baustellenseitig montiert werden
- PWH individuell einstellbar
- einfache Montage und Wartung
- konstante Entnahmetemperatur
- alle Komponenten aus einer Hand bzw. in einer komplexen Station
- komfortable Möglichkeit zur Kaltwasser- und Wärmezählung im Wohnbaubereich
- druckgeprüft
- Bestandteile:
Heizungsseite:
- Plattenwärmeübertrager kupfer- oder edelstahlgelötet
- Umschaltventil für Trinkwasserbereitung und Flächenheizungsversorgung
- Wärmezählerpassstück 3/4“ AG flachdichtend, Länge 110 mm - empfohlen wird ein Ultraschall-Wärmemengenzähler (genauere Zählung / geringerer Druckverlust)
- Fühlereinbaustück direktfühlend Ø 5-5,2 mm M10x1 IG (für Fabrikate Ista Sensonic, Allmess V-Lite, Pollux Com E, Techem delta tech, Minol M, Rossweiner, ABB, Entex, Molliné)
- Verrohrungsmaterial Edelstahl 1.4301 (DIN EN 10088)
- Schmutzfänger im Primär-Vorlauf
- eiterverrohrung:
- Wärmezählerpassstück 3/4“ AG flachdichtend, Länge 110 mm - empfohlen wird ein Ultraschall-Wärmemengenzähler (genauere Zählung / geringerer Druckverlust)
- Fühlereinbaustück direktfühlend Ø 5-5,2 mm M10x1 IG (für Fabrikate Ista Sensonic, Allmess V-Lite, Pollux Com E, Techem delta tech, Minol M, Rossweiner, ABB, Entex, Molliné)
-Verrohrungsmaterial Edelstahl 1.4301 (DIN EN 10088)
Trinkwasserseite:
- Plattenwärmeübertrager kupfer- oder edelstahlgelötet
- Volumenstromsensor
- Wasserzählerpassstück 3/4“ AG flachdichtend, Länge 110 mm
- Verrohrungsmaterial Edelstahl 1.4401 (DIN EN 10088)
Frischwasserregler:
- Trinkwarmwassertemperatur individuell einstellbar
- Komfortschaltung für Warmhalten und/oder Warmspülen der Heizungsseite
Optionale Einbauten:
- Zirkulationsmodul (Z) mit Zirkulationspumpe
-> Hinweis: Sicherheitseinrichtungen (wie Sicherheitsventil, Membranausdehnungsgefäß und Rückflussverhinderer) müssen zentral geplant werden
- Warmhaltemodul (WH) mit thermischem Ventil (Einstellbereich 20-40 °C)
- Dämmung (D) des Hydraulikmoduls ohne Zirkulation:
Rohrleitung Vorlauf und PWC aus hochflexiblem Schaumstoff auf Basis synthetischen Kautschuks, FEF
- Dämmung (D) des Hydraulikmoduls mit Zirkulation:
Rohrleitung Vorlauf, Plattenwärme-übertrager, PWC und PWH aus hochflexiblem Schaumstoff auf Basis synthetischen Kautschuks, FEF
- Technische Daten:
Heizungsseite:
- max. Betriebstemperatur 75 °C Empfehlung liegt bei 60 °C - zum Schutz des Plattenwärmeübertragers gegen Verkalkung
- max. Prüfdruck 6 bar
- max. Betriebsdruck 4 bar
Trinkwassererwärmung:
- max. Entnahmetemperatur 60 °C
- max. Prüfdruck 15 bar
- max. Betriebsdruck 10 bar
Leistung allgemein:
- 50 °C PWH
- Leistungsstufe L1, thermische Leistung 47,5 kW (Vorlauf 65 °C und Volumenstrom 1300 l/h), bei Entnahmemenge 17 l/min
- Leistungsstufe L2, thermische Leistung 70 kW (Vorlauf 65 °C und Volumenstrom 1300 l/h), bei Entnahmemenge 25 l/min
- Anschluesse:
- alle Primäranschlüsse sind in DN 20 mit 3/4"-Überwurfmuttern ausgeführt.
Artikelspezifikation:
- Leistungsstufe 1- edelstahlgelöteter Plattenwärmeübertrager- Warmhaltung
Artikelabmessung: B x H x T: 680 x 590 x 105 mm
Artikelgewicht: 13,7 kg
Marke: strawa
Hersteller: strawa Wärmetechnik GmbH
Telefon: +49 (0) 36256 8661-0
E-Mail: info@strawa.com
Technische Änderungen vorbehalten.
oder gleichwertig
strawa Friwara WM-TWE-4L-L1-VA-WH -GB1,5
- Beschreibung:
Die Hydraulikmodule strawa Friwara WM-TWE-4L sind multifunktionale Einheiten zur zuverlässigen, hygienischen Warmwasserversorgung in Wohngebäuden. Je nach Anforderungen können die Module nach unterschiedlichen Leistungsstufen und Lotmaterial des Plattenwärmeübertragers ausgewählt werden. Zusätzlich können Optionen mit Zirkulation, Warmhaltung oder Dämmung, je nach Kundenanforderungen, ausgewählt werden.
Trinkwasserversorgung:
Das Hydraulikmodul strawa Friwara WM-TWE-4L arbeitet im Durchflussprinzip und sorgt für eine stetige, energieeffiziente, komfortable und hygienische Trinkwassererwärmung. Die Erwärmung des Trinkwassers erfolgt ausschließlich bei Bedarf über den Plattenwärmeübertrager aus Edelstahl. Durch die thermische Länge des Plattenwärmeübertragers wird eine rasche Auskühlung und eine niedrige Rücklauftemperatur garantiert. Die Einstellung der gewünschten Warmwassertemperatur erfolgt am Frischwasserregler. Die Regelung der vorgegebenen Warmwassertemperatur erfolgt durch das Zusammenspiel von Volumenstromsensor, Temperaturfühlern und Umschaltventil. Der Heizungsvolumenstrom wird durch die zentrale primärseitige Pumpe bereitgestellt. Der Frischwasserregler gewährleistet auch bei schwankenden Vorlauftemperaturen die exakte Einhaltung der Trinkwarmwassertemperatur. Der primärseitige Versorgerkreis wird über das Umschaltventil nur dann geöffnet, wenn die Station einen Warmwasserbedarf erkennt. Das Umschaltventil kann mit hoher Präzision über den kompletten Ventilhub den Volumenstrom nach Bedarf anpassen. Nach Beendigung des Entnahmevorgangs wird das Umschaltventil sofort geschlossen. Die Möglichkeit zum Einbau von Wärme- und Wasserzählern ist durch Distanzstücke im Heizungsrücklauf und Zulauf PWC der Station gegeben.
Flächenheizungs bzw. -kühlwasserversorgung über Niedertemperatur Strang:
Über einen zusätzlichen Primärheiz- bzw. Kühlkreisanschluss in dem Hydraulikmodul WM-TWE-4L wird der Heiz/Kühlkreisverteiler mit Heiz-/Kühlwasser versorgt. Der benötigte Volumenstrom der Flächenheizung/kühlung wird über die im primärseitigen Versorgerkreis verbaute Pumpe realisiert, im Modul ist keine Pumpe verbaut. Die Möglichkeit zum Einbau von Wärme-/Kältezählern ist durch ein Distanzstück im Heizungsrücklauf gegeben.
- Aufbau von Kompaktstationen:
Der Friwara WM Systembaukasten ist modular aufgebaut und ermöglicht die Konfiguration einer vollständigen Station. Für die Trinkwassererwärmung in Kombination mit einer Flächenheizung sind folgende Module erforderlich:
Bezeichnung WM-Modul - Artikel-Nr.
- Schrankmodul FS-xxxxxx
- Anschlussschienenmodul FA-xxxxxx
- Hydraulikmodul FH-xxxxxx
- Verteilermodul FV-xxxxxx
- Vorverdrahtungsmodul (optional) FE-xxxxxx
- Montageartikel* FM-xxxxxx
Der Montageartikel definiert den Auslieferungszustand der einzelnen Module - ob diese werkseitig separat verpackt, teilmontiert oder vollständig montiert bereitgestellt werden.
- Vorteile:
- modulare Zusammenstellung von Kompaktstationen
- Module können werk- oder baustellenseitig montiert werden
- PWH individuell einstellbar
- einfache Montage und Wartung
- konstante Entnahmetemperatur
- alle Komponenten aus einer Hand bzw. in einer komplexen Station
- komfortable Möglichkeit zur Kaltwasser- und Wärmezählung im Wohnbaubereich
- druckgeprüft
- Bestandteile:
Heizungsseite:
- Plattenwärmeübertrager kupfer- oder edelstahlgelötet
- Umschaltventil für Trinkwasserbereitung und Flächenheizungsversorgung
- Wärmezählerpassstück 3/4“ AG flachdichtend, Länge 110 mm - empfohlen wird ein Ultraschall-Wärmemengenzähler (genauere Zählung / geringerer Druckverlust)
- Fühlereinbaustück direktfühlend Ø 5-5,2 mm M10x1 IG (für Fabrikate Ista Sensonic, Allmess V-Lite, Pollux Com E, Techem delta tech, Minol M, Rossweiner, ABB, Entex, Molliné)
- Verrohrungsmaterial Edelstahl 1.4301 (DIN EN 10088)
- Schmutzfänger im Primär-Vorlauf
- eiterverrohrung:
- Wärmezählerpassstück 3/4“ AG flachdichtend, Länge 110 mm - empfohlen wird ein Ultraschall-Wärmemengenzähler (genauere Zählung / geringerer Druckverlust)
- Fühlereinbaustück direktfühlend Ø 5-5,2 mm M10x1 IG (für Fabrikate Ista Sensonic, Allmess V-Lite, Pollux Com E, Techem delta tech, Minol M, Rossweiner, ABB, Entex, Molliné)
-Verrohrungsmaterial Edelstahl 1.4301 (DIN EN 10088)
Trinkwasserseite:
- Plattenwärmeübertrager kupfer- oder edelstahlgelötet
- Volumenstromsensor
- Wasserzählerpassstück 3/4“ AG flachdichtend, Länge 110 mm
- Verrohrungsmaterial Edelstahl 1.4401 (DIN EN 10088)
Frischwasserregler:
- Trinkwarmwassertemperatur individuell einstellbar
- Komfortschaltung für Warmhalten und/oder Warmspülen der Heizungsseite
Optionale Einbauten:
- Zirkulationsmodul (Z) mit Zirkulationspumpe
-> Hinweis: Sicherheitseinrichtungen (wie Sicherheitsventil, Membranausdehnungsgefäß und Rückflussverhinderer) müssen zentral geplant werden
- Warmhaltemodul (WH) mit thermischem Ventil (Einstellbereich 20-40 °C)
- Dämmung (D) des Hydraulikmoduls ohne Zirkulation:
Rohrleitung Vorlauf und PWC aus hochflexiblem Schaumstoff auf Basis synthetischen Kautschuks, FEF
- Dämmung (D) des Hydraulikmoduls mit Zirkulation:
Rohrleitung Vorlauf, Plattenwärme-übertrager, PWC und PWH aus hochflexiblem Schaumstoff auf Basis synthetischen Kautschuks, FEF
- Technische Daten:
Heizungsseite:
- max. Betriebstemperatur 75 °C Empfehlung liegt bei 60 °C - zum Schutz des Plattenwärmeübertragers gegen Verkalkung
- max. Prüfdruck 6 bar
- max. Betriebsdruck 4 bar
Trinkwassererwärmung:
- max. Entnahmetemperatur 60 °C
- max. Prüfdruck 15 bar
- max. Betriebsdruck 10 bar
Leistung allgemein:
- 50 °C PWH
- Leistungsstufe L1, thermische Leistung 47,5 kW (Vorlauf 65 °C und Volumenstrom 1300 l/h), bei Entnahmemenge 17 l/min
- Leistungsstufe L2, thermische Leistung 70 kW (Vorlauf 65 °C und Volumenstrom 1300 l/h), bei Entnahmemenge 25 l/min
- Anschluesse:
- alle Primäranschlüsse sind in DN 20 mit 3/4"-Überwurfmuttern ausgeführt.
Artikelspezifikation:
- Leistungsstufe 1
- edelstahlgelöteter Plattenwärmeübertrager
- Warmhaltung
Artikelabmessung: B x H x T: 680 x 590 x 105 mm
Artikelgewicht: 13,7 kg
GTIN: 4061323179466
Warennummer: 84191900
Werksartikelnummer: FH-040010
Warengruppe: WM
URL: https://www.strawa.com/produkt/FH-040010
Marke: strawa
Hersteller: strawa Wärmetechnik GmbH
Telefon: +49 (0) 36256 8661-0
E-Mail: info@strawa.com
Technische Änderungen vorbehalten.
oder gleichwertig
Gewähltes Fabrikat und Typ: ...........................................
….....................................................................................
(vom Bieter auszufüllen)
zur Lieferung und betriebsfertigen Montage
________________________________________
Kostengruppe DIN 276 (2018-12): 422 Wärmeverteilnetze
Leistungsbereich STLB-Bau (2021-04): 041 Wärmeversorgungsanlagen - Leitungen, Armaturen, Heizflächen
strawa Friwara WM-TWE-4L-L1-VA-WH
-GB1,5
- Leistungsstufe 1
- edelstahlgelöteter Plattenwärmeübertrager
- Warmhaltung
Abmessung B x H x T:
680 x 590 x 105 mm
Artikelgewicht: 13,7 kg
Werksartikelnummer: FH-040010
Warennummer: 84191900
Warengruppe: WM
Hersteller: strawa Wärmetechnik GmbH
Telefon: +49 (0) 36256 8661-0
E-Mail: info@strawa.com
Technische Änderungen vorbehalten.
oder gleichwertig