Produktübersicht ausklappen

Produktübersicht

0

Anfrage

weitere Artikel anfragen

Ihre Anfrage

Gern erhalten Sie Informationen zu folgenden Produkten:

Artikel

Sie können vorher alle Produkte nochmal bearbeiten

Artikel

Sie können vorher alle Produkte nochmal bearbeiten

Produktbild

strawa Friwara WM-TWE-4L-L2-CU-Z-D -GB1,5

strawa Friwara WM-TWE-4L-L2-CU-Z-D -GB1,5,BxHxT: 680x590x105 mm, für Trinkwassererwärmung, 4-Leiter mit Flächenheizung, kupfergelöteter PWÜ Leistungstufe 2, Zirkulation, Dämmung, Grundblech 1,5

Artikelnummer: FH-040007

Warengruppe: WM

Listenpreis: 2.286,10 €

Anfragen/Merken

Sie können sich im nächsten Schritt für die ausgewählten Produkte alle Downloaddokumente zusammenstellen die Sie benötigen oder direkt eine Bestellanfrage stellen.

Beschreibung
Artikeldaten
Downloads
Zubehör
Beschreibung
Ausschreibungstext
Langtext

strawa Friwara WM-TWE-4L-L2-CU-Z-D -GB1,5

strawa Friwara WM-TWE-4L-L2-CU-Z-D -GB1,5

      1. Beschreibung:
        Die Hydraulikmodule strawa Friwara WM-TWE-4L sind multifunktionale Einheiten zur zuverlässigen, hygienischen Warmwasserversorgung in Wohngebäuden. Je nach Anforderungen können die Module nach unterschiedlichen Leistungsstufen und Lotmaterial des Plattenwärmeübertragers ausgewählt werden. Zusätzlich können Optionen mit Zirkulation, Warmhaltung oder Dämmung, je nach Kundenanforderungen, ausgewählt werden.
        Trinkwasserversorgung:
        Das Hydraulikmodul strawa Friwara WM-TWE-4L arbeitet im Durchflussprinzip und sorgt für eine stetige, energieeffiziente, komfortable und hygienische Trinkwassererwärmung. Die Erwärmung des Trinkwassers erfolgt ausschließlich bei Bedarf über den Plattenwärmeübertrager aus Edelstahl. Durch die thermische Länge des Plattenwärmeübertragers wird eine rasche Auskühlung und eine niedrige Rücklauftemperatur garantiert. Die Einstellung der gewünschten Warmwassertemperatur erfolgt am Frischwasserregler. Die Regelung der vorgegebenen Warmwassertemperatur erfolgt durch das Zusammenspiel von Volumenstromsensor, Temperaturfühlern und Umschaltventil. Der Heizungsvolumenstrom wird durch die zentrale primärseitige Pumpe bereitgestellt. Der Frischwasserregler gewährleistet auch bei schwankenden Vorlauftemperaturen die exakte Einhaltung der Trinkwarmwassertemperatur. Der primärseitige Versorgerkreis wird über das Umschaltventil nur dann geöffnet, wenn die Station einen Warmwasserbedarf erkennt. Das Umschaltventil kann mit hoher Präzision über den kompletten Ventilhub den Volumenstrom nach Bedarf anpassen. Nach Beendigung des Entnahmevorgangs wird das Umschaltventil sofort geschlossen. Die Möglichkeit zum Einbau von Wärme- und Wasserzählern ist durch Distanzstücke im Heizungsrücklauf und Zulauf PWC der Station gegeben.
        Flächenheizungs bzw. -kühlwasserversorgung über Niedertemperatur Strang:
        Über einen zusätzlichen Primärheiz- bzw. Kühlkreisanschluss in dem Hydraulikmodul WM-TWE-4L wird der Heiz/Kühlkreisverteiler mit Heiz-/Kühlwasser versorgt. Der benötigte Volumenstrom der Flächenheizung/kühlung wird über die im primärseitigen Versorgerkreis verbaute Pumpe realisiert, im Modul ist keine Pumpe verbaut. Die Möglichkeit zum Einbau von Wärme-/Kältezählern ist durch ein Distanzstück im Heizungsrücklauf gegeben.
      2. Aufbau von Kompaktstationen:
        Der Friwara WM Systembaukasten ist modular aufgebaut und ermöglicht die Konfiguration einer vollständigen Station. Für die Trinkwassererwärmung in Kombination mit einer Flächenheizung sind folgende Module erforderlich:
        Bezeichnung WM-Modul - Artikel-Nr.
        • Schrankmodul FS-xxxxxx
        • Anschlussschienenmodul FA-xxxxxx
        • Hydraulikmodul FH-xxxxxx
        • Verteilermodul FV-xxxxxx
        • Vorverdrahtungsmodul (optional) FE-xxxxxx
        • Montageartikel* FM-xxxxxx
        Der Montageartikel definiert den Auslieferungszustand der einzelnen Module - ob diese werkseitig separat verpackt, teilmontiert oder vollständig montiert bereitgestellt werden.
      3. Vorteile:
        • modulare Zusammenstellung von Kompaktstationen
        • Module können werk- oder baustellenseitig montiert werden
        • PWH individuell einstellbar
        • einfache Montage und Wartung
        • konstante Entnahmetemperatur
        • alle Komponenten aus einer Hand bzw. in einer komplexen Station
        • komfortable Möglichkeit zur Kaltwasser- und Wärmezählung im Wohnbaubereich
        • druckgeprüft
      4. Bestandteile:
        Heizungsseite:
        • Plattenwärmeübertrager kupfer- oder edelstahlgelötet
        • Umschaltventil für Trinkwasserbereitung und Flächenheizungsversorgung
        • Wärmezählerpassstück 3/4“ AG flachdichtend, Länge 110 mm - empfohlen wird ein Ultraschall-Wärmemengenzähler (genauere Zählung / geringerer Druckverlust)
        • Fühlereinbaustück direktfühlend Ø 5-5,2 mm M10x1 IG (für Fabrikate Ista Sensonic, Allmess V-Lite, Pollux Com E, Techem delta tech, Minol M, Rossweiner, ABB, Entex, Molliné)
        • Verrohrungsmaterial Edelstahl 1.4301 (DIN EN 10088)
        • Schmutzfänger im Primär-Vorlauf
        • eiterverrohrung:
          • Wärmezählerpassstück 3/4“ AG flachdichtend, Länge 110 mm - empfohlen wird ein Ultraschall-Wärmemengenzähler (genauere Zählung / geringerer Druckverlust)
          • Fühlereinbaustück direktfühlend Ø 5-5,2 mm M10x1 IG (für Fabrikate Ista Sensonic, Allmess V-Lite, Pollux Com E, Techem delta tech, Minol M, Rossweiner, ABB, Entex, Molliné)
          -Verrohrungsmaterial Edelstahl 1.4301 (DIN EN 10088)
          • Entlüftungsventil
          Trinkwasserseite:
          • Plattenwärmeübertrager kupfer- oder edelstahlgelötet
          • Volumenstromsensor
          • Wasserzählerpassstück 3/4“ AG flachdichtend, Länge 110 mm
          • Verrohrungsmaterial Edelstahl 1.4401 (DIN EN 10088)
          Frischwasserregler:
          • Trinkwarmwassertemperatur individuell einstellbar
          • Komfortschaltung für Warmhalten und/oder Warmspülen der Heizungsseite
          Optionale Einbauten:
          • Zirkulationsmodul (Z) mit Zirkulationspumpe
          -> Hinweis: Sicherheitseinrichtungen (wie Sicherheitsventil, Membranausdehnungsgefäß und Rückflussverhinderer) müssen zentral geplant werden
          • Warmhaltemodul (WH) mit thermischem Ventil (Einstellbereich 20-40 °C)
          • Dämmung (D) des Hydraulikmoduls ohne Zirkulation:
          Rohrleitung Vorlauf und PWC aus hochflexiblem Schaumstoff auf Basis synthetischen Kautschuks, FEF
          • Dämmung (D) des Hydraulikmoduls mit Zirkulation:
          Rohrleitung Vorlauf, Plattenwärme-übertrager, PWC und PWH aus hochflexiblem Schaumstoff auf Basis synthetischen Kautschuks, FEF
      5. Technische Daten:
        Heizungsseite:
        • max. Betriebstemperatur 75 °C Empfehlung liegt bei 60 °C - zum Schutz des Plattenwärmeübertragers gegen Verkalkung
        • max. Prüfdruck 6 bar
        • max. Betriebsdruck 4 bar
        Trinkwassererwärmung:
        • max. Entnahmetemperatur 60 °C
        • max. Prüfdruck 15 bar
        • max. Betriebsdruck 10 bar
        Leistung allgemein:
        • 50 °C PWH
        • Leistungsstufe L1, thermische Leistung 47,5 kW (Vorlauf 65 °C und Volumenstrom 1300 l/h), bei Entnahmemenge 17 l/min
        • Leistungsstufe L2, thermische Leistung 70 kW (Vorlauf 65 °C und Volumenstrom 1300 l/h), bei Entnahmemenge 25 l/min
      6. Anschluesse:
        • alle Primäranschlüsse sind in DN 20 mit 3/4"-Überwurfmuttern ausgeführt.

    Artikelspezifikation:
    - Leistungsstufe 2- kupfergelöteter Plattenwärmeübertrager- Zirkulation- Dämmung
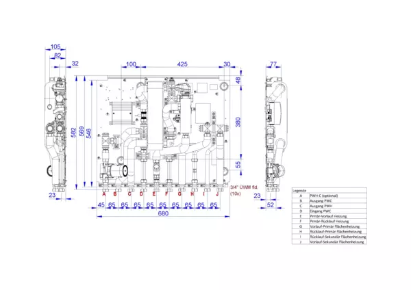
    Artikelabmessung: B x H x T: 680 x 590 x 105 mm
    Artikelgewicht: 15,8 kg

    Marke: strawa
    Hersteller: strawa Wärmetechnik GmbH
    Telefon: +49 (0) 36256 8661-0 
    E-Mail: info@strawa.com
    Technische Änderungen vorbehalten.
    oder gleichwertig

    strawa Friwara WM-TWE-4L-L2-CU-Z-D -GB1,5




        1. Beschreibung:
          Die Hydraulikmodule strawa Friwara WM-TWE-4L sind multifunktionale Einheiten zur zuverlässigen, hygienischen Warmwasserversorgung in Wohngebäuden. Je nach Anforderungen können die Module nach unterschiedlichen Leistungsstufen und Lotmaterial des Plattenwärmeübertragers ausgewählt werden. Zusätzlich können Optionen mit Zirkulation, Warmhaltung oder Dämmung, je nach Kundenanforderungen, ausgewählt werden.
          Trinkwasserversorgung:
          Das Hydraulikmodul strawa Friwara WM-TWE-4L arbeitet im Durchflussprinzip und sorgt für eine stetige, energieeffiziente, komfortable und hygienische Trinkwassererwärmung. Die Erwärmung des Trinkwassers erfolgt ausschließlich bei Bedarf über den Plattenwärmeübertrager aus Edelstahl. Durch die thermische Länge des Plattenwärmeübertragers wird eine rasche Auskühlung und eine niedrige Rücklauftemperatur garantiert. Die Einstellung der gewünschten Warmwassertemperatur erfolgt am Frischwasserregler. Die Regelung der vorgegebenen Warmwassertemperatur erfolgt durch das Zusammenspiel von Volumenstromsensor, Temperaturfühlern und Umschaltventil. Der Heizungsvolumenstrom wird durch die zentrale primärseitige Pumpe bereitgestellt. Der Frischwasserregler gewährleistet auch bei schwankenden Vorlauftemperaturen die exakte Einhaltung der Trinkwarmwassertemperatur. Der primärseitige Versorgerkreis wird über das Umschaltventil nur dann geöffnet, wenn die Station einen Warmwasserbedarf erkennt. Das Umschaltventil kann mit hoher Präzision über den kompletten Ventilhub den Volumenstrom nach Bedarf anpassen. Nach Beendigung des Entnahmevorgangs wird das Umschaltventil sofort geschlossen. Die Möglichkeit zum Einbau von Wärme- und Wasserzählern ist durch Distanzstücke im Heizungsrücklauf und Zulauf PWC der Station gegeben.
          Flächenheizungs bzw. -kühlwasserversorgung über Niedertemperatur Strang:
          Über einen zusätzlichen Primärheiz- bzw. Kühlkreisanschluss in dem Hydraulikmodul WM-TWE-4L wird der Heiz/Kühlkreisverteiler mit Heiz-/Kühlwasser versorgt. Der benötigte Volumenstrom der Flächenheizung/kühlung wird über die im primärseitigen Versorgerkreis verbaute Pumpe realisiert, im Modul ist keine Pumpe verbaut. Die Möglichkeit zum Einbau von Wärme-/Kältezählern ist durch ein Distanzstück im Heizungsrücklauf gegeben.
        2. Aufbau von Kompaktstationen:
          Der Friwara WM Systembaukasten ist modular aufgebaut und ermöglicht die Konfiguration einer vollständigen Station. Für die Trinkwassererwärmung in Kombination mit einer Flächenheizung sind folgende Module erforderlich:
          Bezeichnung WM-Modul - Artikel-Nr.
          • Schrankmodul FS-xxxxxx
          • Anschlussschienenmodul FA-xxxxxx
          • Hydraulikmodul FH-xxxxxx
          • Verteilermodul FV-xxxxxx
          • Vorverdrahtungsmodul (optional) FE-xxxxxx
          • Montageartikel* FM-xxxxxx
          Der Montageartikel definiert den Auslieferungszustand der einzelnen Module - ob diese werkseitig separat verpackt, teilmontiert oder vollständig montiert bereitgestellt werden.
        3. Vorteile:
          • modulare Zusammenstellung von Kompaktstationen
          • Module können werk- oder baustellenseitig montiert werden
          • PWH individuell einstellbar
          • einfache Montage und Wartung
          • konstante Entnahmetemperatur
          • alle Komponenten aus einer Hand bzw. in einer komplexen Station
          • komfortable Möglichkeit zur Kaltwasser- und Wärmezählung im Wohnbaubereich
          • druckgeprüft
        4. Bestandteile:
          Heizungsseite:
          • Plattenwärmeübertrager kupfer- oder edelstahlgelötet
          • Umschaltventil für Trinkwasserbereitung und Flächenheizungsversorgung
          • Wärmezählerpassstück 3/4“ AG flachdichtend, Länge 110 mm - empfohlen wird ein Ultraschall-Wärmemengenzähler (genauere Zählung / geringerer Druckverlust)
          • Fühlereinbaustück direktfühlend Ø 5-5,2 mm M10x1 IG (für Fabrikate Ista Sensonic, Allmess V-Lite, Pollux Com E, Techem delta tech, Minol M, Rossweiner, ABB, Entex, Molliné)
          • Verrohrungsmaterial Edelstahl 1.4301 (DIN EN 10088)
          • Schmutzfänger im Primär-Vorlauf

        5. eiterverrohrung:
          • Wärmezählerpassstück 3/4“ AG flachdichtend, Länge 110 mm - empfohlen wird ein Ultraschall-Wärmemengenzähler (genauere Zählung / geringerer Druckverlust)
          • Fühlereinbaustück direktfühlend Ø 5-5,2 mm M10x1 IG (für Fabrikate Ista Sensonic, Allmess V-Lite, Pollux Com E, Techem delta tech, Minol M, Rossweiner, ABB, Entex, Molliné)
          -Verrohrungsmaterial Edelstahl 1.4301 (DIN EN 10088)
          • Entlüftungsventil
          Trinkwasserseite:
          • Plattenwärmeübertrager kupfer- oder edelstahlgelötet
          • Volumenstromsensor
          • Wasserzählerpassstück 3/4“ AG flachdichtend, Länge 110 mm
          • Verrohrungsmaterial Edelstahl 1.4401 (DIN EN 10088)
          Frischwasserregler:
          • Trinkwarmwassertemperatur individuell einstellbar
          • Komfortschaltung für Warmhalten und/oder Warmspülen der Heizungsseite
          Optionale Einbauten:
          • Zirkulationsmodul (Z) mit Zirkulationspumpe
          -> Hinweis: Sicherheitseinrichtungen (wie Sicherheitsventil, Membranausdehnungsgefäß und Rückflussverhinderer) müssen zentral geplant werden
          • Warmhaltemodul (WH) mit thermischem Ventil (Einstellbereich 20-40 °C)
          • Dämmung (D) des Hydraulikmoduls ohne Zirkulation:
          Rohrleitung Vorlauf und PWC aus hochflexiblem Schaumstoff auf Basis synthetischen Kautschuks, FEF
          • Dämmung (D) des Hydraulikmoduls mit Zirkulation:
          Rohrleitung Vorlauf, Plattenwärme-übertrager, PWC und PWH aus hochflexiblem Schaumstoff auf Basis synthetischen Kautschuks, FEF

      1. Technische Daten:
        Heizungsseite:
        • max. Betriebstemperatur 75 °C Empfehlung liegt bei 60 °C - zum Schutz des Plattenwärmeübertragers gegen Verkalkung
        • max. Prüfdruck 6 bar
        • max. Betriebsdruck 4 bar
        Trinkwassererwärmung:
        • max. Entnahmetemperatur 60 °C
        • max. Prüfdruck 15 bar
        • max. Betriebsdruck 10 bar
        Leistung allgemein:
        • 50 °C PWH
        • Leistungsstufe L1, thermische Leistung 47,5 kW (Vorlauf 65 °C und Volumenstrom 1300 l/h), bei Entnahmemenge 17 l/min
        • Leistungsstufe L2, thermische Leistung 70 kW (Vorlauf 65 °C und Volumenstrom 1300 l/h), bei Entnahmemenge 25 l/min
      2. Anschluesse:
        • alle Primäranschlüsse sind in DN 20 mit 3/4"-Überwurfmuttern ausgeführt.



    Artikelspezifikation:
    - Leistungsstufe 2
    - kupfergelöteter Plattenwärmeübertrager
    - Zirkulation
    - Dämmung
    Artikelabmessung: B x H x T: 680 x 590 x 105 mm
    Artikelgewicht: 15,8 kg

    GTIN: 4061323175017
    Warennummer: 84195080
    Werksartikelnummer: FH-040007
    Warengruppe: WM
    URL: https://www.strawa.com/produkt/FH-040007

    Marke: strawa

    Hersteller: strawa Wärmetechnik GmbH
    Telefon: +49 (0) 36256 8661-0
    E-Mail: info@strawa.com
    Technische Änderungen vorbehalten.
    oder gleichwertig

    Gewähltes Fabrikat und Typ: ...........................................
    ….....................................................................................
    (vom Bieter auszufüllen)

    zur Lieferung und betriebsfertigen Montage
    ________________________________________
    Kostengruppe DIN 276 (2018-12): 422 Wärmeverteilnetze

    Leistungsbereich STLB-Bau (2021-04): 041 Wärmeversorgungsanlagen - Leitungen, Armaturen, Heizflächen

    Ausschreibungstexte

    strawa Friwara WM-TWE-4L-L2-CU-Z-D
    -GB1,5
    - Leistungsstufe 2
    - kupfergelöteter Plattenwärmeübertrager
    - Zirkulation
    - Dämmung
    Abmessung B x H x T:
    680 x 590 x 105 mm
    Artikelgewicht: 15,8 kg
    Werksartikelnummer: FH-040007
    Warennummer: 84195080
    Warengruppe: WM

    Hersteller: strawa Wärmetechnik GmbH
    Telefon: +49 (0) 36256 8661-0
    E-Mail: info@strawa.com
    Technische Änderungen vorbehalten.
    oder gleichwertig

    Produkteigenschaften

    Stammdaten

    EinheitPCE

    GTIN4061323175017

    Listenpreis2.286,10 €

    Mindesbestellmenge1

    ArtikeltypStandard

    HerkunftslandDeutschland

    Zolltarifnummer84195080

    Standardversand (Tage)6

    Elektrische BestandteileJa

    BatterieNein

    Artikelabmessungen

    Breite (mm)680

    Höhe (mm)590

    Tiefe (mm)105

    Gewicht (kg)15,8

    Verpackungsabmessungen

    Breite (mm)605

    Höhe (mm)145

    Tiefe (mm)714

    Gewicht (kg)16,9

    Passendes Zubehör

    Sie benötigen Informationen?

    Unser Team berät Sie kompetent zu unseren Produkten oder hilft Ihnen bei Auslegungen und Bestellungen. Vereinbaren Sie hier einen Rückruf.

    Kontakt