Produktübersicht ausklappen

Produktübersicht

0

Anfrage

weitere Artikel anfragen

Ihre Anfrage

Gern erhalten Sie Informationen zu folgenden Produkten:

Artikel

Sie können vorher alle Produkte nochmal bearbeiten

Artikel

Sie können vorher alle Produkte nochmal bearbeiten

Produktbild

strawa Friwara WM-TWE-FBR-HT-L1-VA-WH-D -GB1,5

strawa Friwara WM-TWE-FBR-HT-L1-VA-WH-D -GB1,5,BxHxT: 680x590x105 mm, für Trinkwassererwärmung, Festwertregelung für Flächenheizung, HT-Abgang, edelstahlgelöteter PWÜ Leistungstufe 1, Warmhaltung, Dämmung, Grundblech 1,5

Artikelnummer: FH-030018

Warengruppe: WM

Listenpreis: 2.551,30 €

Anfragen/Merken

Sie können sich im nächsten Schritt für die ausgewählten Produkte alle Downloaddokumente zusammenstellen die Sie benötigen oder direkt eine Bestellanfrage stellen.

Beschreibung
Artikeldaten
Downloads
Zubehör
Beschreibung
Ausschreibungstext
Langtext

strawa Friwara WM-TWE-FBR-HT-L1-VA-WH-D -GB1,5

strawa Friwara WM-TWE-FBR-HT-L1-VA-WH-D -GB1,5

      1. Beschreibung:
        Die Hydraulikmodule strawa Friwara WM-TWE-FBR-HT(-RTB) sind multifunktionale Einheiten zur zuverlässigen, hygienischen Warmwasserversorgung in Wohngebäuden. Es können Flächenheizungen über eine Festwertregelung der Vorlauftemperatur mit Wärme versorgt und geregelt werden. Zusätzlich können statischen Heizflächen, wie z.B. Heizkörper, mit Wärme versorgt werden. Wahlweise kann über den zusätzlichen Heizungsabgang ebenso eine Zweitbad-Wärmeversorgung realisiert werden. Über ein RTB kann die gewünschte Rücklauf-Temperatur sichergestellt werden - dies empfiehlt sich, wenn kein Zweitbad eingebunden werden soll. Über den HT-Abgang kann bei Bedarf eine vollwertige Wohnungsstation mit eingebunden werden, somit kann bspw. ein Zweitbad oder Küche ohne Zirkulation betrieben werden. Je nach Anforderungen können die Module nach unterschiedlichen Leistungsstufen und Lotmaterial des Plattenwärmeübertragers ausgewählt werden. Zusätzlich können Optionen mit Zirkulation, Warmhaltung oder Dämmung, je nach Kundenanforderungen, ausgewählt werden.
        Trinkwasserversorgung:
        Das Hydraulikmodul strawa Friwara WM-TWE-FBR-HT(-RTB) arbeitet im Durchflussprinzip und sorgt für eine stetige, energieeffiziente, komfortable und hygienische Trinkwassererwärmung. Die Erwärmung des Trinkwassers erfolgt ausschließlich bei Bedarf über den Plattenwärmeübertrager aus Edelstahl. Durch die thermische Länge des Plattenwärmeübertragers wird eine rasche Auskühlung und eine niedrige Rücklauftemperatur garantiert. Die Einstellung der gewünschten Warmwassertemperatur erfolgt am Frischwasserregler. Die Regelung der vorgegebenen Warmwassertemperatur erfolgt durch das Zusammenspiel von Volumenstromsensor, Temperaturfühlern und Umschaltventil. Der Heizungsvolumenstrom wird durch die zentrale primärseitige Pumpe bereitgestellt. Der Frischwasserregler gewährleistet auch bei schwankenden Vorlauftemperaturen die exakte Einhaltung der Trinkwarmwassertemperatur. Der primärseitige Versorgerkreis wird über das Umschaltventil nur dann geöffnet, wenn die Station einen Warmwasserbedarf erkennt. Das Umschaltventil kann mit hoher Präzision über den kompletten Ventilhub den Volumenstrom nach Bedarf anpassen. Nach Beendigung des Entnahmevorgangs wird das Umschaltventil sofort geschlossen.
        Die Möglichkeit zum Einbau von Wärme- und Wasserzählern ist durch Distanzstücke im Heizungsrücklauf und Zulauf PWC der Station gegeben.
        Flächenheizungsversorgung:
        Das Hydraulikmodul strawa Friwara WM-TWE-FBR-HT(-RTB) verfügt über ein Festwertregelset, welches die Vorlauftemperatur der Flächenheizung im Bereich von 20-50 °C regelt. Dies stellt sicher, dass die gewünschte Temperatur erreicht wird. Eine verbaute Pumpe liefert den benötigten Volumenstrom für die Flächenheizung. Hydraulisch kann der Flächenheizungsstrang über ein integriertes Regulierventil zum Primärstrang abgeglichen werden, um eine gleichmäßige Wärmeverteilung zu gewährleisten. Ein Sicherheitstemperaturbegrenzer schützt die Flächenheizung vor Überhitzung. Das integrierte Rückschlagventil verhindert unerwünschte Fehlzirkulationen im System.
      2. Aufbau von Kompaktstationen:
        Der Friwara WM Systembaukasten ist modular aufgebaut und ermöglicht die Konfiguration einer vollständigen Station. Für die Trinkwassererwärmung in Kombination mit einer Flächenheizung sind folgende Module erforderlich:
        Bezeichnung WM-Modul - Artikel-Nr.
        • Schrankmodul FS-xxxxxx
        • Anschlussschienenmodul FA-xxxxxx
        • Hydraulikmodul FH-xxxxxx
        • Verteilermodul FV-xxxxxx
        • Vorverdrahtungsmodul (optional) FE-xxxxxx
        • Montageartikel* FM-xxxxxx
        Der Montageartikel definiert den Auslieferungszustand der einzelnen Module - ob diese werkseitig separat verpackt, teilmontiert oder vollständig montiert bereitgestellt werden.
      3. Vorteile:
        • modulare Zusammenstellung von Kompaktstationen
        • zusätzlicher Heizungsabgang für Festwertregelung der Vorlauftemperatur und Pumpe
        • zusätzlicher Hochtemperaturabgang für statische Heizflächen oder Zweitbad-Warmwasserversorgung
        • Module können werk- oder baustellenseitig montiert werden
        • PWH individuell einstellbar
        • einfache Montage und Wartung
        • konstante Entnahmetemperatur
        • alle Komponenten aus einer Hand bzw. in einer komplexen Station
        • komfortable Möglichkeit zur Kaltwasser- und Wärmezählung im Wohnbaubereich
        • druckgeprüft
      4. Bestandteile:
        Heizungsseite:
        • Plattenwärmeübertrager kupfer- oder edelstahlgelötet
        • Umschaltventil für Trinkwasserbereitung und Flächenheizungsversorgung
        • Wärmezählerpassstück 3/4“ AG flachdichtend, Länge 110 mm - empfohlen wird ein Ultraschall-Wärmemengenzähler (genauere Zählung / geringerer Druckverlust)
        • Fühlereinbaustück direktfühlend Ø 5-5,2 mm M10x1 IG (für Fabrikate Ista Sensonic, Allmess V-Lite, Pollux Com E, Techem delta tech, Minol M, Rossweiner, ABB, Entex, Molliné)
        • Verrohrungsmaterial Edelstahl 1.4301 (DIN EN 10088)
        • Schmutzfänger im Primär-Vorlauf
        • zusätzlicher Hochtemperaturabgang
        Trinkwasserseite:
        • Plattenwärmeübertrager kupfer- oder edelstahlgelötet
        • Volumenstromsensor
        • Wasserzählerpassstück 3/4“ AG flachdichtend, Länge 110 mm
        • Verrohrungsmaterial Edelstahl 1.4401 (DIN EN 10088)
        Frischwasserregler:
        • Trinkwarmwassertemperatur individuell einstellbar
        • Komfortschaltung für Warmhalten und/oder Warmspülen der Heizungsseite
        FBR-Regelgruppe:
        • Vorlauftemperatur über Thermostatkopf einstellbar von 20-50 °C
        • mit geregelter Hocheffizienzpumpe
        • integriertes Regulierventil am Primärrücklauf für hydraulischen Abgleich
        • integriertes Rückschlagventil
        • Sicherheitstemperaturbegrenzer
        Optionale Einbauten:
        • Zirkulationsmodul (Z) mit Zirkulationspumpe
        Hinweis -> Sicherheitseinrichtungen (wie Sicherheitsventil, Membranausdehnungsgefäß und Rückflussverhinderer) müssen zentral geplant werden
        • Warmhaltemodul (WH) mit thermischem Ventil (Einstellbereich 20-40 °C)
        • Rücklauftemperaturbegrenzer im Rücklauf-Hochtemperaturabgang
        • Dämmung (D) des Hydraulikmoduls ohne Zirkulation:
        Rohrleitung Vorlauf und PWC aus hochflexiblem Schaumstoff auf Basis synthetischen Kautschuks, FEF
        • Dämmung (D) des Hydraulikmoduls mit Zirkulation:
        Rohrleitung Vorlauf, Plattenwärme-übertrager, PWC und PWH aus hochflexiblem Schaumstoff auf Basis synthetischen Kautschuks, FEF
      5. Technische Daten:
        Heizungsseite:
        • max. Betriebstemperatur 75 °C
        • Empfehlung liegt bei 60 °C - zum Schutz des Plattenwärmeübertragers gegen Verkalkung
        • max. Prüfdruck 6 bar
        • max. Betriebsdruck 4 bar (nur bei Einsatz von Friwara Verteilermodul VT-63 und VT-18)
        Trinkwassererwärmung:
        • max. Entnahmetemperatur 60 °C
        • max. Prüfdruck 15 bar
        • max. Betriebsdruck 10 bar
        Flächenheizung:
        • Einstellbereich Vorlauftemperatur 20 bis 50 °C
        • max. Prüfdruck 6 bar
        • max. Betriebsdruck 4 bar
        • max. Volumenstrom 1500 l/h
        Leistung allgemein:
        • 50 °C PWH
        • Leistungsstufe L1, thermische Leistung 47,5 kW (Vorlauf 65 °C und Volumenstrom 1300 l/h), bei Entnahmemenge 17 l/min
        • Leistungsstufe L2, thermische Leistung 70 kW (Vorlauf 65 °C und Volumenstrom 1300 l/h), bei Entnahmemenge 25 l/min
      6. Anschlüsse:
        • alle Primäranschlüsse sind in DN 20 mit 3/4"-Überwurfmuttern ausgeführt.

Artikelspezifikation:
- Leistungsstufe 1- edelstahlgelöteter Plattenwärmeübertrager- Warmhaltung- Dämmung
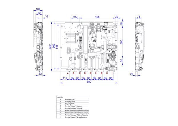
Artikelabmessung: B x H x T: 680 x 590 x 105 mm
Artikelgewicht: 16,5 kg

Marke: strawa
Hersteller: strawa Wärmetechnik GmbH
Telefon: +49 (0) 36256 8661-0 
E-Mail: info@strawa.com
Technische Änderungen vorbehalten.

strawa Friwara WM-TWE-FBR-HT-L1-VA-WH-D -GB1,5




      1. Beschreibung:
        Die Hydraulikmodule strawa Friwara WM-TWE-FBR-HT(-RTB) sind multifunktionale Einheiten zur zuverlässigen, hygienischen Warmwasserversorgung in Wohngebäuden. Es können Flächenheizungen über eine Festwertregelung der Vorlauftemperatur mit Wärme versorgt und geregelt werden. Zusätzlich können statischen Heizflächen, wie z.B. Heizkörper, mit Wärme versorgt werden. Wahlweise kann über den zusätzlichen Heizungsabgang ebenso eine Zweitbad-Wärmeversorgung realisiert werden. Über ein RTB kann die gewünschte Rücklauf-Temperatur sichergestellt werden - dies empfiehlt sich, wenn kein Zweitbad eingebunden werden soll. Über den HT-Abgang kann bei Bedarf eine vollwertige Wohnungsstation mit eingebunden werden, somit kann bspw. ein Zweitbad oder Küche ohne Zirkulation betrieben werden. Je nach Anforderungen können die Module nach unterschiedlichen Leistungsstufen und Lotmaterial des Plattenwärmeübertragers ausgewählt werden. Zusätzlich können Optionen mit Zirkulation, Warmhaltung oder Dämmung, je nach Kundenanforderungen, ausgewählt werden.
        Trinkwasserversorgung:
        Das Hydraulikmodul strawa Friwara WM-TWE-FBR-HT(-RTB) arbeitet im Durchflussprinzip und sorgt für eine stetige, energieeffiziente, komfortable und hygienische Trinkwassererwärmung. Die Erwärmung des Trinkwassers erfolgt ausschließlich bei Bedarf über den Plattenwärmeübertrager aus Edelstahl. Durch die thermische Länge des Plattenwärmeübertragers wird eine rasche Auskühlung und eine niedrige Rücklauftemperatur garantiert. Die Einstellung der gewünschten Warmwassertemperatur erfolgt am Frischwasserregler. Die Regelung der vorgegebenen Warmwassertemperatur erfolgt durch das Zusammenspiel von Volumenstromsensor, Temperaturfühlern und Umschaltventil. Der Heizungsvolumenstrom wird durch die zentrale primärseitige Pumpe bereitgestellt. Der Frischwasserregler gewährleistet auch bei schwankenden Vorlauftemperaturen die exakte Einhaltung der Trinkwarmwassertemperatur. Der primärseitige Versorgerkreis wird über das Umschaltventil nur dann geöffnet, wenn die Station einen Warmwasserbedarf erkennt. Das Umschaltventil kann mit hoher Präzision über den kompletten Ventilhub den Volumenstrom nach Bedarf anpassen. Nach Beendigung des Entnahmevorgangs wird das Umschaltventil sofort geschlossen.
        Die Möglichkeit zum Einbau von Wärme- und Wasserzählern ist durch Distanzstücke im Heizungsrücklauf und Zulauf PWC der Station gegeben.
        Flächenheizungsversorgung:
        Das Hydraulikmodul strawa Friwara WM-TWE-FBR-HT(-RTB) verfügt über ein Festwertregelset, welches die Vorlauftemperatur der Flächenheizung im Bereich von 20-50 °C regelt. Dies stellt sicher, dass die gewünschte Temperatur erreicht wird. Eine verbaute Pumpe liefert den benötigten Volumenstrom für die Flächenheizung. Hydraulisch kann der Flächenheizungsstrang über ein integriertes Regulierventil zum Primärstrang abgeglichen werden, um eine gleichmäßige Wärmeverteilung zu gewährleisten. Ein Sicherheitstemperaturbegrenzer schützt die Flächenheizung vor Überhitzung. Das integrierte Rückschlagventil verhindert unerwünschte Fehlzirkulationen im System.
      2. Aufbau von Kompaktstationen:
        Der Friwara WM Systembaukasten ist modular aufgebaut und ermöglicht die Konfiguration einer vollständigen Station. Für die Trinkwassererwärmung in Kombination mit einer Flächenheizung sind folgende Module erforderlich:
        Bezeichnung WM-Modul - Artikel-Nr.
        • Schrankmodul FS-xxxxxx
        • Anschlussschienenmodul FA-xxxxxx
        • Hydraulikmodul FH-xxxxxx
        • Verteilermodul FV-xxxxxx
        • Vorverdrahtungsmodul (optional) FE-xxxxxx
        • Montageartikel* FM-xxxxxx
        Der Montageartikel definiert den Auslieferungszustand der einzelnen Module - ob diese werkseitig separat verpackt, teilmontiert oder vollständig montiert bereitgestellt werden.
      3. Vorteile:
        • modulare Zusammenstellung von Kompaktstationen
        • zusätzlicher Heizungsabgang für Festwertregelung der Vorlauftemperatur und Pumpe
        • zusätzlicher Hochtemperaturabgang für statische Heizflächen oder Zweitbad-Warmwasserversorgung
        • Module können werk- oder baustellenseitig montiert werden
        • PWH individuell einstellbar
        • einfache Montage und Wartung
        • konstante Entnahmetemperatur
        • alle Komponenten aus einer Hand bzw. in einer komplexen Station
        • komfortable Möglichkeit zur Kaltwasser- und Wärmezählung im Wohnbaubereich
        • druckgeprüft
      4. Bestandteile:
        Heizungsseite:
        • Plattenwärmeübertrager kupfer- oder edelstahlgelötet
        • Umschaltventil für Trinkwasserbereitung und Flächenheizungsversorgung
        • Wärmezählerpassstück 3/4“ AG flachdichtend, Länge 110 mm - empfohlen wird ein Ultraschall-Wärmemengenzähler (genauere Zählung / geringerer Druckverlust)
        • Fühlereinbaustück direktfühlend Ø 5-5,2 mm M10x1 IG (für Fabrikate Ista Sensonic, Allmess V-Lite, Pollux Com E, Techem delta tech, Minol M, Rossweiner, ABB, Entex, Molliné)
        • Verrohrungsmaterial Edelstahl 1.4301 (DIN EN 10088)
        • Schmutzfänger im Primär-Vorlauf
        • zusätzlicher Hochtemperaturabgang
        Trinkwasserseite:
        • Plattenwärmeübertrager kupfer- oder edelstahlgelötet
        • Volumenstromsensor
        • Wasserzählerpassstück 3/4“ AG flachdichtend, Länge 110 mm
        • Verrohrungsmaterial Edelstahl 1.4401 (DIN EN 10088)
        Frischwasserregler:
        • Trinkwarmwassertemperatur individuell einstellbar
        • Komfortschaltung für Warmhalten und/oder Warmspülen der Heizungsseite
        FBR-Regelgruppe:
        • Vorlauftemperatur über Thermostatkopf einstellbar von 20-50 °C
        • mit geregelter Hocheffizienzpumpe
        • integriertes Regulierventil am Primärrücklauf für hydraulischen Abgleich
        • integriertes Rückschlagventil
        • Sicherheitstemperaturbegrenzer
        Optionale Einbauten:
        • Zirkulationsmodul (Z) mit Zirkulationspumpe
        Hinweis -> Sicherheitseinrichtungen (wie Sicherheitsventil, Membranausdehnungsgefäß und Rückflussverhinderer) müssen zentral geplant werden
        • Warmhaltemodul (WH) mit thermischem Ventil (Einstellbereich 20-40 °C)
        • Rücklauftemperaturbegrenzer im Rücklauf-Hochtemperaturabgang
        • Dämmung (D) des Hydraulikmoduls ohne Zirkulation:
        Rohrleitung Vorlauf und PWC aus hochflexiblem Schaumstoff auf Basis synthetischen Kautschuks, FEF
        • Dämmung (D) des Hydraulikmoduls mit Zirkulation:
        Rohrleitung Vorlauf, Plattenwärme-übertrager, PWC und PWH aus hochflexiblem Schaumstoff auf Basis synthetischen Kautschuks, FEF
      5. Technische Daten:
        Heizungsseite:
        • max. Betriebstemperatur 75 °C
        • Empfehlung liegt bei 60 °C - zum Schutz des Plattenwärmeübertragers gegen Verkalkung
        • max. Prüfdruck 6 bar
        • max. Betriebsdruck 4 bar (nur bei Einsatz von Friwara Verteilermodul VT-63 und VT-18)
        Trinkwassererwärmung:
        • max. Entnahmetemperatur 60 °C
        • max. Prüfdruck 15 bar
        • max. Betriebsdruck 10 bar
        Flächenheizung:
        • Einstellbereich Vorlauftemperatur 20 bis 50 °C
        • max. Prüfdruck 6 bar
        • max. Betriebsdruck 4 bar
        • max. Volumenstrom 1500 l/h
        Leistung allgemein:
        • 50 °C PWH
        • Leistungsstufe L1, thermische Leistung 47,5 kW (Vorlauf 65 °C und Volumenstrom 1300 l/h), bei Entnahmemenge 17 l/min
        • Leistungsstufe L2, thermische Leistung 70 kW (Vorlauf 65 °C und Volumenstrom 1300 l/h), bei Entnahmemenge 25 l/min
      6. Anschlüsse:
        • alle Primäranschlüsse sind in DN 20 mit 3/4"-Überwurfmuttern ausgeführt.



Artikelspezifikation:
- Leistungsstufe 1
- edelstahlgelöteter Plattenwärmeübertrager
- Warmhaltung
- Dämmung
Artikelabmessung: B x H x T: 680 x 590 x 105 mm
Artikelgewicht: 16,5 kg

GTIN: 4061323182893
Warennummer: 84195080
Werksartikelnummer: FH-030018
Warengruppe: WM
URL: https://www.strawa.com/produkt/FH-030018

Marke: strawa

Hersteller: strawa Wärmetechnik GmbH
Telefon: +49 (0) 36256 8661-0
E-Mail: info@strawa.com
Technische Änderungen vorbehalten.
oder gleichwertig

Gewähltes Fabrikat und Typ: ...........................................
….....................................................................................
(vom Bieter auszufüllen)

zur Lieferung und betriebsfertigen Montage
________________________________________
Kostengruppe DIN 276 (2018-12): 422 Wärmeverteilnetze

Leistungsbereich STLB-Bau (2021-04): 041 Wärmeversorgungsanlagen - Leitungen, Armaturen, Heizflächen

Ausschreibungstexte

strawa Friwara WM-TWE-FBR-HT-L1-VA-WH-D
-GB1,5
- Leistungsstufe 1
- edelstahlgelöteter Plattenwärmeübertrager
- Warmhaltung
- Dämmung
Abmessung B x H x T:
680 x 590 x 105 mm
Artikelgewicht: 16,5 kg
Werksartikelnummer: FH-030018
Warennummer: 84195080
Warengruppe: WM

Hersteller: strawa Wärmetechnik GmbH
Telefon: +49 (0) 36256 8661-0
E-Mail: info@strawa.com
Technische Änderungen vorbehalten.
oder gleichwertig

Produkteigenschaften

Stammdaten

EinheitPCE

GTIN4061323182893

Listenpreis2.551,30 €

Mindesbestellmenge1

ArtikeltypStandard

HerkunftslandDeutschland

Zolltarifnummer84195080

Standardversand (Tage)6

Elektrische BestandteileJa

BatterieNein

Artikelabmessungen

Breite (mm)680

Höhe (mm)590

Tiefe (mm)105

Gewicht (kg)16,5

Verpackungsabmessungen

Breite (mm)605

Höhe (mm)145

Tiefe (mm)714

Gewicht (kg)17,6

Passendes Zubehör

Sie benötigen Informationen?

Unser Team berät Sie kompetent zu unseren Produkten oder hilft Ihnen bei Auslegungen und Bestellungen. Vereinbaren Sie hier einen Rückruf.

Kontakt