Produktübersicht ausklappen

Produktübersicht

0

Anfrage

weitere Artikel anfragen

Ihre Anfrage

Gern erhalten Sie Informationen zu folgenden Produkten:

Artikel

Sie können vorher alle Produkte nochmal bearbeiten

Artikel

Sie können vorher alle Produkte nochmal bearbeiten

Produktbild

strawa Unterputz-Schrank 80 / 1,0 RAL 9016

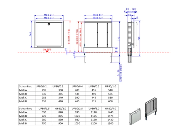
strawa Unterputz-Schrank 80 / 1,0 RAL 9016,BxHxT: 600x725x92 mm, Frontblende tiefenverstellbar 80-120 mm, Schrank höhenverstellbar von 710-840 mm

Artikelnummer: 60-088010

Warengruppe: 60

Listenpreis: 217,30 €

Anfragen/Merken

Sie können sich im nächsten Schritt für die ausgewählten Produkte alle Downloaddokumente zusammenstellen die Sie benötigen oder direkt eine Bestellanfrage stellen.

Beschreibung
Artikeldaten
Downloads
Zubehör
Beschreibung
Ausschreibungstext
Langtext

strawa Unterputz-Schrank 80 / 1,0 RAL 9016

strawa Unterputz-Schrank 80 / 1,0 RAL 9016

      1. Beschreibung:
        Variabler und montagefreundlicher Unterputz-Schrank für die fachgerechte und schnelle Montage von Flächenheizungs-, Flächenkühlungs- und Sanitärsystemverteilern und deren Zubehör in Trockenbau- oder Massivwänden.
      2. Bestandteile:
        1. Einbauzarge:
          • verzinktes Stahlblech, Blechstärke 1 mm
          • Bautiefe: 80 mm
          • seitlich universell vorgestanzte Rohrführungsbleche für den optimalen Verteileranschluss
          • zwei verstellbare Montageschienen an der Rückwand zur flexiblen Verteilerbefestigung
          • abnehmbare Rohrumlenkschiene zur einfachen Montage der Anschlussrohre
          • höhenverstellbare Schrankfüße für Fußbodenaufbau minimal 84 mm und maximal 214 mm
          • Markierung Oberkante Fertigfußboden (OK FFB)
        2. Frontblende:
          • verzinktes Stahlblech, Blechstärke 1 mm
          • pulverbeschichtet in weiß RAL 9016
          • verstellbarer (max. 40 mm) Frontrahmen mit Stecktür
          • versenkter, weißer Drehriegel in Stecktür
          • optional für Funkanwendungen auch mit Kunststofffrontblende in weiß ähnlich RAL 9016 lieferbar
        3. Estrichprallblech:
          • verzinktes Stahlblech, Blechstärke 1 mm
          • pulverbeschichtet in weiß RAL 9016
          • abnehmbar und verstellbar (max. 40 mm) Estrichprallblech
      3. Technische Daten:
        • verzinktes Stahlblech, Blechstärke 1 mm
        • Frontblende und Estrichprallblech pulverbeschichtet in weiß RAL 9016
        • Bauhöhe: 710–840 mm
        • Einbautiefe: 80–120 mm
        • Nischeneinbauhöhe: 650 mm von OK FFB
        • Nischeneinbaubreite: Breite + 20 mm
        • Nischeneinbautiefe: 90–130 mm

Artikelspezifikation:
Schrankgröße 1,0
Artikelabmessung: B x H x T: 600 x 725 x 92 mm
Artikelgewicht: 10,28 kg

Marke: strawa
Hersteller: strawa Wärmetechnik GmbH
Telefon: +49 (0) 36256 8661-0 
E-Mail: info@strawa.com
Technische Änderungen vorbehalten.
oder gleichwertig

strawa Unterputz-Schrank 80 / 1,0 RAL 9016




      1. Beschreibung:
        Variabler und montagefreundlicher Unterputz-Schrank für die fachgerechte und schnelle Montage von Flächenheizungs-, Flächenkühlungs- und Sanitärsystemverteilern und deren Zubehör in Trockenbau- oder Massivwänden.
      2. Bestandteile:

        1. Einbauzarge:
          • verzinktes Stahlblech, Blechstärke 1 mm
          • Bautiefe: 80 mm
          • seitlich universell vorgestanzte Rohrführungsbleche für den optimalen Verteileranschluss
          • zwei verstellbare Montageschienen an der Rückwand zur flexiblen Verteilerbefestigung
          • abnehmbare Rohrumlenkschiene zur einfachen Montage der Anschlussrohre
          • höhenverstellbare Schrankfüße für Fußbodenaufbau minimal 84 mm und maximal 214 mm
          • Markierung Oberkante Fertigfußboden (OK FFB)
        2. Frontblende:
          • verzinktes Stahlblech, Blechstärke 1 mm
          • pulverbeschichtet in weiß RAL 9016
          • verstellbarer (max. 40 mm) Frontrahmen mit Stecktür
          • versenkter, weißer Drehriegel in Stecktür
          • optional für Funkanwendungen auch mit Kunststofffrontblende in weiß ähnlich RAL 9016 lieferbar
        3. Estrichprallblech:
          • verzinktes Stahlblech, Blechstärke 1 mm
          • pulverbeschichtet in weiß RAL 9016
          • abnehmbar und verstellbar (max. 40 mm) Estrichprallblech
      3. Technische Daten:
        • verzinktes Stahlblech, Blechstärke 1 mm
        • Frontblende und Estrichprallblech pulverbeschichtet in weiß RAL 9016
        • Bauhöhe: 710–840 mm
        • Einbautiefe: 80–120 mm
        • Nischeneinbauhöhe: 650 mm von OK FFB
        • Nischeneinbaubreite: Breite + 20 mm
        • Nischeneinbautiefe: 90–130 mm



Artikelspezifikation:
Schrankgröße 1,0
Artikelabmessung: B x H x T: 600 x 725 x 92 mm
Artikelgewicht: 10,28 kg

GTIN: 4061323089352
Warennummer: 73269098
Werksartikelnummer: 60-088010
Warengruppe: 60
URL: https://www.strawa.com/produkt/60-088010

Marke: strawa

Hersteller: strawa Wärmetechnik GmbH
Telefon: +49 (0) 36256 8661-0
E-Mail: info@strawa.com
Technische Änderungen vorbehalten.
oder gleichwertig

Gewähltes Fabrikat und Typ: ...........................................
….....................................................................................
(vom Bieter auszufüllen)

zur Lieferung und betriebsfertigen Montage
________________________________________
Kostengruppe DIN 276 (2018-12): 422 Wärmeverteilnetze

Leistungsbereich STLB-Bau (2021-04): 041 Wärmeversorgungsanlagen - Leitungen, Armaturen, Heizflächen

Ausschreibungstexte

strawa Unterputz-Schrank 80
/ 1,0 RAL 9016

Frontblende tiefenverstellbar 80-120 mm, Schrank höhenverstellbar von 710-840 mm

Schrankgröße 1,0
Abmessung B x H x T:
600 x 725 x 92 mm
Artikelgewicht: 10,28 kg
Werksartikelnummer: 60-088010
Warennummer: 73269098
Warengruppe: 60

Hersteller: strawa Wärmetechnik GmbH
Telefon: +49 (0) 36256 8661-0
E-Mail: info@strawa.com
Technische Änderungen vorbehalten.
oder gleichwertig

Logistische Daten
ETIM / Technische Daten

Produkteigenschaften

Stammdaten

EinheitPCE

GTIN4061323089352

Listenpreis217,30 €

Mindesbestellmenge1

ArtikeltypStandard

HerkunftslandDeutschland

Zolltarifnummer73269098

Standardversand (Tage)3

Elektrische BestandteileNein

BatterieNein

Artikelabmessungen

Breite (mm)575

Höhe (mm)710

Tiefe (mm)80

Gewicht (kg)10,28

Verpackungsabmessungen

Breite (mm)770

Höhe (mm)135

Tiefe (mm)610

Gewicht (kg)11,28

Merkmale

Klassifizierung ETIM 9

Werkstoff Stahl

Werkstoffgüte sonstige

Ausführung der Oberfläche pulverbeschichtet

Farbe weiß

RAL-Nummer 9016

Breite 575 mm

Höhenverstellbar ja

Höhe 710 - 840 mm

Tiefe 80 mm

Mit Tür ja

Anzahl der Türen 1

Mit Aussparungen für Leitungen ja

Mit Innenisolierung nein

Geeignet für Bodenbefestigung ja

Geeignet für Wandmontage ja

Geeignet für Wandeinbau ja

Mit Montageplatte nein

Mit Füßen ja

Länge der Beine 0 - 130 - 0 - 130 mm

Sie benötigen Informationen?

Unser Team berät Sie kompetent zu unseren Produkten oder hilft Ihnen bei Auslegungen und Bestellungen. Vereinbaren Sie hier einen Rückruf.

Kontakt