Ihre Anfrage
Gern erhalten Sie Informationen zu folgenden Produkten:
Artikel
Sie können vorher alle Produkte nochmal bearbeiten
Anfrage
Gern erhalten Sie Informationen zu folgenden Produkten:
Sie können vorher alle Produkte nochmal bearbeiten
Sie können vorher alle Produkte nochmal bearbeiten
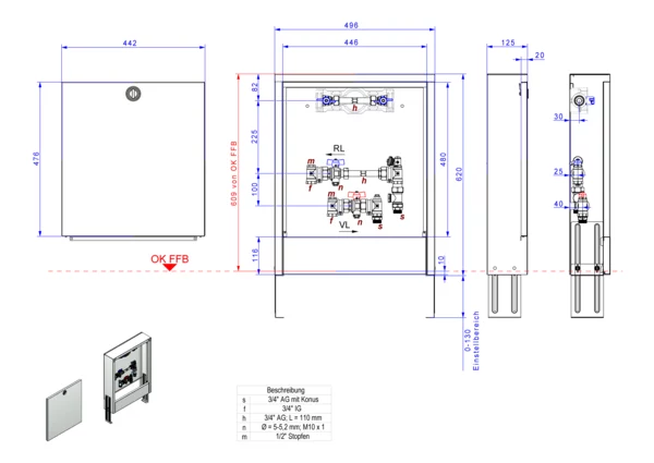
strawa Anschlussstation AS 16-W1-WMZ-AP,BxHxT: 496x620x125 mm, 1 Wohnungsanschluss, verti. AG m. WMZ, mit Regulierventil, mit Wasserzählerverrohrung Trinkwasser kalt, Standard-AP-Schrank in RAL 9016
Artikelnummer: 56+651611
Warengruppe: 56
Listenpreis: 495,30 €
strawa Anschlussstation AS 16-W1-WMZ-AP
vertikaler Primäranschluss mit WMZ
/produktgruppe/vertikaler-primaeranschluss-mit-wmz-12
56+651611
Die Anschlussstation ist für Wohnungsanschlüsse geeignet. Sie dient zum Absperren und zur Wärmezählung des Wohnungsstranges. Im Standard-Aufputzschrank komplett in weiß RAL 9016 mit einer Bautiefe von 125 mm ist eine Edelstahlverrohrung mit einer vertikalen Anschlussgarnitur mit Wärmezählervorbereitung 3/4" Länge 110 mm und Fühleranschluss 5-5,2 M10x1 im Vor- und Rücklaufkugelhahn und Regulierventil im Rücklauf ist schallentkoppelt montiert. Die Sekundärabgänge sind ebenfalls vertikal ausgerichtet. In der Anschlussstation ist zusätzlich eine Wasserzählervorbereitung 3/4" AG Länge 110 mm mit Absperrungen für kaltes Trinkwasser montiert.
strawa Anschlussstation AS 16-W1-WMZ-AP
Hersteller: strawa Wärmetechnik GmbH
Telefon: +49 (0) 36256 8661-0
E-Mail: info@strawa.com
Technische Änderungen vorbehalten.
oder gleichwertig
Gewähltes Fabrikat und Typ: ...........................................
….....................................................................................
(vom Bieter auszufüllen)
zur Lieferung und betriebsfertigen Montage
________________________________________
Kostengruppe DIN 276 (2018-12): 422 Wärmeverteilnetze
Leistungsbereich STLB-Bau (2021-04): 041 Wärmeversorgungsanlagen - Leitungen, Armaturen, Heizflächen
Ausschreibungstexte können Sie auch im strawa-Produktverzeichnis auf ausschreiben.de herunterladen.
strawa Anschlussstation
AS 16-W1-WMZ-AP
EinheitPCE
GTIN4061323041596
Listenpreis495,30 €
Mindesbestellmenge1
ArtikeltypStandard
HerkunftslandDeutschland
Zolltarifnummer90269000
Standardversand (Tage)3
Elektrische BestandteileJa
BatterieNein
Breite (mm)496
Höhe (mm)620
Tiefe (mm)125
Gewicht (kg)11,017
Breite (mm)670
Höhe (mm)135
Tiefe (mm)530
Gewicht (kg)12,081
Klassifizierung ETIM 9
Material Mantel Stahl
Werkstoff Armaturen Messing
Werkstoff Verrohrung rostfreier Stahl
Primärer Anschluss Innengewinde (metrisch)
Nenndurchmesser primär 3/4 Zoll (20)
Sekundärer Anschluss Außengewinde (metrisch)
Nenndurchmesser sekundär 3/4 Zoll (20)
Max. Arbeitsdruck 6 bar
Mediumtemperatur 0 - 80 °C
Geeignet für Kühlen ja
Geeignet für Heizung ja
Geeignet für Glykol ja
Geeignet für Ethanol nein
Ausführung ungemischter Heizkreis
Mit Passstück für Wärmezähler ja
Mit Wärmezähler nein
Eingebaute Zirkulationspumpe nein
Hocheffizienzpumpe (entsprechend EC 547/2012 und EC 641/2009) nein
Mit Manometer nein
Mit Regelventil ja
Mit Absperrventil ja
Mit Rückschlagklappe nein
Mit Sicherheitsventil nein
Mit Thermometer nein
Auslaufhahn ja
Mit Servomotor nein
Geeignet für Servomotoren nein
Mit Dreiwegeventil nein
Mit Pumpenkugelhahn nein
Mit Anschluss Temperaturfühler nein
Mit Anschluss Ausdehnungsgefäß nein
Mit automatischer Entlüftung nein
Wandaufstellung ja
Mit Wandbefestigungsbügel nein
Mit Füßen ja
Mit Differenzdruckregler nein
Mit Wärmedämmung nein
Verteilerbalken erweiterbar nein
Wärmeübertrager erweiterbar nein
Breite
Höhe
Tiefe
Ausschreibungstexte können Sie auch im strawa-Produktverzeichnis auf ausschreiben.de herunterladen.