Produktübersicht ausklappen

Produktübersicht

0

Anfrage

weitere Artikel anfragen

Ihre Anfrage

Gern erhalten Sie Informationen zu folgenden Produkten:

Artikel

Sie können vorher alle Produkte nochmal bearbeiten

Artikel

Sie können vorher alle Produkte nochmal bearbeiten

Produktbild

strawa Anschlussstation AS 14-WMZ-AP

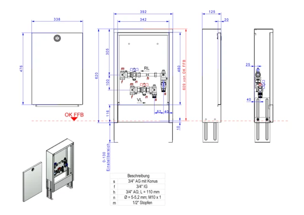
strawa Anschlussstation AS 14-WMZ-AP,BxHxT: 392x620x125 mm, 1 Wohnungsanschluss, verti. AG m. WMZ, Standard-AP-Schrank in RAL 9016

Artikelnummer: 56+651410

Warengruppe: 56

Listenpreis: 372,20 €

Anfragen/Merken

Sie können sich im nächsten Schritt für die ausgewählten Produkte alle Downloaddokumente zusammenstellen die Sie benötigen oder direkt eine Bestellanfrage stellen.

Beschreibung
Artikeldaten
Downloads
Zubehör
Beschreibung
Vermarktungstext
Ausschreibungstext
Langtext

strawa Anschlussstation AS 14-WMZ-AP

strawa Anschlussstation AS 14-WMZ-AP

      1. Beschreibung:
        Die Wohnungsanschlussstation ist mit einer Wärmezählervorbereitung sowie einem vertikalen Primär- und Sekundäranschluss im Aufputz-Schrank ausgestattet.
      2. Bestandteile:
        1. Wärmezählerverrohrung:
          • Wärmezählerdistanzrohr 3/4" Länge 110 mm
          • Kugelhahn DN 20 mit Fühlereinbaustück D = 5–5,2 mm M10×1 im Vor- und Rücklauf
          • zweiter Kugelhahn DN 20 im Rücklauf
          • zwei 90°-Anschlusswinkel im Vor- und Rücklauf
          • Entlüftungsventil im Vor- und Rücklauf
          • Flachdichtungen
        2. Schrank:
          • Gehäuse mit Rückwand:
          • galvanisch verzinktes Stahlblech mit Pulverbeschichtung in weiß RAL 9016
          • Bautiefe: 125 mm
          • zwei verstellbare Montageschienen an der Rückwand zur flexiblen Verteilerbefestigung
          • abnehmbares Estrichprallblech
          • höhenverstellbare Füße für Fußbodenaufbau minimal 60 mm und maximal 190 mm
          • Stecktür:
          • galvanisch verzinktes Stahlblech mit Pulverbeschichtung in weiß RAL 9016
          • versenkter, weißer Drehriegel
          • alternativ auch mit Kunststoffstecktür in weiß ähnlich RAL 9016 lieferbar
          • Bemaßung:
          • Baubreite: 392 mm
          • Bauhöhe: 620–750 mm
          • Tiefe: 125 mm
      3. Technische Daten:
        • max. Betriebsdruck: 6 bar (Heizung)
        • max. Betriebstemperatur: 90 °C
      4. Anschlüsse:
        1. Heizung-Primäranschluss:
          • links, vertikal mit 3/4" IG
        2. Heizung-Sekundäranschluss:
          • rechts, vertikal mit 3/4" AG mit Eurokonus für Klemmringverschraubungen

Artikelspezifikation:

Artikelabmessung: B x H x T: 392 x 620 x 125 mm
Artikelgewicht: 8,85 kg

Marke: strawa
Hersteller: strawa Wärmetechnik GmbH
Telefon: +49 (0) 36256 8661-0 
E-Mail: info@strawa.com
Technische Änderungen vorbehalten.

Die Anschlussstation ist für Wohnungsanschlüsse geeignet. Sie dient zum Absperren und zur Wärmezählung des Wohnungsstranges. Im Standard-Aufputzschrank komplett in weiß RAL 9016 mit einer Bautiefe von 125 mm ist eine Edelstahlverrohrung mit einer vertikalen Anschlussgarnitur mit Wärmezählervorbereitung 3/4" Länge 110 mm und Fühleranschluss 5-5,2 M10x1 im Vor- und Rücklaufkugelhahn ist schallentkoppelt montiert. Die Sekundärabgänge sind ebenfalls vertikal ausgerichtet.

strawa Anschlussstation AS 14-WMZ-AP




      1. Beschreibung:
        Die Wohnungsanschlussstation ist mit einer Wärmezählervorbereitung sowie einem vertikalen Primär- und Sekundäranschluss im Aufputz-Schrank ausgestattet.
      2. Bestandteile:

        1. Wärmezählerverrohrung:
          • Wärmezählerdistanzrohr 3/4" Länge 110 mm
          • Kugelhahn DN 20 mit Fühlereinbaustück D = 5–5,2 mm M10×1 im Vor- und Rücklauf
          • zweiter Kugelhahn DN 20 im Rücklauf
          • zwei 90°-Anschlusswinkel im Vor- und Rücklauf
          • Entlüftungsventil im Vor- und Rücklauf
          • Flachdichtungen
        2. Schrank:
          • Gehäuse mit Rückwand:
          • galvanisch verzinktes Stahlblech mit Pulverbeschichtung in weiß RAL 9016
          • Bautiefe: 125 mm
          • zwei verstellbare Montageschienen an der Rückwand zur flexiblen Verteilerbefestigung
          • abnehmbares Estrichprallblech
          • höhenverstellbare Füße für Fußbodenaufbau minimal 60 mm und maximal 190 mm
          • Stecktür:
          • galvanisch verzinktes Stahlblech mit Pulverbeschichtung in weiß RAL 9016
          • versenkter, weißer Drehriegel
          • alternativ auch mit Kunststoffstecktür in weiß ähnlich RAL 9016 lieferbar
          • Bemaßung:
          • Baubreite: 392 mm
          • Bauhöhe: 620–750 mm
          • Tiefe: 125 mm
      3. Technische Daten:
        • max. Betriebsdruck: 6 bar (Heizung)
        • max. Betriebstemperatur: 90 °C
      4. Anschlüsse:

        1. Heizung-Primäranschluss:
          • links, vertikal mit 3/4" IG
        2. Heizung-Sekundäranschluss:
          • rechts, vertikal mit 3/4" AG mit Eurokonus für Klemmringverschraubungen



Artikelspezifikation:

Artikelabmessung: B x H x T: 392 x 620 x 125 mm
Artikelgewicht: 8,85 kg

GTIN: 4061323041558
Warennummer: 90269000
Werksartikelnummer: 56+651410
Warengruppe: 56
URL: https://www.strawa.com/produkt/56+651410

Marke: strawa

Hersteller: strawa Wärmetechnik GmbH
Telefon: +49 (0) 36256 8661-0
E-Mail: info@strawa.com
Technische Änderungen vorbehalten.
oder gleichwertig

Gewähltes Fabrikat und Typ: ...........................................
….....................................................................................
(vom Bieter auszufüllen)

zur Lieferung und betriebsfertigen Montage
________________________________________
Kostengruppe DIN 276 (2018-12): 422 Wärmeverteilnetze

Leistungsbereich STLB-Bau (2021-04): 041 Wärmeversorgungsanlagen - Leitungen, Armaturen, Heizflächen

Ausschreibungstexte

strawa Anschlussstation
AS 14-WMZ-AP


  1. ohnungsanschluss, vertikale Anschlussgarnitur mit Wärmezählerverrohrung, Standard-Aufputz-Schrank in RAL 9016


Abmessung B x H x T:
392 x 620 x 125 mm
Artikelgewicht: 8,85 kg
Werksartikelnummer: 56+651410
Warennummer: 90269000
Warengruppe: 56

Hersteller: strawa Wärmetechnik GmbH
Telefon: +49 (0) 36256 8661-0
E-Mail: info@strawa.com
Technische Änderungen vorbehalten.
oder gleichwertig

Logistische Daten
ETIM / Technische Daten

Produkteigenschaften

Stammdaten

EinheitPCE

GTIN4061323041558

Listenpreis372,20 €

Mindesbestellmenge1

ArtikeltypStandard

HerkunftslandDeutschland

Zolltarifnummer90269000

Standardversand (Tage)3

Elektrische BestandteileJa

BatterieNein

Artikelabmessungen

Breite (mm)392

Höhe (mm)620

Tiefe (mm)125

Gewicht (kg)8,85

Verpackungsabmessungen

Breite (mm)670

Höhe (mm)135

Tiefe (mm)425

Gewicht (kg)9,55

Merkmale

Klassifizierung ETIM 9

Material Mantel Stahl

Werkstoff Armaturen Messing

Werkstoff Verrohrung rostfreier Stahl

Primärer Anschluss Innengewinde (metrisch)

Nenndurchmesser primär 3/4 Zoll (20)

Sekundärer Anschluss Außengewinde (metrisch)

Nenndurchmesser sekundär 3/4 Zoll (20)

Max. Arbeitsdruck 6 bar

Mediumtemperatur 0 - 80 °C

Geeignet für Kühlen ja

Geeignet für Heizung ja

Geeignet für Glykol ja

Geeignet für Ethanol nein

Ausführung ungemischter Heizkreis

Mit Passstück für Wärmezähler ja

Mit Wärmezähler nein

Eingebaute Zirkulationspumpe nein

Hocheffizienzpumpe (entsprechend EC 547/2012 und EC 641/2009) nein

Mit Manometer nein

Mit Regelventil nein

Mit Absperrventil ja

Mit Rückschlagklappe nein

Mit Sicherheitsventil nein

Mit Thermometer nein

Auslaufhahn nein

Mit Servomotor nein

Geeignet für Servomotoren nein

Mit Dreiwegeventil nein

Mit Pumpenkugelhahn nein

Mit Anschluss Temperaturfühler nein

Mit Anschluss Ausdehnungsgefäß nein

Mit automatischer Entlüftung nein

Wandaufstellung ja

Mit Wandbefestigungsbügel nein

Mit Füßen ja

Mit Differenzdruckregler nein

Mit Wärmedämmung nein

Verteilerbalken erweiterbar nein

Wärmeübertrager erweiterbar nein

Breite

Höhe

Tiefe

Sie benötigen Informationen?

Unser Team berät Sie kompetent zu unseren Produkten oder hilft Ihnen bei Auslegungen und Bestellungen. Vereinbaren Sie hier einen Rückruf.

Kontakt