Produktübersicht ausklappen

Produktübersicht

0

Anfrage

weitere Artikel anfragen

Ihre Anfrage

Gern erhalten Sie Informationen zu folgenden Produkten:

Artikel

Sie können vorher alle Produkte nochmal bearbeiten

Artikel

Sie können vorher alle Produkte nochmal bearbeiten

Produktbild

strawa Anschlussstation AS 16-WMZ

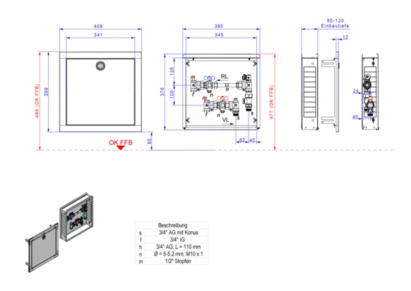
strawa Anschlussstation AS 16-WMZ,BxHxT: 410x400x92 mm, 1 Wohnungsanschluss, verti. AG m. WMZ, mit Regulierventil, Standard-UP-Wandschrank mit Frontblende in RAL 9016

Artikelnummer: 56+151600

Warengruppe: 56

Listenpreis: 353,10 €

Anfragen/Merken

Sie können sich im nächsten Schritt für die ausgewählten Produkte alle Downloaddokumente zusammenstellen die Sie benötigen oder direkt eine Bestellanfrage stellen.

Beschreibung
Artikeldaten
Downloads
Zubehör
Beschreibung
Vermarktungstext
Ausschreibungstext
Langtext

strawa Anschlussstation AS 16-WMZ

strawa Anschlussstation AS 16-WMZ

      1. Beschreibung:
        Die Wohnungsanschlussstation ist mit einer Wärmezählervorbereitung, einem Regulierventil für den hydraulischen Abgleich, sowie einem vertikalen Primär- und Sekundäranschluss im Wand-Unterputzschrank ausgestattet.
      2. Bestandteile:
        1. Wärmezählerverrohrung:
          • Wärmezählerdistanzrohr 3/4" Länge 110 mm
          • Kugelhahn DN 20 mit Fühlereinbaustück D=5-5,2 mm M10x1 im Vor- und Rücklauf
          • Regulierventil (Kvs 2,97 m³/h) für hydraulischen Abgleich im Rücklauf
          • zwei 90°-Winkelanschlussstücke im Vor- und Rücklauf
          • Entlüftungsventil im Vor- und SFE-Ventil (Spül-, Füll- und Entleerventil) im Rücklauf
          • Flachdichtungen Centellen WS 3825 gelb
        2. Schrank:
          Einbauzarge:
          • feuerverzinktes Stahlblech Bautiefe 80 mm
          • seitlich universell vorgestanzte Rohrführungsbleche für den optimalen Verteileranschluss
          • zwei verstellbare Montageschienen an der Rückwand zur flexiblen Verteilerbefestigung
          • abnehmbare Rohrumlenkschiene zur einfachen Montage der Anschlussrohre
          Frontblende:
          • galvanisch verzinktes Stahlblech in weiß RAL 9016
          • verstellbarer (max. 40 mm) Frontrahmen mit Stecktür
          • versenkter weißer Drehriegel in Stecktür
          • alternativ auch mit Kunststofffrontblende in weiß ähnlich RAL 9016 lieferbar
          Bemaßung:
          • Baubreite: 385 mm
          • Bauhöhe: 376 mm
          • Einbautiefe: 80-120 mm
          • Nischeneinbauhöhe mindestens 470 mm von OK FFB
          • Nischeneinbaubreite Breite + 20 mm
          • Nischeneinbautiefe 90-130 mm
      3. Technische Daten:
        • max. Betriebsdruck: 6 bar Heizung
        • max. Betriebstemperatur: 90 °C
      4. Anschluesse:
        1. Primäranschluss Heizung:
          • links, vertikal mit 3/4" IG
        2. Sekundäranschluss Heizung:
          • rechts, vertikal mit 3/4" AG mit Konus für Klemmringverschraubungen

Artikelspezifikation:

Artikelabmessung: B x H x T: 410 x 400 x 92 mm
Artikelgewicht: 6,852 kg

Marke: strawa
Hersteller: strawa Wärmetechnik GmbH
Telefon: +49 (0) 36256 8661-0 
E-Mail: info@strawa.com
Technische Änderungen vorbehalten.
oder gleichwertig

Die Anschlussstation ist für Wohnungsanschlüsse geeignet. Sie dient zum Absperren und zur Wärmezählung des Wohnungsstranges. Im Standard-Wandschrank mit Frontblende in weiß RAL 9016 mit einer Einbautiefe von 80 bis 120 mm ist eine Edelstahlverrohrung mit einer vertikalen Anschlussgarnitur mit Wärmezählervorbereitung 3/4" Länge 110 mm und Fühleranschluss 5-5,2 M10x1 im Vor- und Rücklaufkugelhahn und Regulierventil im Rücklauf ist schallentkoppelt montiert. Die Sekundärabgänge sind ebenfalls vertikal ausgerichtet.

strawa Anschlussstation AS 16-WMZ




      1. Beschreibung:
        Die Wohnungsanschlussstation ist mit einer Wärmezählervorbereitung, einem Regulierventil für den hydraulischen Abgleich, sowie einem vertikalen Primär- und Sekundäranschluss im Wand-Unterputzschrank ausgestattet.
      2. Bestandteile:

        1. Wärmezählerverrohrung:
          • Wärmezählerdistanzrohr 3/4" Länge 110 mm
          • Kugelhahn DN 20 mit Fühlereinbaustück D=5-5,2 mm M10x1 im Vor- und Rücklauf
          • Regulierventil (Kvs 2,97 m³/h) für hydraulischen Abgleich im Rücklauf
          • zwei 90°-Winkelanschlussstücke im Vor- und Rücklauf
          • Entlüftungsventil im Vor- und SFE-Ventil (Spül-, Füll- und Entleerventil) im Rücklauf
          • Flachdichtungen Centellen WS 3825 gelb
        2. Schrank:
          Einbauzarge:
          • feuerverzinktes Stahlblech Bautiefe 80 mm
          • seitlich universell vorgestanzte Rohrführungsbleche für den optimalen Verteileranschluss
          • zwei verstellbare Montageschienen an der Rückwand zur flexiblen Verteilerbefestigung
          • abnehmbare Rohrumlenkschiene zur einfachen Montage der Anschlussrohre
          Frontblende:
          • galvanisch verzinktes Stahlblech in weiß RAL 9016
          • verstellbarer (max. 40 mm) Frontrahmen mit Stecktür
          • versenkter weißer Drehriegel in Stecktür
          • alternativ auch mit Kunststofffrontblende in weiß ähnlich RAL 9016 lieferbar
          Bemaßung:
          • Baubreite: 385 mm
          • Bauhöhe: 376 mm
          • Einbautiefe: 80-120 mm
          • Nischeneinbauhöhe mindestens 470 mm von OK FFB
          • Nischeneinbaubreite Breite + 20 mm
          • Nischeneinbautiefe 90-130 mm
      3. Technische Daten:
        • max. Betriebsdruck: 6 bar Heizung
        • max. Betriebstemperatur: 90 °C
      4. Anschluesse:

        1. Primäranschluss Heizung:
          • links, vertikal mit 3/4" IG
        2. Sekundäranschluss Heizung:
          • rechts, vertikal mit 3/4" AG mit Konus für Klemmringverschraubungen



Artikelspezifikation:

Artikelabmessung: B x H x T: 410 x 400 x 92 mm
Artikelgewicht: 6,852 kg

GTIN: 4061323039265
Warennummer: 90269000
Werksartikelnummer: 56+151600
Warengruppe: 56
URL: https://www.strawa.com/produkt/56+151600

Marke: strawa

Hersteller: strawa Wärmetechnik GmbH
Telefon: +49 (0) 36256 8661-0
E-Mail: info@strawa.com
Technische Änderungen vorbehalten.
oder gleichwertig

Gewähltes Fabrikat und Typ: ...........................................
….....................................................................................
(vom Bieter auszufüllen)

zur Lieferung und betriebsfertigen Montage
________________________________________
Kostengruppe DIN 276 (2018-12): 422 Wärmeverteilnetze

Leistungsbereich STLB-Bau (2021-04): 041 Wärmeversorgungsanlagen - Leitungen, Armaturen, Heizflächen

Ausschreibungstexte

strawa Anschlussstation
AS 16-WMZ


  1. ohnungsanschluss, vertikale Anschlussgarnitur mit Wärmezählerverrohrung, mit Regulierventil, Standard-Unterputz-Wandschrank mit Frontblende in RAL 9016


Abmessung B x H x T:
410 x 400 x 92 mm
Artikelgewicht: 6,852 kg
Werksartikelnummer: 56+151600
Warennummer: 90269000
Warengruppe: 56

Hersteller: strawa Wärmetechnik GmbH
Telefon: +49 (0) 36256 8661-0
E-Mail: info@strawa.com
Technische Änderungen vorbehalten.
oder gleichwertig

Logistische Daten
ETIM / Technische Daten

Produkteigenschaften

Stammdaten

EinheitPCE

GTIN4061323039265

Listenpreis353,10 €

Mindesbestellmenge1

ArtikeltypStandard

HerkunftslandDeutschland

Zolltarifnummer90269000

Standardversand (Tage)3

Elektrische BestandteileJa

BatterieNein

Artikelabmessungen

Breite (mm)385

Höhe (mm)376

Tiefe (mm)80

Gewicht (kg)6,852

Verpackungsabmessungen

Breite (mm)440

Höhe (mm)105

Tiefe (mm)430

Gewicht (kg)7,242

Merkmale

Klassifizierung ETIM 9

Material Mantel Stahl

Werkstoff Armaturen Messing

Werkstoff Verrohrung rostfreier Stahl

Primärer Anschluss Innengewinde (metrisch)

Nenndurchmesser primär 3/4 Zoll (20)

Sekundärer Anschluss Außengewinde (metrisch)

Nenndurchmesser sekundär 3/4 Zoll (20)

Max. Arbeitsdruck 6 bar

Mediumtemperatur 0 - 80 °C

Geeignet für Kühlen ja

Geeignet für Heizung ja

Geeignet für Glykol ja

Geeignet für Ethanol nein

Ausführung ungemischter Heizkreis

Mit Passstück für Wärmezähler ja

Mit Wärmezähler nein

Eingebaute Zirkulationspumpe nein

Hocheffizienzpumpe (entsprechend EC 547/2012 und EC 641/2009) nein

Mit Manometer nein

Mit Regelventil ja

Mit Absperrventil ja

Mit Rückschlagklappe nein

Mit Sicherheitsventil nein

Mit Thermometer nein

Auslaufhahn ja

Mit Servomotor nein

Geeignet für Servomotoren nein

Mit Dreiwegeventil nein

Mit Pumpenkugelhahn nein

Mit Anschluss Temperaturfühler nein

Mit Anschluss Ausdehnungsgefäß nein

Mit automatischer Entlüftung nein

Wandaufstellung ja

Mit Wandbefestigungsbügel nein

Mit Füßen ja

Mit Differenzdruckregler nein

Mit Wärmedämmung nein

Verteilerbalken erweiterbar nein

Wärmeübertrager erweiterbar nein

Breite

Höhe

Tiefe

Sie benötigen Informationen?

Unser Team berät Sie kompetent zu unseren Produkten oder hilft Ihnen bei Auslegungen und Bestellungen. Vereinbaren Sie hier einen Rückruf.

Kontakt