Produktübersicht ausklappen

Produktübersicht

0

Anfrage

weitere Artikel anfragen

Ihre Anfrage

Gern erhalten Sie Informationen zu folgenden Produkten:

Artikel

Sie können vorher alle Produkte nochmal bearbeiten

Artikel

Sie können vorher alle Produkte nochmal bearbeiten

Produktbild

strawa HK-Anschlussstation H 52-W1-WMZ 8 Hkr.

strawa HK-Anschlussstation H 52-W1-WMZ 8 Hkr.,BxHxT: 750x725x122 mm, vert. AG m. WMZ, Verteiler ohne Einbauten, Wasserzählerstr. TW kalt, Standard-UP-Schrank mit Frontblende in RAL 9016

Artikelnummer: 56+115208

Warengruppe: 56

Listenpreis: 578,10 €

Anfragen/Merken

Sie können sich im nächsten Schritt für die ausgewählten Produkte alle Downloaddokumente zusammenstellen die Sie benötigen oder direkt eine Bestellanfrage stellen.

Beschreibung
Artikeldaten
Downloads
Zubehör
Ersatzteile
Beschreibung
Ausschreibungstext
Langtext

strawa HK-Anschlussstation H 52-W1-WMZ 8 Hkr.

strawa HK-Anschlussstation H 52-W1-WMZ 8 Hkr.




      1. Beschreibung:
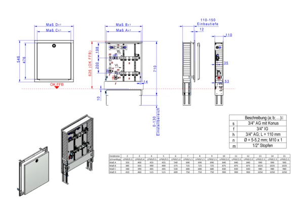
        Die Anschlussstation für Heizkörperanbindungen ist im Unterputzschrank montiert und umfasst einen Edelstahlverteiler ohne zusätzliche Einbauten im Heizkreis, sowie eine vertikale Anschlussgarnitur mit Wärmezählerverrohrung. Zusätzlich ist eine Wasserzählereinbaustrecke für Trinkwasser kalt vorhanden.
      2. Bestandteile:

        1. Anschlussverteiler:
          • Typ e-class 52
          • Vor- und Rücklaufbalken aus profiliertem Edelstahlprofil DN 32
          • SFE-Ventil (Spül-, Füll- und Entleerventil) im Rücklaufbalken
          • Entlüftungsventil im Vorlauf- und Rücklaufbalken
          • verzinkte Doppelwandhalter, Abstand der Vor- und Rücklaufverteilerbalken 200 mm
          • Befestigungsschellen mit Schalldämmeinlage, erfüllt DIN 4109
          • Flachdichtungen Centellen WS 3825 gelb
          • selbstklebende Beschriftungsaufkleber für Räume mit Bezeichnung Raum und Durchfluss
        2. Anschlussgarnitur:
          • Wärmezählerdistanzrohr 3/4" Länge 110 mm
          • 90° Winkelanschlussstück
          • Kugelhahn DN 20 mit Fühlereinbaustück D=5-5,2mm M10x1 im Vor- und Rücklauf
          • zweiter Kugelhahn DN 20 im Rücklauf
        3. Schrank:
          • Standard-Unterputzverteilerschrank 69
          • verzinkte Einbauzarge Tiefe 110 mm, höhenverstellbare Füße bis 130 mm
          • Fronblende mit Stecktür in weiß RAL 9016, mit Stecklaschen und Drehriegel
          • Tiefe: 110-150 mm
          • Höhe: 710-840 mm
          • Nischeneinbauhöhe von OKFFB: 650 mm
          • Nischeneinbaubreite Schrankbreite + 20 mm
        4. Wasserzählereinbaustrecke:
          • W1 für Trinkwasser kalt
          • 2 Stück DVGW-Kugelhähne DN 20
          • 1 Stück Wasserzählerdistanzrohr 3/4" Länge 110 mm, mit EPP-Dämmung
      3. Technische Daten:
        • max. Volumenstrom: 2,14 m³/h
        • max. Betriebstemperatur: 80 °C
        • max. Betriebsdruck: 6 bar
      4. Anschluesse:

        1. Primäranschluss:
          • links, vertikal mit 3/4" IG
        2. Sekundäranschluss:
          • Heizkreisabgänge mit Anschlussgewinde 3/4" AG mit Eurokonus, passend für Klemmverschraubungen
        3. Trinkwasseranschluss:
          • Anschluss horizontal mit 3/4" IG



Artikelspezifikation:
8 Heizkreise
Artikelabmessung: B x H x T: 750 x 725 x 122 mm
Artikelgewicht: 18,009 kg

Marke: strawa
Hersteller: strawa Wärmetechnik GmbH
Telefon: +49 (0) 36256 8661-0 
E-Mail: info@strawa.com
Technische Änderungen vorbehalten.
oder gleichwertig

strawa HK-Anschlussstation H 52-W1-WMZ 8 Hkr.




      1. Beschreibung:
        Die Anschlussstation für Heizkörperanbindungen ist im Unterputzschrank montiert und umfasst einen Edelstahlverteiler ohne zusätzliche Einbauten im Heizkreis, sowie eine vertikale Anschlussgarnitur mit Wärmezählerverrohrung. Zusätzlich ist eine Wasserzählereinbaustrecke für Trinkwasser kalt vorhanden.
      2. Bestandteile:

        1. Anschlussverteiler:
          • Typ e-class 52
          • Vor- und Rücklaufbalken aus profiliertem Edelstahlprofil DN 32
          • SFE-Ventil (Spül-, Füll- und Entleerventil) im Rücklaufbalken
          • Entlüftungsventil im Vorlauf- und Rücklaufbalken
          • verzinkte Doppelwandhalter, Abstand der Vor- und Rücklaufverteilerbalken 200 mm
          • Befestigungsschellen mit Schalldämmeinlage, erfüllt DIN 4109
          • Flachdichtungen Centellen WS 3825 gelb
          • selbstklebende Beschriftungsaufkleber für Räume mit Bezeichnung Raum und Durchfluss
        2. Anschlussgarnitur:
          • Wärmezählerdistanzrohr 3/4" Länge 110 mm
          • 90° Winkelanschlussstück
          • Kugelhahn DN 20 mit Fühlereinbaustück D=5-5,2mm M10x1 im Vor- und Rücklauf
          • zweiter Kugelhahn DN 20 im Rücklauf
        3. Schrank:
          • Standard-Unterputzverteilerschrank 69
          • verzinkte Einbauzarge Tiefe 110 mm, höhenverstellbare Füße bis 130 mm
          • Fronblende mit Stecktür in weiß RAL 9016, mit Stecklaschen und Drehriegel
          • Tiefe: 110-150 mm
          • Höhe: 710-840 mm
          • Nischeneinbauhöhe von OKFFB: 650 mm
          • Nischeneinbaubreite Schrankbreite + 20 mm
        4. Wasserzählereinbaustrecke:
          • W1 für Trinkwasser kalt
          • 2 Stück DVGW-Kugelhähne DN 20
          • 1 Stück Wasserzählerdistanzrohr 3/4" Länge 110 mm, mit EPP-Dämmung
      3. Technische Daten:
        • max. Volumenstrom: 2,14 m³/h
        • max. Betriebstemperatur: 80 °C
        • max. Betriebsdruck: 6 bar
      4. Anschluesse:

        1. Primäranschluss:
          • links, vertikal mit 3/4" IG
        2. Sekundäranschluss:
          • Heizkreisabgänge mit Anschlussgewinde 3/4" AG mit Eurokonus, passend für Klemmverschraubungen
        3. Trinkwasseranschluss:
          • Anschluss horizontal mit 3/4" IG



Artikelspezifikation:
8 Heizkreise
Artikelabmessung: B x H x T: 750 x 725 x 122 mm
Artikelgewicht: 18,009 kg

GTIN: 4061323035496
Warennummer: 84198998
Werksartikelnummer: 56+115208
Warengruppe: 56
URL: https://www.strawa.com/produkt/56+115208

Marke: strawa

Hersteller: strawa Wärmetechnik GmbH
Telefon: +49 (0) 36256 8661-0 
E-Mail: info@strawa.com
Technische Änderungen vorbehalten.
oder gleichwertig

Gewähltes Fabrikat und Typ: ...........................................
….....................................................................................
(vom Bieter auszufüllen)

zur Lieferung und betriebsfertigen Montage
________________________________________
Kostengruppe DIN 276 (2018-12):  422 Wärmeverteilnetze

Leistungsbereich STLB-Bau (2021-04): 041 Wärmeversorgungsanlagen - Leitungen, Armaturen, Heizflächen

Ausschreibungstexte

strawa HK-Anschlussstation
H 52-W1-WMZ 8 Hkr.

vertikale Anschlussgarnitur mit Wärmezählerverrohrung, Verteiler ohne Einbauten, Wasserzählerstrecke Trinkwasser kalt, Standard-Unterputz-Schrank mit Frontblende in RAL 9016

8 Heizkreise
Abmessung B x H x T:
750 x 725 x 122 mm
Artikelgewicht: 18,009 kg
Werksartikelnummer: 56+115208
Warennummer: 84198998
Warengruppe: 56

Hersteller: strawa Wärmetechnik GmbH
Telefon: +49 (0) 36256 8661-0 
E-Mail: info@strawa.com
Technische Änderungen vorbehalten.
oder gleichwertig

Logistische Daten
ETIM / Technische Daten

Produkteigenschaften

Stammdaten

EinheitPCE

GTIN4061323035496

Listenpreis578,10 €

Mindesbestellmenge1

ArtikeltypStandard

HerkunftslandDeutschland

Zolltarifnummer84198998

Standardversand (Tage)3

Elektrische BestandteileJa

BatterieNein

Artikelabmessungen

Breite (mm)725

Höhe (mm)710

Tiefe (mm)110

Gewicht (kg)18,009

Verpackungsabmessungen

Breite (mm)770

Höhe (mm)165

Tiefe (mm)760

Gewicht (kg)19,409

Merkmale

Klassifizierung ETIM 9

Geeignet für Leitungswasser nein

Geeignet für Heizungswasser ja

Geeignet für Kühlwasser ja

Geeignet für Pressluft nein

Geeignet für Glykol ja

Geeignet für Ethanol nein

Montageart freistehend (Monoblock)

Ausführung Verteiler/Sammler

Werkstoff rostfreier Stahl

Werkstoffgüte Edelstahl 304 (1.4301)

Oberflächenschutz unbehandelt

Nenndurchmesser Anschluss 1 3/4 Zoll (20)

Form Endstück mit geraden Abzweigen

Anschluss 1 Innengewinde (metrisch)

Nenndurchmesser Anschluss 2 3/4 Zoll (20)

Anschluss 2 Innengewinde (metrisch)

Anzahl der Abzweige 8

Anzahl der Verzweigungsrichtungen 1

Nenndurchmesser Abzweigungen 3/4 Zoll (20)

Anschluss Abzweigungen Eurokonus nach EN 16313

Abstand zwischen den Abzweigungen 50 mm

Unterschiedliche Abstände zwischen Abzweigungen nein

Druckstufe Artikel PN 6

Max. Mediumtemperatur (Dauerbetrieb) 80 °C

Systemgebunden nein

Mit Füll- und Entleerungshahn ja

Mit Absperrventil ja

Mit Entlüftung ja

Mit Wandbefestigungsbügel ja

Mit Befestigungsmaterial nein

Mit Füßen ja

Mit verstellbaren Bodenstützen nein

Mit Isolierung nein

Breite 725 mm

Höhe 710 mm

Tiefe 110 mm

Venturidüse ohne

Typenzulassung nach BBR/EKS nein

Sie benötigen Informationen?

Unser Team berät Sie kompetent zu unseren Produkten oder hilft Ihnen bei Auslegungen und Bestellungen. Vereinbaren Sie hier einen Rückruf.

Kontakt