Produktübersicht ausklappen

Produktübersicht

0

Anfrage

weitere Artikel anfragen

Ihre Anfrage

Gern erhalten Sie Informationen zu folgenden Produkten:

Artikel

Sie können vorher alle Produkte nochmal bearbeiten

Artikel

Sie können vorher alle Produkte nochmal bearbeiten

Produktbild

strawa FB-Anschlussstation H 53h-WMZ 2 Hkr.

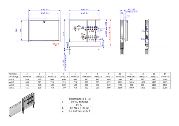
strawa FB-Anschlussstation H 53h-WMZ 2 Hkr.,BxHxT: 515x725x92 mm, horiz. AG m. WMZ, Verteiler mit Regulierventil + THV M30x1,5, Standard-UP-Schrank mit Frontblende in RAL 9016

Artikelnummer: 56+065302

Warengruppe: 56

Listenpreis: 357,60 €

Anfragen/Merken

Sie können sich im nächsten Schritt für die ausgewählten Produkte alle Downloaddokumente zusammenstellen die Sie benötigen oder direkt eine Bestellanfrage stellen.

Beschreibung
Artikeldaten
Downloads
Zubehör
Ersatzteile
Beschreibung
Ausschreibungstext
Langtext

strawa FB-Anschlussstation H 53h-WMZ 2 Hkr.

strawa FB-Anschlussstation H 53h-WMZ 2 Hkr.

      1. Beschreibung:
        Die Anschlussstation für Flächenheizung und -kühlung im Unterputz-Schrank montierter Edelstahlverteiler mit integrierten Regulierventilen und Ventileinsätzen (M30×1,5), horizontale Anschlussgarnitur mit Wärmezählerverrohrung. Platzhaltung für Klemmleiste und Stellantriebe.
      2. Bestandteile:
        1. Anschlussverteiler:
          • Anschlussverteiler e-class 53
          • Vor- und Rücklaufbalken aus profiliertem Edelstahlprofil DN 32
          • SFEE-Ventil (Spül-, Füll-, Entleer- und Entlüftungsventil) im Vorlauf- und Rücklaufbalken
          • Vorlaufbalken mit integrierten Regulierventilen mit Memoryfunktion (Kvs = 2,88 m³/h)
          • Rücklaufbalken mit Ventileinsätzen VA mit Anschlussgewinde 30×1,5 (Kvs = 2,56 m³/h)
          • verzinkte Doppelwandhalter, Abstand der Vor- und Rücklaufverteilerbalken 200 mm
          • Befestigungsschellen mit Schalldämmeinlage, erfüllt DIN 4109
          • Flachdichtungen
          • selbstklebende Beschriftungsaufkleber für Räume mit Bezeichnung Raum und Durchfluss
        2. Anschlussgarnitur:
          • Wärmezählerdistanzrohr 3/4" Länge 110 mm
          • Kugelhahn DN 20 mit Fühlereinbaustück D = 5–5,2 mm M10×1 im Vor- und Rücklauf
          • zweiter Kugelhahn DN 20 im Rücklauf
        3. Schrank:
          • Standard-UP-Schrank 80
          • verzinkte Einbauzarge Tiefe 80 mm, höhenverstellbare Füße bis 130 mm
          • Frontblende mit Stecktür in weiß RAL 9016, mit Stecklaschen und Drehriegel
          • Tiefe: 80–120 mm
          • Höhe: 710–840 mm
          • Nischeneinbauhöhe von OK FFB: 650 mm
          • Nischeneinbaubreite: Schrankbreite + 20 mm
      3. Technische Daten:
        • max. Volumenstrom: 2,14 m³/h
        • max. Betriebstemperatur: 70 °C
        • max. Betriebsdruck: 4 bar
        • Kvs-Wert pro Heizkreis: 1,06 m³/h
      4. Anschlüsse:
        1. Primäranschluss:
          • links, horizontal mit 3/4" IG
        2. Sekundäranschluss:
          • Heizkreisabgänge mit Anschlussgewinde 3/4" AG mit Eurokonus, passend für Klemmverschraubungen
        3. Elektroanschluss:
          • bauseits muss ein abgesicherter Elektroanschluss 230 V vorgesehen werden
          • für den Anschluss von Raumthermostaten muss bauseits ein Elektrokabel mit mindestens 4 Adern pro Raumthermostat vorgesehen werden

Artikelspezifikation:
2 Heizkreise
Artikelabmessung: B x H x T: 515 x 725 x 92 mm
Artikelgewicht: 11,584 kg

Marke: strawa
Hersteller: strawa Wärmetechnik GmbH
Telefon: +49 (0) 36256 8661-0 
E-Mail: info@strawa.com
Technische Änderungen vorbehalten.

strawa FB-Anschlussstation H 53h-WMZ 2 Hkr.




      1. Beschreibung:
        Die Anschlussstation für Flächenheizung und -kühlung im Unterputz-Schrank montierter Edelstahlverteiler mit integrierten Regulierventilen und Ventileinsätzen (M30×1,5), horizontale Anschlussgarnitur mit Wärmezählerverrohrung. Platzhaltung für Klemmleiste und Stellantriebe.
      2. Bestandteile:

        1. Anschlussverteiler:
          • Anschlussverteiler e-class 53
          • Vor- und Rücklaufbalken aus profiliertem Edelstahlprofil DN 32
          • SFEE-Ventil (Spül-, Füll-, Entleer- und Entlüftungsventil) im Vorlauf- und Rücklaufbalken
          • Vorlaufbalken mit integrierten Regulierventilen mit Memoryfunktion (Kvs = 2,88 m³/h)
          • Rücklaufbalken mit Ventileinsätzen VA mit Anschlussgewinde 30×1,5 (Kvs = 2,56 m³/h)
          • verzinkte Doppelwandhalter, Abstand der Vor- und Rücklaufverteilerbalken 200 mm
          • Befestigungsschellen mit Schalldämmeinlage, erfüllt DIN 4109
          • Flachdichtungen
          • selbstklebende Beschriftungsaufkleber für Räume mit Bezeichnung Raum und Durchfluss
        2. Anschlussgarnitur:
          • Wärmezählerdistanzrohr 3/4" Länge 110 mm
          • Kugelhahn DN 20 mit Fühlereinbaustück D = 5–5,2 mm M10×1 im Vor- und Rücklauf
          • zweiter Kugelhahn DN 20 im Rücklauf
        3. Schrank:
          • Standard-UP-Schrank 80
          • verzinkte Einbauzarge Tiefe 80 mm, höhenverstellbare Füße bis 130 mm
          • Frontblende mit Stecktür in weiß RAL 9016, mit Stecklaschen und Drehriegel
          • Tiefe: 80–120 mm
          • Höhe: 710–840 mm
          • Nischeneinbauhöhe von OK FFB: 650 mm
          • Nischeneinbaubreite: Schrankbreite + 20 mm
      3. Technische Daten:
        • max. Volumenstrom: 2,14 m³/h
        • max. Betriebstemperatur: 70 °C
        • max. Betriebsdruck: 4 bar
        • Kvs-Wert pro Heizkreis: 1,06 m³/h
      4. Anschlüsse:

        1. Primäranschluss:
          • links, horizontal mit 3/4" IG
        2. Sekundäranschluss:
          • Heizkreisabgänge mit Anschlussgewinde 3/4" AG mit Eurokonus, passend für Klemmverschraubungen
        3. Elektroanschluss:
          • bauseits muss ein abgesicherter Elektroanschluss 230 V vorgesehen werden
          • für den Anschluss von Raumthermostaten muss bauseits ein Elektrokabel mit mindestens 4 Adern pro Raumthermostat vorgesehen werden



Artikelspezifikation:
2 Heizkreise
Artikelabmessung: B x H x T: 515 x 725 x 92 mm
Artikelgewicht: 11,584 kg

GTIN: 4061323034895
Warennummer: 84198998
Werksartikelnummer: 56+065302
Warengruppe: 56
URL: https://www.strawa.com/produkt/56+065302

Marke: strawa

Hersteller: strawa Wärmetechnik GmbH
Telefon: +49 (0) 36256 8661-0
E-Mail: info@strawa.com
Technische Änderungen vorbehalten.
oder gleichwertig

Gewähltes Fabrikat und Typ: ...........................................
….....................................................................................
(vom Bieter auszufüllen)

zur Lieferung und betriebsfertigen Montage
________________________________________
Kostengruppe DIN 276 (2018-12): 422 Wärmeverteilnetze

Leistungsbereich STLB-Bau (2021-04): 041 Wärmeversorgungsanlagen - Leitungen, Armaturen, Heizflächen

Ausschreibungstexte

strawa FB-Anschlussstation
H 53h-WMZ 2 Hkr.

horizontale Anschlussgarnitur mit Wärmezählerverrohrung, Verteiler mit Regulierventilen im Vorlaufbalken und Thermostatventileinsätzen M30x1,5 im Rücklaufbalken, Standard-Unterputz-Schrank mit Frontblende in RAL 9016

2 Heizkreise
Abmessung B x H x T:
515 x 725 x 92 mm
Artikelgewicht: 11,584 kg
Werksartikelnummer: 56+065302
Warennummer: 84198998
Warengruppe: 56

Hersteller: strawa Wärmetechnik GmbH
Telefon: +49 (0) 36256 8661-0
E-Mail: info@strawa.com
Technische Änderungen vorbehalten.
oder gleichwertig

Logistische Daten
ETIM / Technische Daten

Produkteigenschaften

Stammdaten

EinheitPCE

GTIN4061323034895

Listenpreis357,60 €

Mindesbestellmenge1

ArtikeltypStandard

HerkunftslandDeutschland

Zolltarifnummer84198998

Standardversand (Tage)3

Elektrische BestandteileNein

BatterieNein

Artikelabmessungen

Breite (mm)490

Höhe (mm)710

Tiefe (mm)80

Gewicht (kg)11,584

Verpackungsabmessungen

Breite (mm)770

Höhe (mm)135

Tiefe (mm)530

Gewicht (kg)12,484

Merkmale

Klassifizierung ETIM 9

Anschlussart Primärseite 2-rohrig

Geeignet für Kühlen ja

Werkstoff rostfreier Stahl

Position primärer Anschluss links

Primärer Anschluss Innengewinde (metrisch)

Nenndurchmesser primär 3/4 Zoll (20)

Mit Ventilen am Primäranschluss ja

Max. Kühlleistung primär (bei primärer dT = 7K) 2.9 kW

Max. Heizleistung (bei Primär dT = 20K) 8.4 kW

Mediumtemperatur (Dauerbetrieb) -10 - 70 °C

Max. Arbeitsdruck 4 bar

Mit Mischventil nein

Erweiterbar nein

Max. Anzahl zusätzlicher Heizkreise 0

Multi-Zonen-Verteiler nein

Mit Temperaturbegrenzung nein

Mit Rückschlagklappe nein

Mit Umwälzpumpe nein

Druckstufe Artikel PN 4

Mit Regler nein

Hydraulischer Abgleich statisch

Volumenstrommessung ohne

Mit Thermometer nein

Temperaturmessung Zufuhr ohne

Temperatue measurement Rücklauf ohne

Versorgungsspannung 230 V

Mit Entlüftung ja

Mit Manometer nein

Mit Füll-/Entleerungshahn ja

Anzahl der Gruppen sekundär 2

Sekundärer Anschluss Eurokonus nach EN 16313

Nenndurchmesser sekundär 3/4 Zoll (20)

Verschließbare Heizkreise ja

Mit Durchflussanzeige nein

Durchflussleistung 0 - 300 l/h

Mit thermischem Stellantrieb nein

Hublänge Antrieb 4 mm

Mit Keramikventil nein

Mit Wandbefestigungsbügel nein

Breite

Höhe

Tiefe

Mit Umbau ja

Sie benötigen Informationen?

Unser Team berät Sie kompetent zu unseren Produkten oder hilft Ihnen bei Auslegungen und Bestellungen. Vereinbaren Sie hier einen Rückruf.

Kontakt