Produktübersicht ausklappen

Produktübersicht

0

Anfrage

weitere Artikel anfragen

Ihre Anfrage

Gern erhalten Sie Informationen zu folgenden Produkten:

Artikel

Sie können vorher alle Produkte nochmal bearbeiten

Artikel

Sie können vorher alle Produkte nochmal bearbeiten

Produktbild

strawa Comfort Kompakt-Mischstation FBM-18-HT2-H-W2-WMZ-C69-EGO 3 Hkr.

strawa Comfort Kompakt-Mischstation FBM-18-HT2-H-W2-WMZ-C69-EGO 3 Hkr.,BxHxT: 900x775x122 mm, Mischg. m 3P SM m Pum, 2x HT-Abg, horz. AG m. WMZ, Verteiler m. DFA min/max+THV für EGO, vorm. EGO-Regelantr., WZ-TW kalt+warm, CUP-Schrank RAL9015

Artikelnummer: 5422307403

Warengruppe: 542

Listenpreis: 2.259,60 €

Anfragen/Merken

Sie können sich im nächsten Schritt für die ausgewählten Produkte alle Downloaddokumente zusammenstellen die Sie benötigen oder direkt eine Bestellanfrage stellen.

Beschreibung
Artikeldaten
Downloads
Zubehör
Ersatzteile
Beschreibung
Ausschreibungstext
Langtext

strawa Comfort Kompakt-Mischstation FBM-18-HT2-H-W2-WMZ-C69-EGO 3 Hkr.

strawa Comfort Kompakt-Mischstation FBM-18-HT2-H-W2-WMZ-C69-EGO 3 Hkr.




      1. Beschreibung:
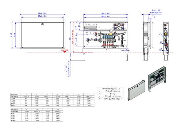
        Die Kompakt-Mischstation für Flächenheizung ist mit einer witterungsgeführten Vorlauf-Temperaturregelung ausgestattet (Regler nicht im Lieferumfang) und bietet zwei Hochtemperaturabgänge für statische Heizflächen (z.B. Badheizkörper). Die im Unterputzschrank montierte Mischgruppe enthält eine Umwälzpumpe, einen Edelstahlverteiler mit absperrbaren Durchflussanzeigern und Ventileinsätzen für den EGO-Schnellverschluss, sowie eine horizontale Anschlussgarnitur mit Wärmezählerverrohrung. Zusätzlich sind zwei Wasserzählereinbaustrecken für kaltes und warmes Trinkwasser vorhanden. Die EGO-Regelantriebe sind vormontiert und verdrahtet auf vormontierter Klemmleiste installiert.
        Die Mischstation gewährleistet über das EGO-System den vollautomatischen hydraulischen Abgleich der Heizkreise in der Station. Das EGO-System besteht aus einem Anschlussverteiler e-class 18 und für jeden Heizkreis ist ein intelligenter, autonomer, elektrothermischer EGO-Regelantrieb montiert.
      2. Bestandteile:

        1. Hochtemperaturabgang:
          • HT2: zwei Hochtemperaturabgänge
          • Rücklaufanschluss mit Regulierventil
        2. Mischgruppe:
          • Mischventil mit 3-Punkt-Stellmotor 230 V und Tauchfühler für witterungsgeführte Vorlauf-Temperaturregelung
          • Temperaturbegrenzer voreingestellt auf 60 °C
          • Beimischung aus Sekundärkreislauf über Regulierventil
          • Thermometer 20-60 °C
          • Pumpe Wilo Para 15-130/6-43/SC-12
          • Rückschlagventil im Sekundärkreis
        3. Anschlussverteiler:
          • Anschlussverteiler e-class 18
          • Vor- und Rücklaufbalken aus profiliertem Edelstahlprofil DN 32
          • SFE-Ventil (Spül-, Füll- und Entleerventil) im Vorlauf- und Rücklaufbalken
          • Vorlaufbalken mit Durchflussanzeiger min. / max. (Kvs=1,23 m³/h)
          • Rücklaufbalken mit Ventileinsätzen VA mit Schnellverschluss (Kvs=2,56 m³/h)
          • verzinkte Doppelwandhalter, Abstand der Vor- und Rücklaufverteilerbalken 200 mm
          • Befestigungsschellen mit Schalldämmeinlage, erfüllt DIN 4109
          • Flachdichtungen Centellen WS 3825 gelb
          • selbstklebende Beschriftungsaufkleber für Räume mit Bezeichnung Raum und Durchfluss
        4. Anschlussgarnitur:
          • Wärmezählerdistanzrohr 3/4" Länge 110 mm
          • Kugelhahn DN 20 mit Fühlereinbaustück D=5-5,2mm M10x1 im Vor- und Rücklauf
          • zweiter Kugelhahn DN 20 im Rücklauf
        5. Wasserzählereinbaustrecke:
          • W2 für Trinkwasser kalt und warm
          • 4 Stück DVGW-Kugelhahn DN 20
          • 2 Stück Wasserzählerdistanzrohr 3/4" Länge 110 mm, mit EPP-Dämmung
        6. Schrank:
          • Comfort-UP-Schrank C69
          • verzinkte Einbauzarge Tiefe 110 mm
          • höhenverstellbare Füße bis 130 mm
          • Fronblende mit Stecktür in weiß RAL 9016, mit Stecklaschen und Drehriegel
          • Tiefe: 110-150 mm
          • Höhe: 760-890 mm
          • Nischeneinbauhöhe von OKFFB: 720 mm
          • Nischeneinbaubreite Schrankbreite + 20 mm
        7. Antriebe:
          • EGO-Regelantrieb 230 V
          • intelligent autonomer elektrothermischer Regelantrieb 230 V NC
          • stromlos geschlossen
          • in Kombination mit handelsüblichen Raumthermostaten gewährleistet er den automatischen und bedarfsgerechten hydraulischen Abgleich der Heizkreise eines Heizkreisverteilers in Flächenheizungssystemen
          • Temperaturfühler geeignet für Flächenheizungsrohre aus Kunststoff, Metall oder Kombination daraus mit Außendurchmesser von 12 bis 20 mm
          • Hinweis: Für die Funktion des EGO ist ein Zweipunkt-Raumtemperaturregler erforderlich
          • max. Vorlauftemperatur: 60 °C (in Stellung Automatik ist die Vorlauftemperaturbegrenzung aktiv)
        8. Klemmleiste:
          • strawalogiX RT-STA Klemmleiste 230 V
          • mit individueller Zuordnung der Stellantriebe zum Raumthermostat über das Wählrad
          • individuelle Weitergabe von Zeitbefehlen oder Nachtabsenkung von Uhrenthermostaten an Raumthermostate über die Klemmleiste
          • integriertes Pumpenmodul
          • 1 Heizkreis -> keine Klemmleiste montiert
          • 2 bis 8 Heizkreise -> max. 6 Raumthermostate und 8 Stell- bzw. Regelantriebe -> strawalogiX RT6-STA8 Klemmleiste 230 V
          • 9 bis 14 Heizkreise -> max. 8 Raumthermostate und 14 Stell- bzw. Regelantriebe -> strawalogiX RT8-STA16 Klemmleiste 230 V
      3. Technische Daten:
        • ausreichend für ca. 200 m² beheizte Fläche, abhängig vom Wärmebedarf
        • max. Volumenstrom: 2,14 m³/h
        • max. Primär-Betriebstemperatur: 80 °C
        • max. Sekundär-Betriebstemperatur: 20-50 °C
        • max. Betriebsdruck: 4 bar
      4. Anschluesse:

        1. Heizung-Primäranschluss:
          • links oder optional rechts, horizontal mit 3/4" IG
        2. Heizung- Sekundäranschluss:
          • vertikal mit 3/4" AG und Konus
        3. Trinkwasser-Anschluss:
          • Anschluss horizontal mit 3/4" IG
        4. Elektroanschluss:
          • bauseits muss ein abgesicherter Elektroanschluss 230 V vorgesehen werden
          • für den Anschluss von Raumthermostaten muss bauseits ein Elektrokabel mit mindestens 4 Adern pro Raumthermostat vorgesehen werden



Artikelspezifikation:
3 Flächenheizkreise
2 Hochtemperaturheizkreise
Artikelabmessung: B x H x T: 900 x 775 x 122 mm
Artikelgewicht: 27,776 kg

Marke: strawa
Hersteller: strawa Wärmetechnik GmbH
Telefon: +49 (0) 36256 8661-0 
E-Mail: info@strawa.com
Technische Änderungen vorbehalten.

strawa Comfort Kompakt-Mischstation FBM-18-HT2-H-W2-WMZ-C69-EGO 3 Hkr.




      1. Beschreibung:
        Die Kompakt-Mischstation für Flächenheizung ist mit einer witterungsgeführten Vorlauf-Temperaturregelung ausgestattet (Regler nicht im Lieferumfang) und bietet zwei Hochtemperaturabgänge für statische Heizflächen (z.B. Badheizkörper). Die im Unterputzschrank montierte Mischgruppe enthält eine Umwälzpumpe, einen Edelstahlverteiler mit absperrbaren Durchflussanzeigern und Ventileinsätzen für den EGO-Schnellverschluss, sowie eine horizontale Anschlussgarnitur mit Wärmezählerverrohrung. Zusätzlich sind zwei Wasserzählereinbaustrecken für kaltes und warmes Trinkwasser vorhanden. Die EGO-Regelantriebe sind vormontiert und verdrahtet auf vormontierter Klemmleiste installiert.
        Die Mischstation gewährleistet über das EGO-System den vollautomatischen hydraulischen Abgleich der Heizkreise in der Station. Das EGO-System besteht aus einem Anschlussverteiler e-class 18 und für jeden Heizkreis ist ein intelligenter, autonomer, elektrothermischer EGO-Regelantrieb montiert.
      2. Bestandteile:

        1. Hochtemperaturabgang:
          • HT2: zwei Hochtemperaturabgänge
          • Rücklaufanschluss mit Regulierventil
        2. Mischgruppe:
          • Mischventil mit 3-Punkt-Stellmotor 230 V und Tauchfühler für witterungsgeführte Vorlauf-Temperaturregelung
          • Temperaturbegrenzer voreingestellt auf 60 °C
          • Beimischung aus Sekundärkreislauf über Regulierventil
          • Thermometer 20-60 °C
          • Pumpe Wilo Para 15-130/6-43/SC-12
          • Rückschlagventil im Sekundärkreis
        3. Anschlussverteiler:
          • Anschlussverteiler e-class 18
          • Vor- und Rücklaufbalken aus profiliertem Edelstahlprofil DN 32
          • SFE-Ventil (Spül-, Füll- und Entleerventil) im Vorlauf- und Rücklaufbalken
          • Vorlaufbalken mit Durchflussanzeiger min. / max. (Kvs=1,23 m³/h)
          • Rücklaufbalken mit Ventileinsätzen VA mit Schnellverschluss (Kvs=2,56 m³/h)
          • verzinkte Doppelwandhalter, Abstand der Vor- und Rücklaufverteilerbalken 200 mm
          • Befestigungsschellen mit Schalldämmeinlage, erfüllt DIN 4109
          • Flachdichtungen Centellen WS 3825 gelb
          • selbstklebende Beschriftungsaufkleber für Räume mit Bezeichnung Raum und Durchfluss
        4. Anschlussgarnitur:
          • Wärmezählerdistanzrohr 3/4" Länge 110 mm
          • Kugelhahn DN 20 mit Fühlereinbaustück D=5-5,2mm M10x1 im Vor- und Rücklauf
          • zweiter Kugelhahn DN 20 im Rücklauf
        5. Wasserzählereinbaustrecke:
          • W2 für Trinkwasser kalt und warm
          • 4 Stück DVGW-Kugelhahn DN 20
          • 2 Stück Wasserzählerdistanzrohr 3/4" Länge 110 mm, mit EPP-Dämmung
        6. Schrank:
          • Comfort-UP-Schrank C69
          • verzinkte Einbauzarge Tiefe 110 mm
          • höhenverstellbare Füße bis 130 mm
          • Fronblende mit Stecktür in weiß RAL 9016, mit Stecklaschen und Drehriegel
          • Tiefe: 110-150 mm
          • Höhe: 760-890 mm
          • Nischeneinbauhöhe von OKFFB: 720 mm
          • Nischeneinbaubreite Schrankbreite + 20 mm
        7. Antriebe:
          • EGO-Regelantrieb 230 V
          • intelligent autonomer elektrothermischer Regelantrieb 230 V NC
          • stromlos geschlossen
          • in Kombination mit handelsüblichen Raumthermostaten gewährleistet er den automatischen und bedarfsgerechten hydraulischen Abgleich der Heizkreise eines Heizkreisverteilers in Flächenheizungssystemen
          • Temperaturfühler geeignet für Flächenheizungsrohre aus Kunststoff, Metall oder Kombination daraus mit Außendurchmesser von 12 bis 20 mm
          • Hinweis: Für die Funktion des EGO ist ein Zweipunkt-Raumtemperaturregler erforderlich
          • max. Vorlauftemperatur: 60 °C (in Stellung Automatik ist die Vorlauftemperaturbegrenzung aktiv)
        8. Klemmleiste:
          • strawalogiX RT-STA Klemmleiste 230 V
          • mit individueller Zuordnung der Stellantriebe zum Raumthermostat über das Wählrad
          • individuelle Weitergabe von Zeitbefehlen oder Nachtabsenkung von Uhrenthermostaten an Raumthermostate über die Klemmleiste
          • integriertes Pumpenmodul
          • 1 Heizkreis -> keine Klemmleiste montiert
          • 2 bis 8 Heizkreise -> max. 6 Raumthermostate und 8 Stell- bzw. Regelantriebe -> strawalogiX RT6-STA8 Klemmleiste 230 V
          • 9 bis 14 Heizkreise -> max. 8 Raumthermostate und 14 Stell- bzw. Regelantriebe -> strawalogiX RT8-STA16 Klemmleiste 230 V
      3. Technische Daten:
        • ausreichend für ca. 200 m² beheizte Fläche, abhängig vom Wärmebedarf
        • max. Volumenstrom: 2,14 m³/h
        • max. Primär-Betriebstemperatur: 80 °C
        • max. Sekundär-Betriebstemperatur: 20-50 °C
        • max. Betriebsdruck: 4 bar
      4. Anschluesse:

        1. Heizung-Primäranschluss:
          • links oder optional rechts, horizontal mit 3/4" IG
        2. Heizung- Sekundäranschluss:
          • vertikal mit 3/4" AG und Konus
        3. Trinkwasser-Anschluss:
          • Anschluss horizontal mit 3/4" IG
        4. Elektroanschluss:
          • bauseits muss ein abgesicherter Elektroanschluss 230 V vorgesehen werden
          • für den Anschluss von Raumthermostaten muss bauseits ein Elektrokabel mit mindestens 4 Adern pro Raumthermostat vorgesehen werden



Artikelspezifikation:
3 Flächenheizkreise
2 Hochtemperaturheizkreise
Artikelabmessung: B x H x T: 900 x 775 x 122 mm
Artikelgewicht: 27,776 kg

GTIN: 4061323110728
Warennummer: 84198998
Werksartikelnummer: 5422307403
Warengruppe: 542
URL: https://www.strawa.com/produkt/5422307403

Marke: strawa
Hersteller: strawa Wärmetechnik GmbH
Telefon: +49 (0) 36256 8661-0 
E-Mail: info@strawa.com
Technische Änderungen vorbehalten.
oder gleichwertig

Gewähltes Fabrikat und Typ: ...........................................
….....................................................................................
(vom Bieter auszufüllen)

zur Lieferung und betriebsfertigen Montage
________________________________________
Kostengruppe DIN 276 (2018-12): 422 Wärmeverteilnetze
Leistungsbereich STLB-Bau (2021-04): 041 Wärmeversorgungsanlagen - Leitungen, Armaturen, Heizflächen

Ausschreibungstexte

strawa Comfort Kompakt-Mischstation
FBM-18-HT2-H-W2-WMZ-C69-EGO 3 Hkr.

Mischgruppe mit 3-Punkt-Stellmotor 230 V und Pumpe Wilo Para 15-130/6-43/SC-12, 2x Hochtemperaturabgang, horizontale Anschlussgarnitur mit Wärmezählerverrohrung, Verteiler mit Durchflussanzeiger min/max im Vorlaufbalken und Thermostatventileinsatz für EGO-Aufnahme im Rücklaufbalken, vormontierte EGO-Regelantriebe, Wasserzählerstrecken Trinkwasser kalt und warm, Comfort-Unterputz-Schrank RAL9015

3 Flächenheizkreise
2 Hochtemperaturheizkreise
Abmessung B x H x T:
900 x 775 x 122 mm
Artikelgewicht: 27,776 kg
Werksartikelnummer: 5422307403
Warennummer: 84198998
Warengruppe: 542 

Hersteller: strawa Wärmetechnik GmbH
Telefon: +49 (0) 36256 8661-0 
E-Mail: info@strawa.com
Technische Änderungen vorbehalten.

Logistische Daten
ETIM / Technische Daten

Produkteigenschaften

Stammdaten

EinheitPCE

GTIN4061323110728

Listenpreis2.259,60 €

Mindesbestellmenge1

ArtikeltypStandard

HerkunftslandDeutschland

Zolltarifnummer84198998

Standardversand (Tage)4

Elektrische BestandteileJa

BatterieNein

Artikelabmessungen

Breite (mm)875

Höhe (mm)760

Tiefe (mm)110

Gewicht (kg)27,776

Verpackungsabmessungen

Breite (mm)785

Höhe (mm)165

Tiefe (mm)910

Gewicht (kg)30,03

Merkmale

Klassifizierung ETIM 9

Anschlussart Primärseite 2-rohrig

Geeignet für Kühlen nein

Werkstoff rostfreier Stahl

Position primärer Anschluss links

Primärer Anschluss Innengewinde (metrisch)

Nenndurchmesser primär 3/4 Zoll (20)

Mit Ventilen am Primäranschluss ja

Max. Heizleistung (bei Primär dT = 20K) 16.7 kW

Mediumtemperatur (Dauerbetrieb) 30 - 80 °C

Max. Arbeitsdruck 4 bar

Mit Mischventil ja

Erweiterbar nein

Max. Anzahl zusätzlicher Heizkreise 0

Multi-Zonen-Verteiler nein

Mit Temperaturbegrenzung ja

Mit Rückschlagklappe ja

Mit Umwälzpumpe ja

Art der Pumpe (interne Pumpe) AC

Druckstufe Artikel PN 4

Mit Regler nein

Hydraulischer Abgleich dynamisch

Volumenstrommessung analog

Mit Thermometer ja

Temperaturmessung Zufuhr digital

Temperatue measurement Rücklauf digital

Versorgungsspannung 230 V

Mit Entlüftung ja

Mit Manometer nein

Mit Füll-/Entleerungshahn ja

Anzahl der Gruppen sekundär 4

Sekundärer Anschluss Eurokonus nach EN 16313

Nenndurchmesser sekundär 3/4 Zoll (20)

Verschließbare Heizkreise ja

Mit Durchflussanzeige ja

Durchflussleistung 0 - 180 l/min

Mit thermischem Stellantrieb ja

Hublänge Antrieb 4 mm

Mit Keramikventil nein

Mit Wandbefestigungsbügel nein

Breite

Höhe

Tiefe

Mit Umbau ja

Passendes Zubehör

Sie benötigen Informationen?

Unser Team berät Sie kompetent zu unseren Produkten oder hilft Ihnen bei Auslegungen und Bestellungen. Vereinbaren Sie hier einen Rückruf.

Kontakt