Ihre Anfrage
Gern erhalten Sie Informationen zu folgenden Produkten:
Artikel
Sie können vorher alle Produkte nochmal bearbeiten
Anfrage
Gern erhalten Sie Informationen zu folgenden Produkten:
Sie können vorher alle Produkte nochmal bearbeiten
Sie können vorher alle Produkte nochmal bearbeiten
strawa Comfort Kompakt-Regelstation FBR-63-HT2-H-C69-E 4 Hkr.,BxHxT: 900x775x122 mm, Festwert 20-50°C m. Pumpe, 2x HT-Abg, horz. AG o. WMZ, Verteiler m. DFA 0-3 l/min+THV M30x1,5, vorm. Stellantr.+Klemml. m. Vorverdr., CUP-Schrank Frontbl. RAL9016
Artikelnummer: 5322105304
Warengruppe: 532
Listenpreis: 1.706,40 €
strawa Comfort Kompakt-Regelstation FBR-63-HT2-H-C69-E 4 Hkr.
horizontaler Primäranschluss
/produktgruppe/horizontaler-primaeranschluss-6
5322105304
strawa Comfort Kompakt-Regelstation FBR-63-HT2-H-C69-E 4 Hkr.
Hersteller: strawa Wärmetechnik GmbH
Telefon: +49 (0) 36256 8661-0
E-Mail: info@strawa.com
Technische Änderungen vorbehalten.
oder gleichwertig
Gewähltes Fabrikat und Typ: ...........................................
….....................................................................................
(vom Bieter auszufüllen)
zur Lieferung und betriebsfertigen Montage
________________________________________
Kostengruppe DIN 276 (2018-12): 422 Wärmeverteilnetze
Leistungsbereich STLB-Bau (2021-04): 041 Wärmeversorgungsanlagen - Leitungen, Armaturen, Heizflächen
Ausschreibungstexte können Sie auch im strawa-Produktverzeichnis auf ausschreiben.de herunterladen.
strawa Comfort Kompakt-Regelstation
FBR-63-HT2-H-C69-E 4 Hkr.
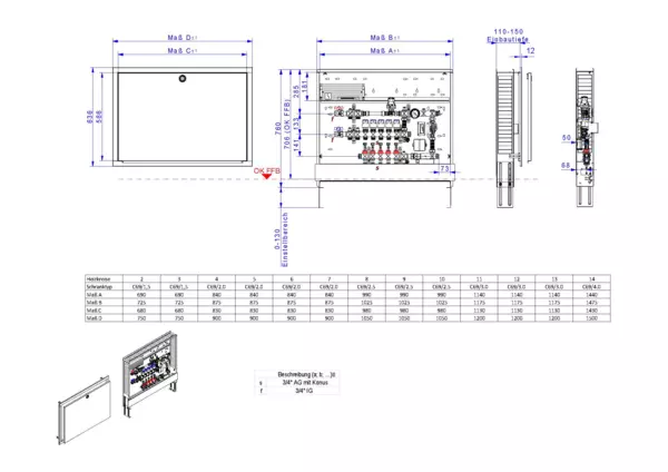
Festwertregelung 20-50 Grad Celsius mit Pumpe Wilo Para 15-130/6-43/SC-12, 2x Hochtemperaturabgang, horizontale Anschlussgarnitur ohne Wärmezählerverrohrung, Verteiler mit Durchflussanzeiger 0-3 l/min im Vorlaufbalken und Thermostatventileinsatz M30x1,5 im Rücklaufbalken, mit vormontierten Stellantrieben und Klemmleiste mit Vorverdrahtung, Comfort-Unterputz-Schrank Frontblende RAL 9016
4 Flächenheizkreise
2 Hochtemperaturheizkreise
Abmessung B x H x T:
900 x 775 x 122 mm
Artikelgewicht: 26,059 kg
Werksartikelnummer: 5322105304
Warennummer: 84198998
Warengruppe: 532
Hersteller: strawa Wärmetechnik GmbH
Telefon: +49 (0) 36256 8661-0
E-Mail: info@strawa.com
Technische Änderungen vorbehalten.
oder gleichwertig
EinheitPCE
GTIN4061323084067
Listenpreis1.706,40 €
Mindesbestellmenge1
ArtikeltypStandard
HerkunftslandDeutschland
Zolltarifnummer84198998
Standardversand (Tage)4
Elektrische BestandteileJa
BatterieNein
Breite (mm)875
Höhe (mm)760
Tiefe (mm)110
Gewicht (kg)26,059
Breite (mm)785
Höhe (mm)165
Tiefe (mm)910
Gewicht (kg)27,829
Klassifizierung ETIM 9
Anschlussart Primärseite 2-rohrig
Geeignet für Kühlen nein
Werkstoff rostfreier Stahl
Position primärer Anschluss links
Primärer Anschluss Innengewinde (metrisch)
Nenndurchmesser primär 3/4 Zoll (20)
Mit Ventilen am Primäranschluss ja
Max. Heizleistung (bei Primär dT = 20K) 25.1 kW
Mediumtemperatur (Dauerbetrieb) 30 - 80 °C
Max. Arbeitsdruck 4 bar
Mit Mischventil ja
Erweiterbar nein
Max. Anzahl zusätzlicher Heizkreise 0
Multi-Zonen-Verteiler nein
Mit Temperaturbegrenzung ja
Mit Rückschlagklappe ja
Mit Umwälzpumpe ja
Art der Pumpe (interne Pumpe) AC
Druckstufe Artikel PN 4
Mit Regler nein
Hydraulischer Abgleich statisch
Volumenstrommessung analog
Mit Thermometer ja
Temperaturmessung Zufuhr ohne
Temperatue measurement Rücklauf ohne
Versorgungsspannung 230 V
Mit Entlüftung ja
Mit Manometer nein
Mit Füll-/Entleerungshahn ja
Anzahl der Gruppen sekundär 6
Sekundärer Anschluss Eurokonus nach EN 16313
Nenndurchmesser sekundär 3/4 Zoll (20)
Verschließbare Heizkreise ja
Mit Durchflussanzeige ja
Durchflussleistung 0 - 180 l/min
Mit thermischem Stellantrieb ja
Hublänge Antrieb 4 mm
Mit Keramikventil nein
Mit Wandbefestigungsbügel nein
Breite
Höhe
Tiefe
Mit Umbau ja
Ausschreibungstexte können Sie auch im strawa-Produktverzeichnis auf ausschreiben.de herunterladen.