Produktübersicht ausklappen

Produktübersicht

0

Anfrage

weitere Artikel anfragen

Ihre Anfrage

Gern erhalten Sie Informationen zu folgenden Produkten:

Artikel

Sie können vorher alle Produkte nochmal bearbeiten

Artikel

Sie können vorher alle Produkte nochmal bearbeiten

Produktbild

strawa Weiche 60/5 VA-Mag für Kleinkesselanlagen bis 70 kW

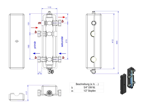
strawa Weiche 60/5 VA-Mag für Kleinkesselanlagen bis 70 kW,BxHxT: 465x150x115 mm, Anschluss 4x 1 1/4"ÜW fld., Entlüftungsventil und SFE-Ventil, 1/2" Anschluss für Weichenfühler, mit Magnetitabscheider

Artikelnummer: 52-816305

Warengruppe: 52

Listenpreis: 271,00 €

Anfragen/Merken

Sie können sich im nächsten Schritt für die ausgewählten Produkte alle Downloaddokumente zusammenstellen die Sie benötigen oder direkt eine Bestellanfrage stellen.

Beschreibung
Artikeldaten
Downloads
Zubehör
Beschreibung
Ausschreibungstext
Langtext

strawa Weiche 60/5 VA-Mag für Kleinkesselanlagen bis 70 kW

strawa Weiche 60/5 VA-Mag für Kleinkesselanlagen bis 70 kW

      1. Beschreibung:
        Die Hydraulische Weiche aus Edelstahl mit Magnetiabscheider ist für Kleinkesselanlagen bis 70 kW konzipiert.
      2. Bestandteile:
        • Edelstahlspezialprofil 1.4301 DN 50, Material 1.4301
        • 4 Anschlussstutzen für Vor- und Rücklauf mit O-Ringdichtung
        • 1/2" Fühlermuffe
        • 1/2" Entlüftungsventil und SFE-Ventil (Spül-, Füll- und Entleerungsventil)
        • mit reversierbarem Magnetitabscheider
        • EPP- Dämmung entsprechen der GEG
        • Flachdichtung Centellen WS 3825 gelb
      3. Technische Daten:
        • max. Betriebsdruck: 6 bar
        • max. Betriebstemperatur: 80 °C
        • max. Volumenstrom: 3 m³/h (bei v = 0,41 m/s), entspricht ca. 70 kW bei delta T = 20 K
      4. Anschluesse:
        • Primärseite mit 1 1/4" Überwurfmutter flachdichtend
        • Sekundärseite mit 1 1/4" Überwurfmutter flachdichtend

Artikelspezifikation:

Artikelabmessung: B x H x T: 465 x 150 x 115 mm
Artikelgewicht: 1,626 kg

Marke: strawa
Hersteller: strawa Wärmetechnik GmbH
Telefon: +49 (0) 36256 8661-0 
E-Mail: info@strawa.com
Technische Änderungen vorbehalten.
oder gleichwertig

strawa Weiche 60/5 VA-Mag für Kleinkesselanlagen bis 70 kW




      1. Beschreibung:
        Die Hydraulische Weiche aus Edelstahl mit Magnetiabscheider ist für Kleinkesselanlagen bis 70 kW konzipiert.
      2. Bestandteile:
        • Edelstahlspezialprofil 1.4301 DN 50, Material 1.4301
        • 4 Anschlussstutzen für Vor- und Rücklauf mit O-Ringdichtung
        • 1/2" Fühlermuffe
        • 1/2" Entlüftungsventil und SFE-Ventil (Spül-, Füll- und Entleerungsventil)
        • mit reversierbarem Magnetitabscheider
        • EPP- Dämmung entsprechen der GEG
        • Flachdichtung Centellen WS 3825 gelb
      3. Technische Daten:
        • max. Betriebsdruck: 6 bar
        • max. Betriebstemperatur: 80 °C
        • max. Volumenstrom: 3 m³/h (bei v = 0,41 m/s), entspricht ca. 70 kW bei delta T = 20 K
      4. Anschluesse:
        • Primärseite mit 1 1/4" Überwurfmutter flachdichtend
        • Sekundärseite mit 1 1/4" Überwurfmutter flachdichtend



Artikelspezifikation:

Artikelabmessung: B x H x T: 465 x 150 x 115 mm
Artikelgewicht: 1,626 kg

GTIN: 4061323029297
Warennummer: 84039090
Werksartikelnummer: 52-816305
Warengruppe: 52
URL: https://www.strawa.com/produkt/52-816305

Marke: strawa

Hersteller: strawa Wärmetechnik GmbH
Telefon: +49 (0) 36256 8661-0
E-Mail: info@strawa.com
Technische Änderungen vorbehalten.
oder gleichwertig

Gewähltes Fabrikat und Typ: ...........................................
….....................................................................................
(vom Bieter auszufüllen)

zur Lieferung und betriebsfertigen Montage
________________________________________
Kostengruppe DIN 276 (2018-12): 422 Wärmeverteilnetze

Leistungsbereich STLB-Bau (2021-04): 041 Wärmeversorgungsanlagen - Leitungen, Armaturen, Heizflächen

Ausschreibungstexte

strawa Weiche 60/5 VA-Mag
für Kleinkesselanlagen bis 70 kW

Anschluss 4x 1 1/4"ÜW fld., Entlüftungsventil und Spül-, Füll- und Entleerventil, 1/2" Anschluss für Weichenfühler, mit Magnetitabscheider

Abmessung B x H x T:
465 x 150 x 115 mm
Artikelgewicht: 1,626 kg
Werksartikelnummer: 52-816305
Warennummer: 84039090
Warengruppe: 52

Hersteller: strawa Wärmetechnik GmbH
Telefon: +49 (0) 36256 8661-0
E-Mail: info@strawa.com
Technische Änderungen vorbehalten.
oder gleichwertig

Logistische Daten
ETIM / Technische Daten

Produkteigenschaften

Stammdaten

EinheitPCE

GTIN4061323029297

Listenpreis271,00 €

Mindesbestellmenge1

ArtikeltypStandard

HerkunftslandDeutschland

Zolltarifnummer84039090

Standardversand (Tage)3

Elektrische BestandteileJa

BatterieNein

Artikelabmessungen

Breite (mm)465

Höhe (mm)150

Tiefe (mm)115

Gewicht (kg)1,626

Verpackungsabmessungen

Breite (mm)150

Höhe (mm)115

Tiefe (mm)500

Gewicht (kg)1,83

Merkmale

Klassifizierung ETIM 9

Geeignet für Zentralheizung ja

Geeignet für Kühlen ja

Geeignet für Wärmepumpe ja

Montageart hängend

Material Fass rostfreier Stahl

Oberflächenschutz Innenseite unbehandelt

Oberflächenschutz Außenseite unbehandelt

Material Mantel rostfreier Stahl

Mit Isolierung ja

Werkstoff der Isolation sonstige

Inhalt 0.92 l

Höhe 465 mm

Durchmesser 115 mm

Durchmesser ohne Isolierung 54 mm

Max. Arbeitsdruck 6 bar

Max. Temperatur 80 °C

Anschluss 1 Innengewinde

Anschlussmaß 1 1 1/4 Zoll

Anschluss 2 Innengewinde

Anschlussmaß 2 1 1/4 Zoll

Mit Tauchrohr nein

Mit elektrischem Heizstab nein

Mit Anschluss Temperaturfühler ja

Anzahl der Anschlüsse Temperaturfühler 1

Anschlussmaß Temperaturfühler 1/2 Zoll

Sie benötigen Informationen?

Unser Team berät Sie kompetent zu unseren Produkten oder hilft Ihnen bei Auslegungen und Bestellungen. Vereinbaren Sie hier einen Rückruf.

Kontakt