Produktübersicht ausklappen

Produktübersicht

0

Anfrage

weitere Artikel anfragen

Ihre Anfrage

Gern erhalten Sie Informationen zu folgenden Produkten:

Artikel

Sie können vorher alle Produkte nochmal bearbeiten

Artikel

Sie können vorher alle Produkte nochmal bearbeiten

Produktbild

strawa Frischwasser-Wohnungsstation Friwara-W22-UP

strawa Frischwasser-Wohnungsstation Friwara-W22-UP,BxHxT: 758x953x172 mm, TW-Erwärmung max. 22 l/min, kupfergel. PWT, UP-Schrank mit Frontblende RAL 9016

Artikelnummer: 31+211000

Warengruppe: 31

Listenpreis: 1.864,20 €

Anfragen/Merken

Sie können sich im nächsten Schritt für die ausgewählten Produkte alle Downloaddokumente zusammenstellen die Sie benötigen oder direkt eine Bestellanfrage stellen.

Beschreibung
Artikeldaten
Downloads
Zubehör
Beschreibung
Ausschreibungstext
Langtext

strawa Frischwasser-Wohnungsstation Friwara-W22-UP

strawa Frischwasser-Wohnungsstation Friwara-W22-UP

      1. Beschreibung:
        Die Wohnungsstation Friwara W dient ausschließlich der Warmwasserversorgung. 

        Funktionsweise: :
        Die Friwara Wohnungsstation funktioniert im Durchlaufprinzip und sorgt für eine stetige, komfortable und hygienisch einwandfreie Warmwasserversorgung. Die Erwärmung des Trinkwassers erfolgt ausschließlich bei Bedarf über einen verbauten Plattenwärmeübertrager aus Edelstahl. Durch die thermische Länge des Übertragers wird eine rasche Auskühlung und eine niedrige Rücklauftemperatur garantiert. Die Regelung, der am Regler vorgegebenen Warmwassertemperatur, erfolgt durch ein Zusammenspiel aus Volumenstromsensor, Temperaturfühlern und PWM-Ladepumpe. Der elektronische Spezialregler gewährleistet auch bei schwankenden Vorlauftemperaturen die exakte Einhaltung der Trinkwarmwassertemperatur. Der primärseitige Versorgerkreis wird über ein Zonenventil nur dann geöffnet, wenn die Station einen Warmwasserbedarf erkennt. Nach Beendigung des Zapfvorgangs wird das Ventil sofort geschlossen.
      2. Vorteile:
        • Warmwassertemperatur von 45 °C bis 60 °C einstellbar
        • laut DIN 1988, VDI 2072 und VDI 6003 sind Zapftemperaturen unter 50 °C nicht zulässig!
        • einfache Montage und Wartung (Regler fertig vorverdrahtet)
        • konstante Zapftemperatur durch die elektronische strawa-FRIWA-Regelung mit Klartextanzeige
        • individuelle Programmierung von Betriebszeiten und -temperaturen
        • alle wichtigen Komponenten in einer kompakten Station von Werk aus vormontiert
        • komfortable Möglichkeit zur Kaltwasser- und Wärmezählung im Wohnbaubereich
        • alle gelieferten Stationen druckgeprüft
        • alle trinkwasserführenden Bauteile entsprechen den Richtlinien des DVGW
        • 2 bis 5 K Spreizung zwischen VL und TWW
        • kein externes Temperaturvorhalteset nötig
      3. Bestandteile:
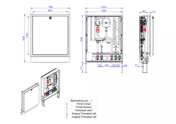
        1. Schrank:
          • Unterputzausführung (UP)
          • aus feuerverzinktem Stahlblech und alle sichtbaren Teile in weiß RAL 9016
          • alle Halterungen mit Gummieinlage
          • Maße: UP-Schrank (Einbauzarge): B x H x T: 732 x 938 x 160-220 mm
        2. Anschlussleiste:
          • Kugelhähne DN 25 (1“ AG flachdichtend), Zirkulationskugelhahn DN 20 (3/4“ IG)
          • Anschlussleiste 5-fach: PVL-PRL-TWW-ETWK-ATWK
        3. Frischwassermodul:
          1. Heizungsseite:
            • Plattenwärmeübertrager (PWÜ) kupfergelötet (Cu)
            • Pulsweitenmodulierende (PWM) Hocheffizienzpumpe Wilo (W) Typ Para 15-130/8-75/IPWM-12
            • Zonenventil DN 25 zur Absperrung der Frischwasserstation
            • Wärmezählerpassstück variabel 1“AG flachdichtend (Länge 130 mm) oder ¾“AG flachdichtend (Länge 110 mm)
            • Empfohlen wird ein Ultraschall-Wärmemengenzähler (genauere Zählung/ geringerer Druckverlust)
            • Fühlereinbaustück direktfühlend Ø 5-5,2 mm M10x1 IG (für Fabrikate Ista Sensonic, Allmess V-Lite, Pollux Com E, Techem delta tech, Minol M, Rossweiner, ABB, Entex, Molline)
            • Verrohrungsmaterial Edelstahl 1.4301 (DIN EN 10088)
            • Filterkugelhahn im Primär-Vorlauf
          2. Trinkwasserseite:
            • Plattenwärmeübertragerleistung bis 88 kW (modellabhängig)
            • Rückschlagklappe, Impulsgeber
            • Wasserzählerpassstück variabel 1“ AG flachdichtend (Länge 130 mm) oder ¾“ AG flachdichtend (Länge 110 mm)
            • Verrohrungsmaterial Edelstahl 1.4401 (DIN EN 10088)
          3. Frischwasserregler:
            • Trinkwarmwassertemperatur einstellbar von 45 °C bis 60 °C
            laut DIN 1988, VDI 2072 und VDI 6003 sind Zapftemperaturen unter 50 °C nicht zulässig!
            • Zirkulationsfunktion (Zeitintervall)
            • Komfortschaltung für Warmhaltung des Plattenwärmeübertragers
          4. Optionales Zubehör:
            • edelstahlgelöteter Plattenwärmeübertrager
            • Zirkulationsmodul mit Zirkulationspumpe ecocirc PRO 13-1/940-01 (inkl. Sicherheitsventil und Abblaseleitung, Achtung! Bauseitiger freier Auslauf notwendig!)
            • Strangregulierventil für den heizungsseitigen hydraulischen Abgleich bei > 5 K Spreizung
            • Dämmung von Plattenwärmeübertrager und Rohrleitung
      4. Technische Daten:
        1. Primärseite:
          • max. Temperatur 70 °C , Empfehlung liegt bei 60 °C zum Schutz des PWÜs gegen Verkalkung
          • max. Prüfdruck 6 bar
          • max. Betriebsdruck 4 bar
          • max. Leistung des Plattenwärmeübertragers: modellabhängig bis 88 kW
          • max. Druckverlust modellabhängig 415 mbar
          • max. Massenstrom modellabhängig ca. 1800 l/h
        2. Trinkwassererwärmung:
          • max. Zapftemperatur 60 °C
          • max. Prüfdruck 15 bar
          • max. Betriebsdruck 10 bar
          • max. Leistung des Plattenwärmeübertragers: modellabhängig bis 88 kW
          • max. trinkwasserseitiger Druckverlust 550 mbar
        Trinkwasserleistung:
          • bis 88 kW
      5. Anschlüsse:
        • 1“ AG flachdichtend für Heizung und Trinkwasser
        • optionaler Zirkulationsanschluss 3/4“ IG

Artikelspezifikation:

Artikelabmessung: B x H x T: 758 x 953 x 172 mm
Artikelgewicht: 40,338 kg

Marke: strawa
Hersteller: strawa Wärmetechnik GmbH
Telefon: +49 (0) 36256 8661-0 
E-Mail: info@strawa.com
Technische Änderungen vorbehalten.

strawa Frischwasser-Wohnungsstation Friwara-W22-UP




      1. Beschreibung:
        Die Wohnungsstation Friwara W dient ausschließlich der Warmwasserversorgung.

        Funktionsweise: :
        Die Friwara Wohnungsstation funktioniert im Durchlaufprinzip und sorgt für eine stetige, komfortable und hygienisch einwandfreie Warmwasserversorgung. Die Erwärmung des Trinkwassers erfolgt ausschließlich bei Bedarf über einen verbauten Plattenwärmeübertrager aus Edelstahl. Durch die thermische Länge des Übertragers wird eine rasche Auskühlung und eine niedrige Rücklauftemperatur garantiert. Die Regelung, der am Regler vorgegebenen Warmwassertemperatur, erfolgt durch ein Zusammenspiel aus Volumenstromsensor, Temperaturfühlern und PWM-Ladepumpe. Der elektronische Spezialregler gewährleistet auch bei schwankenden Vorlauftemperaturen die exakte Einhaltung der Trinkwarmwassertemperatur. Der primärseitige Versorgerkreis wird über ein Zonenventil nur dann geöffnet, wenn die Station einen Warmwasserbedarf erkennt. Nach Beendigung des Zapfvorgangs wird das Ventil sofort geschlossen.
      2. Vorteile:
        • Warmwassertemperatur von 45 °C bis 60 °C einstellbar
        • laut DIN 1988, VDI 2072 und VDI 6003 sind Zapftemperaturen unter 50 °C nicht zulässig!
        • einfache Montage und Wartung (Regler fertig vorverdrahtet)
        • konstante Zapftemperatur durch die elektronische strawa-FRIWA-Regelung mit Klartextanzeige
        • individuelle Programmierung von Betriebszeiten und -temperaturen
        • alle wichtigen Komponenten in einer kompakten Station von Werk aus vormontiert
        • komfortable Möglichkeit zur Kaltwasser- und Wärmezählung im Wohnbaubereich
        • alle gelieferten Stationen druckgeprüft
        • alle trinkwasserführenden Bauteile entsprechen den Richtlinien des DVGW
        • 2 bis 5 K Spreizung zwischen VL und TWW
        • kein externes Temperaturvorhalteset nötig
      3. Bestandteile:

        1. Schrank:
          • Unterputzausführung (UP)
          • aus feuerverzinktem Stahlblech und alle sichtbaren Teile in weiß RAL 9016
          • alle Halterungen mit Gummieinlage
          • Maße: UP-Schrank (Einbauzarge): B x H x T: 732 x 938 x 160-220 mm
        2. Anschlussleiste:
          • Kugelhähne DN 25 (1“ AG flachdichtend), Zirkulationskugelhahn DN 20 (3/4“ IG)
          • Anschlussleiste 5-fach: PVL-PRL-TWW-ETWK-ATWK
        3. Frischwassermodul:

          1. Heizungsseite:
            • Plattenwärmeübertrager (PWÜ) kupfergelötet (Cu)
            • Pulsweitenmodulierende (PWM) Hocheffizienzpumpe Wilo (W) Typ Para 15-130/8-75/IPWM-12
            • Zonenventil DN 25 zur Absperrung der Frischwasserstation
            • Wärmezählerpassstück variabel 1“AG flachdichtend (Länge 130 mm) oder ¾“AG flachdichtend (Länge 110 mm)
            • Empfohlen wird ein Ultraschall-Wärmemengenzähler (genauere Zählung/ geringerer Druckverlust)
            • Fühlereinbaustück direktfühlend Ø 5-5,2 mm M10x1 IG (für Fabrikate Ista Sensonic, Allmess V-Lite, Pollux Com E, Techem delta tech, Minol M, Rossweiner, ABB, Entex, Molline)
            • Verrohrungsmaterial Edelstahl 1.4301 (DIN EN 10088)
            • Filterkugelhahn im Primär-Vorlauf
          2. Trinkwasserseite:
            • Plattenwärmeübertragerleistung bis 88 kW (modellabhängig)
            • Rückschlagklappe, Impulsgeber
            • Wasserzählerpassstück variabel 1“ AG flachdichtend (Länge 130 mm) oder ¾“ AG flachdichtend (Länge 110 mm)
            • Verrohrungsmaterial Edelstahl 1.4401 (DIN EN 10088)
          3. Frischwasserregler:
            • Trinkwarmwassertemperatur einstellbar von 45 °C bis 60 °C
            laut DIN 1988, VDI 2072 und VDI 6003 sind Zapftemperaturen unter 50 °C nicht zulässig!
            • Zirkulationsfunktion (Zeitintervall)
            • Komfortschaltung für Warmhaltung des Plattenwärmeübertragers
          4. Optionales Zubehör:
            • edelstahlgelöteter Plattenwärmeübertrager
            • Zirkulationsmodul mit Zirkulationspumpe ecocirc PRO 13-1/940-01 (inkl. Sicherheitsventil und Abblaseleitung, Achtung! Bauseitiger freier Auslauf notwendig!)
            • Strangregulierventil für den heizungsseitigen hydraulischen Abgleich bei > 5 K Spreizung
            • Dämmung von Plattenwärmeübertrager und Rohrleitung

      4. Technische Daten:

        1. Primärseite:
          • max. Temperatur 70 °C , Empfehlung liegt bei 60 °C zum Schutz des PWÜs gegen Verkalkung
          • max. Prüfdruck 6 bar
          • max. Betriebsdruck 4 bar
          • max. Leistung des Plattenwärmeübertragers: modellabhängig bis 88 kW
          • max. Druckverlust modellabhängig 415 mbar
          • max. Massenstrom modellabhängig ca. 1800 l/h
        2. Trinkwassererwärmung:
          • max. Zapftemperatur 60 °C
          • max. Prüfdruck 15 bar
          • max. Betriebsdruck 10 bar
          • max. Leistung des Plattenwärmeübertragers: modellabhängig bis 88 kW
          • max. trinkwasserseitiger Druckverlust 550 mbar

        Trinkwasserleistung:

          • bis 88 kW
      5. Anschlüsse:
        • 1“ AG flachdichtend für Heizung und Trinkwasser
        • optionaler Zirkulationsanschluss 3/4“ IG



Artikelspezifikation:

Artikelabmessung: B x H x T: 758 x 953 x 172 mm
Artikelgewicht: 40,338 kg

GTIN: 4061323004980
Warennummer: 84195080
Werksartikelnummer: 31+211000
Warengruppe: 31
URL: https://www.strawa.com/produkt/31+211000

Marke: strawa

Hersteller: strawa Wärmetechnik GmbH
Telefon: +49 (0) 36256 8661-0
E-Mail: info@strawa.com
Technische Änderungen vorbehalten.
oder gleichwertig

Gewähltes Fabrikat und Typ: ...........................................
….....................................................................................
(vom Bieter auszufüllen)

zur Lieferung und betriebsfertigen Montage
________________________________________
Kostengruppe DIN 276 (2018-12): 412 Wasseranlagen

Leistungsbereich STLB-Bau (2021-04): 040 Wärmeversorgungsanlagen - Betriebseinrichtungen

Ausschreibungstexte

strawa Frischwasser-Wohnungsstation
Friwara-W22-UP

Trinkwassererwärmung max. 22 l/min, kupfergelötet Plattenwärmetauscher, Unterputz-Schrank mit Frontblende RAL 9016

Abmessung B x H x T:
758 x 953 x 172 mm
Artikelgewicht: 40,338 kg
Werksartikelnummer: 31+211000
Warennummer: 84195080
Warengruppe: 31

Hersteller: strawa Wärmetechnik GmbH
Telefon: +49 (0) 36256 8661-0
E-Mail: info@strawa.com
Technische Änderungen vorbehalten.
oder gleichwertig

Logistische Daten
ETIM / Technische Daten

Produkteigenschaften

Stammdaten

EinheitPCE

GTIN4061323004980

Listenpreis1.864,20 €

Mindesbestellmenge1

ArtikeltypStandard

HerkunftslandDeutschland

Zolltarifnummer84195080

Standardversand (Tage)15

Elektrische BestandteileJa

BatterieNein

Artikelabmessungen

Breite (mm)734

Höhe (mm)938

Tiefe (mm)160

Gewicht (kg)40,338

Verpackungsabmessungen

Breite (mm)800

Höhe (mm)240

Tiefe (mm)1200

Gewicht (kg)43,908

Merkmale

Klassifizierung ETIM 9

Geeignet für Fernwärme nein

Geeignet für Blockheizung nein

Geeignet für Wärmepumpe nein

Geeignet für Solarheizung nein

Geeignet für Heizung ja

Geeignet für Kühlen nein

Geeignet für warmes Trinkwasser ja

Mit Umwälzpumpe ja

Hocheffizienzpumpe (entsprechend EC 547/2012 und EC 641/2009) ja

Mit Wärmeübertrager ja

Material Wärmetauscher rostfreier Stahl

Werkstoff Lotmaterial Wärmetauscher kupfergelötet

Wechselschalter mit doppelter Trennung nein

Wärmetauscher vollversiegelt nein

Mit Passstück für Wärmezähler ja

Mit Wärmezähler nein

Mit Passstück für Kaltwasserzähler ja

Primäre Vorlauftemperatur 55 - 90 °C

Max. Arbeitsdruck

Primäre Drückdifferenz 23 kPa

Zapfleistung bei 60 °C, Dauerbetrieb 22 l/min

Trinkwasser Leistung 77 kW

Einstellbereich Temperatur heißes Leitungswasser 45 - 60 °C

Max. Heizleistung 77 kW

Anschluss Vorlauf sonstige

Nenndurchmesser Zufuhr 1 Zoll (25)

Anschluss Rücklauf sonstige

Nenndurchmesser Rücklauf 1 Zoll (25)

Anschluss Warmwasser sonstige

Nenndurchmesser Warmwasseranschluss 1 Zoll (25)

Anschluss kaltes Trinkwasser sonstige

Nenndurchmesser Kaltwasseranschluss 1 Zoll (25)

Mit Zirkulationsanschluss nein

Mit Vorrang für Warmwasser nein

Mit elektrischer Nacherwärmung nein

Mit Differenzdruckregler nein

Warmhaltestufe ja

Regler elektronisch

Strömungsmengenregler ja

Mit Schmutzfänger nein

Mit Sicherheitsventil nein

Zonenventil ja

Mit Isolierung nein

Höhe 938 mm

Breite 732 mm

Tiefe 160 mm

Typenzulassung nach BBR/EKS nein

Sie benötigen Informationen?

Unser Team berät Sie kompetent zu unseren Produkten oder hilft Ihnen bei Auslegungen und Bestellungen. Vereinbaren Sie hier einen Rückruf.

Kontakt