Produktübersicht ausklappen

Produktübersicht

0

Anfrage

weitere Artikel anfragen

Ihre Anfrage

Gern erhalten Sie Informationen zu folgenden Produkten:

Artikel

Sie können vorher alle Produkte nochmal bearbeiten

Artikel

Sie können vorher alle Produkte nochmal bearbeiten

Produktbild

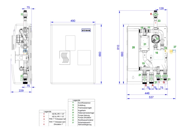
strawa Frischwasserstation Zentrale Friwara Z60-E-Zirku

strawa Frischwasserstation Zentrale Friwara Z60-E-Zirku,BxHxT: 500x670x240 mm, TW-Erwärmung bis max. 60 l/min, edelstahlgelöteter PWT, Zirkulation, mit EPP-Dämmhaube

Artikelnummer: 30-521000

Warengruppe: 30

Listenpreis: 3.658,20 €

Anfragen/Merken

Sie können sich im nächsten Schritt für die ausgewählten Produkte alle Downloaddokumente zusammenstellen die Sie benötigen oder direkt eine Bestellanfrage stellen.

Beschreibung
Artikeldaten
Downloads
Beschreibung
Ausschreibungstext
Langtext

strawa Frischwasserstation Zentrale Friwara Z60-E-Zirku

strawa Frischwasserstation Zentrale Friwara Z60-E-Zirku




      1. Beschreibung:
        Die Frischwasserstation Friwara Z arbeitet im Durchflussprinzip und sorgt für eine stetige, energieeffiziente, komfortable und hygienische Trinkwassererwärmung. Die Erwärmung des Trinkwassers erfolgt ausschließlich bei Bedarf über den Plattenwärmeübertrager aus Edelstahl. Durch die thermische Länge des Plattenwärmeübertragers wird eine rasche Auskühlung und eine niedrige Rücklauftemperatur garantiert. Die Einstellung der gewünschten Warmwassertemperatur erfolgt am Frischwasserregler. Jede Friwara Z ist vollständig vorverdrahtet und druckgeprüft. Bauseits müssen lediglich der Elektroanschluss des Frischwasserreglers, sowie der Anschluss an den zentralen Potentialausgleich erfolgen. Je nach Anforderungen können die Frischwasserstationen nach unterschiedlichen Leistungsstufen und Lotmaterial des Plattenwärmeübertragers ausgewählt werden.
      2. Bestandteile:

        1. Grundmodul
          • besteht aus einem verzinktem Grundblech mit Rohrhalteschienen
          • Edelstahlverrohrung flachdichtend
          • Form- und Verbindungsstücke aus Edelstahl und Messing flachdichtend
          • Dämmkörper aus EPP
        2. Heizungsseite
          • Plattenwärmeübertrager edelstahlgelötet
          • Hocheffizienzpumpe Wilo Para MAXO 25-180-10-F22
          • Verrohrungsmaterial Edelstahl 1.4301 (DIN EN 10088)
        3. Trinkwasserseite
          • Plattenwärmeübertrager edelstahlgelötet
          • Volumenstromsensor
          • Rückflussverhinderer
          • Verrohrungsmaterial Edelstahl 1.4401 (DIN EN 10088)
          • alle trinkwasserführenden Bauteile entsprechen den Richtlinien des DVGW
          • Zirkulationsanschluss 1“ AG mit 6 m Zirkulationspumpe ecocirc M 25-6/180 N
        4. Frischwasserregler
          • Trinkwarmwassertemperatur individuell einstellbar
      3. Technische Daten:

        1. Primärseite
          • max. Betriebstemperatur 75 °C, Empfehlung liegt bei 60 °C zum Schutz des Plattenwärmeübertragers gegen Verkalkung
          • max. Prüfdruck 6 bar
          • max. Betriebsdruck 4 bar
        2. Trinkwassererwärmung
          • max. Entnahmetemperatur 60 °C
          • max. Prüfdruck 15 bar
          • max. Betriebsdruck 10 bar
        3. Leistung allgemein
          Schüttleistung Friwara Z60
          • bei 70 °C Vorlauf, Rücklauf 31 °C und PWH 60 °C = 51 l/min
          • bei 55 °C Vorlauf, Rücklauf 24 °C und PWH 45 °C = 55,5 l/min
      4. Anschluesse:

        1. Primäranschluss Heizung:
          • 1 1/2" AG flachdichtend
        2. Anschluss Trinkwasser:
          • 1" AG flachdichtend
        3. Anschluss Zirkulation:
          • 1" AG



Artikelspezifikation:

Artikelabmessung: B x H x T: 500 x 670 x 240 mm
Artikelgewicht: 26,81 kg

Marke: strawa
Hersteller: strawa Wärmetechnik GmbH
Telefon: +49 (0) 36256 8661-0 
E-Mail: info@strawa.com
Technische Änderungen vorbehalten.
oder gleichwertig

strawa Frischwasserstation Zentrale Friwara Z60-E-Zirku




      1. Beschreibung:
        Die Frischwasserstation Friwara Z arbeitet im Durchflussprinzip und sorgt für eine stetige, energieeffiziente, komfortable und hygienische Trinkwassererwärmung. Die Erwärmung des Trinkwassers erfolgt ausschließlich bei Bedarf über den Plattenwärmeübertrager aus Edelstahl. Durch die thermische Länge des Plattenwärmeübertragers wird eine rasche Auskühlung und eine niedrige Rücklauftemperatur garantiert. Die Einstellung der gewünschten Warmwassertemperatur erfolgt am Frischwasserregler. Jede Friwara Z ist vollständig vorverdrahtet und druckgeprüft. Bauseits müssen lediglich der Elektroanschluss des Frischwasserreglers, sowie der Anschluss an den zentralen Potentialausgleich erfolgen. Je nach Anforderungen können die Frischwasserstationen nach unterschiedlichen Leistungsstufen und Lotmaterial des Plattenwärmeübertragers ausgewählt werden.
      2. Bestandteile:

        1. Grundmodul
          • besteht aus einem verzinktem Grundblech mit Rohrhalteschienen
          • Edelstahlverrohrung flachdichtend
          • Form- und Verbindungsstücke aus Edelstahl und Messing flachdichtend
          • Dämmkörper aus EPP
        2. Heizungsseite
          • Plattenwärmeübertrager edelstahlgelötet
          • Hocheffizienzpumpe Wilo Para MAXO 25-180-10-F22
          • Verrohrungsmaterial Edelstahl 1.4301 (DIN EN 10088)
        3. Trinkwasserseite
          • Plattenwärmeübertrager edelstahlgelötet
          • Volumenstromsensor
          • Rückflussverhinderer
          • Verrohrungsmaterial Edelstahl 1.4401 (DIN EN 10088)
          • alle trinkwasserführenden Bauteile entsprechen den Richtlinien des DVGW
          • Zirkulationsanschluss 1“ AG mit 6 m Zirkulationspumpe ecocirc M 25-6/180 N
        4. Frischwasserregler
          • Trinkwarmwassertemperatur individuell einstellbar
      3. Technische Daten:

        1. Primärseite
          • max. Betriebstemperatur 75 °C, Empfehlung liegt bei 60 °C zum Schutz des Plattenwärmeübertragers gegen Verkalkung
          • max. Prüfdruck 6 bar
          • max. Betriebsdruck 4 bar
        2. Trinkwassererwärmung
          • max. Entnahmetemperatur 60 °C
          • max. Prüfdruck 15 bar
          • max. Betriebsdruck 10 bar
        3. Leistung allgemein
          Schüttleistung Friwara Z60
          • bei 70 °C Vorlauf, Rücklauf 31 °C und PWH 60 °C = 51 l/min
          • bei 55 °C Vorlauf, Rücklauf 24 °C und PWH 45 °C = 55,5 l/min
      4. Anschluesse:

        1. Primäranschluss Heizung:
          • 1 1/2" AG flachdichtend
        2. Anschluss Trinkwasser:
          • 1" AG flachdichtend
        3. Anschluss Zirkulation:
          • 1" AG



Artikelspezifikation:

Artikelabmessung: B x H x T: 500 x 670 x 240 mm
Artikelgewicht: 26,81 kg

GTIN: 4061323004256
Warennummer: 84191900
Werksartikelnummer: 30-521000
Warengruppe: 30
URL: https://www.strawa.com/produkt/30-521000

Marke: strawa

Hersteller: strawa Wärmetechnik GmbH
Telefon: +49 (0) 36256 8661-0 
E-Mail: info@strawa.com
Technische Änderungen vorbehalten.
oder gleichwertig

Gewähltes Fabrikat und Typ: ...........................................
….....................................................................................
(vom Bieter auszufüllen)

zur Lieferung und betriebsfertigen Montage
________________________________________
Kostengruppe DIN 276 (2018-12):  412 Wasseranlagen

Leistungsbereich STLB-Bau (2021-04): 040 Wärmeversorgungsanlagen - Betriebseinrichtungen

Ausschreibungstexte

strawa Frischwasserstation Zentrale
Friwara Z60-E-Zirku

Trinkwassererwärmung bis max. 60 l/min, edelstahlgelöteter Plattenwärmetauscher, Zirkulation, mit EPP-Dämmhaube

Abmessung B x H x T:
500 x 670 x 240 mm
Artikelgewicht: 26,81 kg
Werksartikelnummer: 30-521000
Warennummer: 84191900
Warengruppe: 30

Hersteller: strawa Wärmetechnik GmbH
Telefon: +49 (0) 36256 8661-0 
E-Mail: info@strawa.com
Technische Änderungen vorbehalten.
oder gleichwertig

Logistische Daten
ETIM / Technische Daten

Produkteigenschaften

Stammdaten

EinheitPCE

GTIN4061323004256

Listenpreis3.658,20 €

Mindesbestellmenge1

ArtikeltypStandard

HerkunftslandDeutschland

Zolltarifnummer84191900

Standardversand (Tage)5

Elektrische BestandteileJa

BatterieNein

Artikelabmessungen

Breite (mm)500

Höhe (mm)670

Tiefe (mm)240

Gewicht (kg)26,81

Verpackungsabmessungen

Breite (mm)520

Höhe (mm)285

Tiefe (mm)710

Gewicht (kg)28,46

Merkmale

Klassifizierung ETIM 9

Material austauschbar rostfreier Stahl

Werkstoff Lotmaterial Wärmetauscher rostfreier Stahl

Wärmetauscher vollversiegelt nein

Wechselschalter mit doppelter Trennung nein

Max. Arbeitsdruck 10 bar

Max. Vorlauftemperatur 90 °C

Einstellbereich Temperatur heißes Leitungswasser 45 - 60 °C

Anschlussspannung 230 V

Aufladepumpe (Zentralheizung) ja

Anzahl Aufladepumpen 1

Trinkwasserpumpe nein

Dreiwege-Drosselklappe nein

Regelung ja

Legionellenüberwachung nein

Anschluss kaltes Trinkwasser Außengewinde konisch BSPT-R (ISO 7-1 / EN 10226-1)

Nenndurchmesser Kaltwasseranschluss 1 Zoll (25)

Anschluss Warmwasser Außengewinde konisch BSPT-R (ISO 7-1 / EN 10226-1)

Nenndurchmesser Warmwasseranschluss 1 Zoll (25)

Anschluss Vorlauf Außengewinde konisch BSPT-R (ISO 7-1 / EN 10226-1)

Nenndurchmesser Zufuhr 1 1/2 Zoll (40)

Anschluss Rücklauf Außengewinde konisch BSPT-R (ISO 7-1 / EN 10226-1)

Nenndurchmesser Rücklauf 1 1/2 Zoll (40)

Mit Zirkulationsanschluss ja

Mit Wärmedämmung ja

Werkstoff der Wärmedämmung Expandiertes Polypropylen (EPP)

Sicherheitsventil im Trinkwasserkreis nein

Absperrkugelhahn im Trinkwasserkreis ja

Montage Wand

Volumenstromsensor Turbine

Ausführung Temperatursensor Pt1000

Pumpensteuersignal PWM

Höhe 670 mm

Breite 500 mm

Tiefe 240 mm

Sie benötigen Informationen?

Unser Team berät Sie kompetent zu unseren Produkten oder hilft Ihnen bei Auslegungen und Bestellungen. Vereinbaren Sie hier einen Rückruf.

Kontakt